← Newport City Council

Status

Decided Change of use
Received
29 May 2025
New homes
0

Full proposal

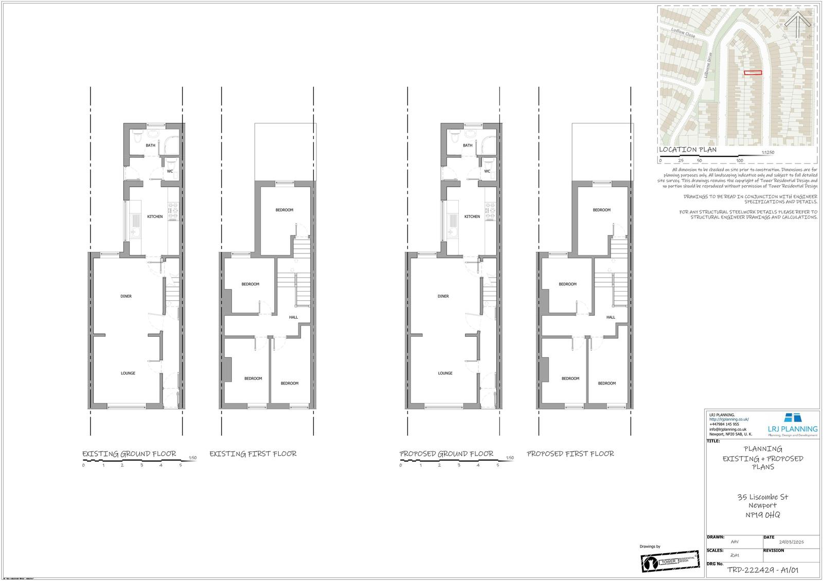
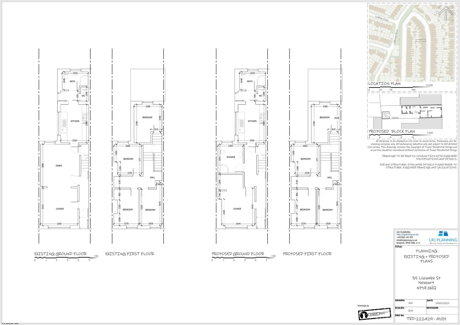
CHANGE OF USE FROM A 4 BEDROOM DWELLING (C3 USE) TO A 4 BEDROOM HOUSE IN MULTIPLE OCCUPATION (C4 USE)

Documents

Supporting Information
Archived · Original link
Application Form
Archived · Original link
Consult Response Statutory
Archived · Original link
Consult Response Statutory
Archived · Original link
Consult Response Statutory
Archived · Original link
Consult Response Statutory
Archived · Original link
Superseded Document
Archived · Original link
Supporting Information
Archived · Original link
Consult Response Statutory
Archived · Original link
Supporting Information
Archived · Original link
Consult Response Statutory
Archived · Original link
NRW
Consult Response Statutory
Archived · Original link
Consult Response Neighbour
Archived · Original link
Officer Report
Archived · Original link
Supporting Information
Archived · Original link
Consult Response Statutory
Archived · Original link
Supporting Information
Archived · Original link
Consult Response Statutory
Archived · Original link
Drawing - OS Site Location Plan
Archived · Original link
Site/Press Notice
Archived · Original link
Consult Response Statutory
Archived · Original link
Consult Response Statutory
Archived · Original link

Have your say

Your comment matters. Councils must consider every representation that raises material planning considerations.

Write a comment