← Newport City Council

Status

Unknown Change of use
Received
30 May 2025
New homes
5

Full proposal

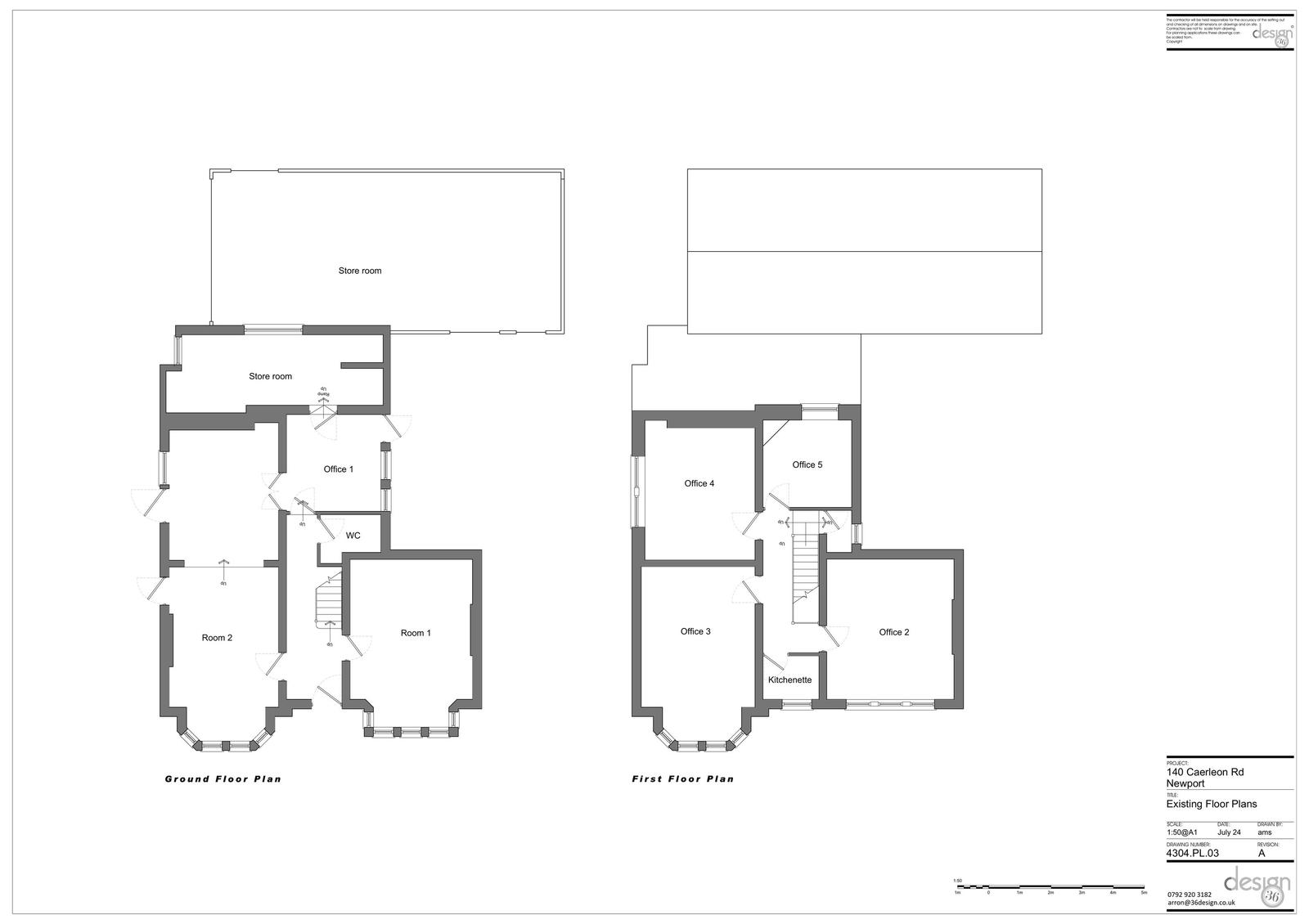
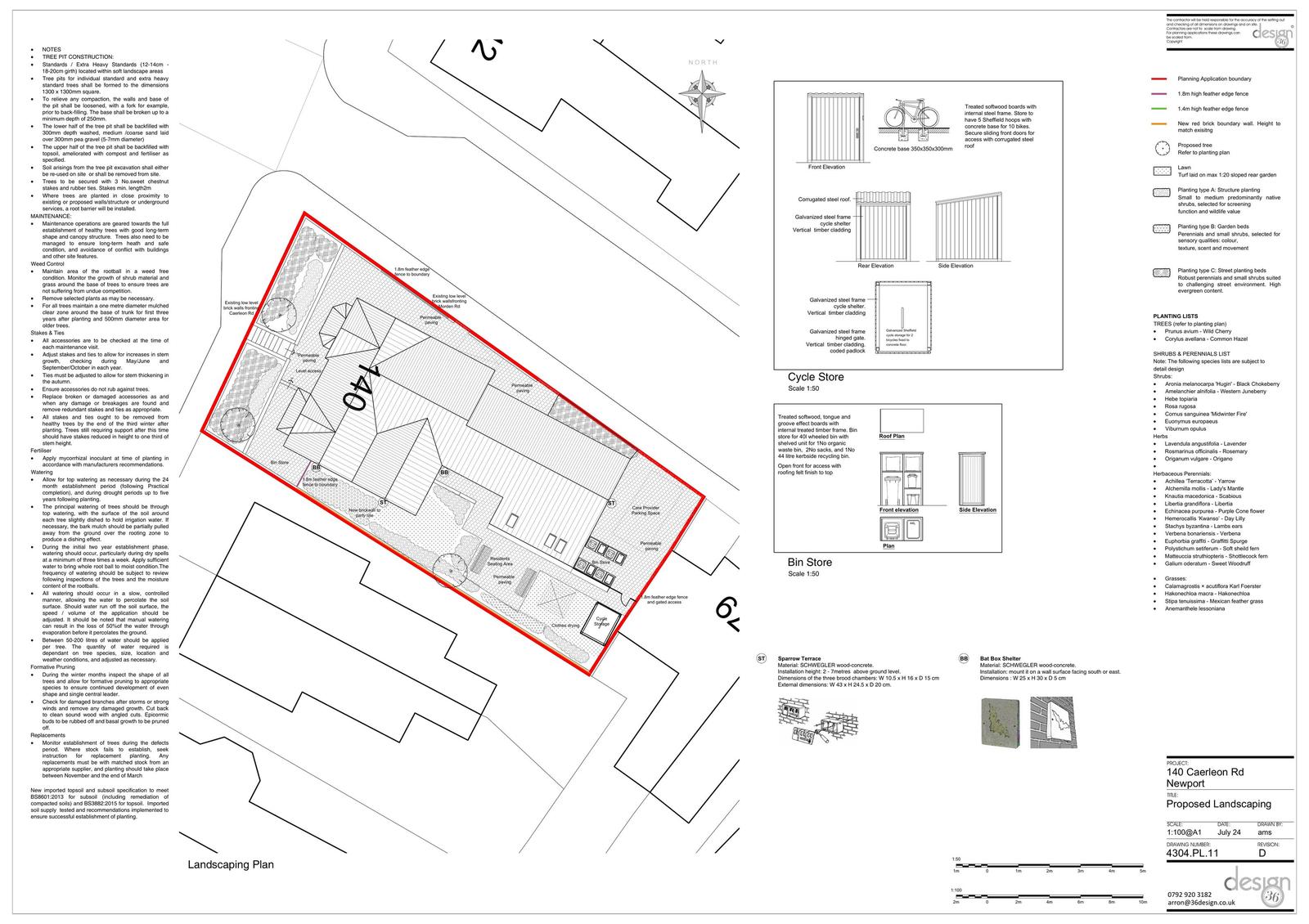
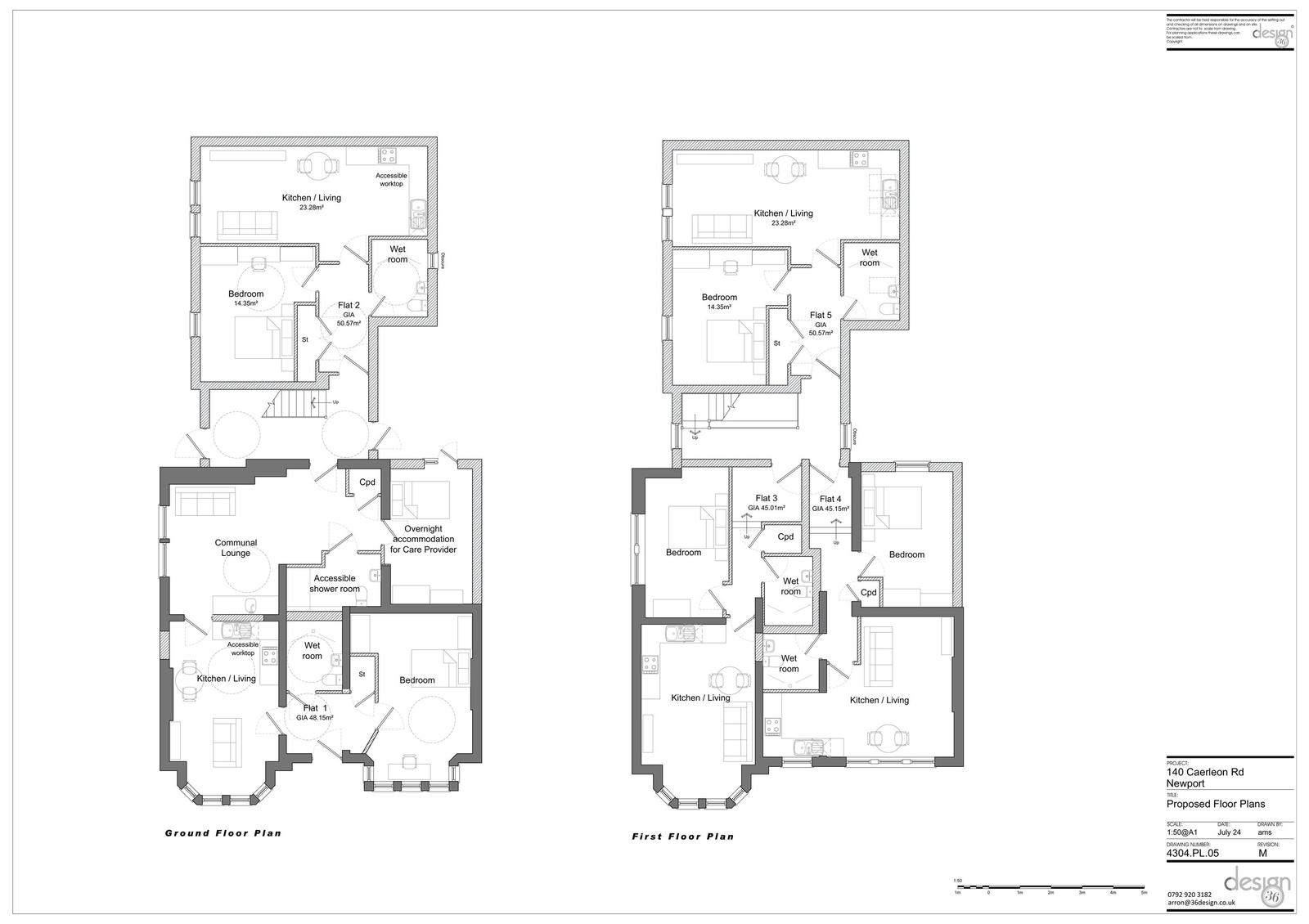
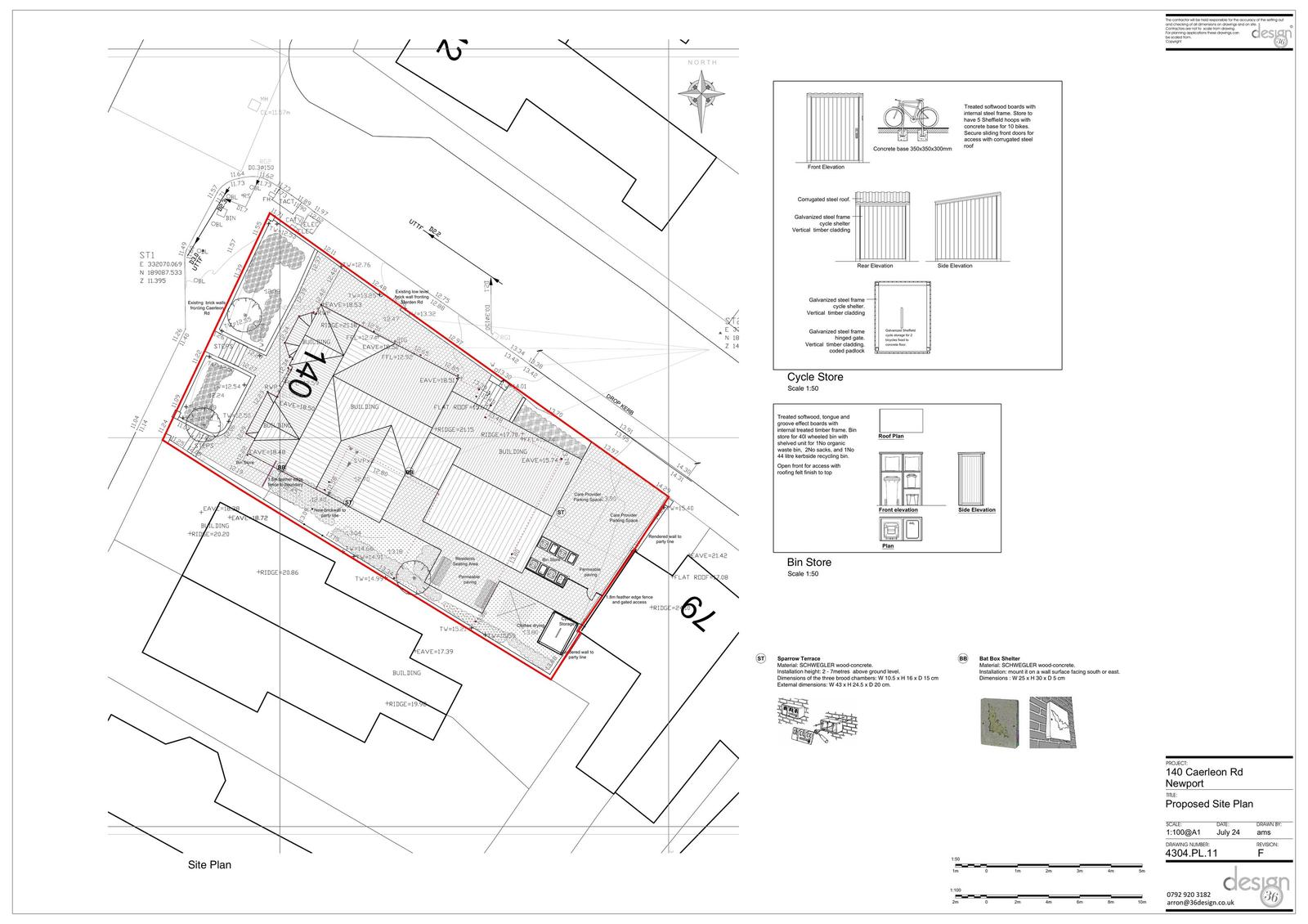
DEMOLITION OF THE EXISTING GARAGE AND ERECTION OF TWO-STOREY EXTENSION AT THE REAR TOGETHER WITH THE CHANGE OF USE THE FORMER FUNERAL DIRECTORS (A1) TO FACILITATE THE CREATION OF NO.5 FLATS FOR SPECIALISED SUPPORTED HOUSING WITH OVERNIGHT ACCOMMODATION FOR CARE PROVIDER

Documents

Supporting Information
Archived · Original link
Supporting Information
Archived · Original link
Supporting Information
Archived · Original link
Supporting Information
Archived · Original link
Consult Response Statutory
Archived · Original link
Drawing - OS Site Location Plan
Archived · Original link
Superseded Document
Archived · Original link
Application Form
Archived · Original link
Consult Response Statutory
Archived · Original link
Consult Response Statutory
Archived · Original link
Consult Response Statutory
Archived · Original link
Consult Response Statutory
Archived · Original link
Consult Response Statutory
Archived · Original link
Consult Response Statutory
Archived · Original link
Consult Response Statutory
Archived · Original link
Legal Agreement
Archived · Original link
Supporting Information
Archived · Original link
Supporting Information
Archived · Original link
Supporting Information
Archived · Original link

Have your say

Your comment matters. Councils must consider every representation that raises material planning considerations.

Write a comment