← Newport City Council

Status

Decided Change of use
Received
11 Jun 2025
New homes
0

Full proposal

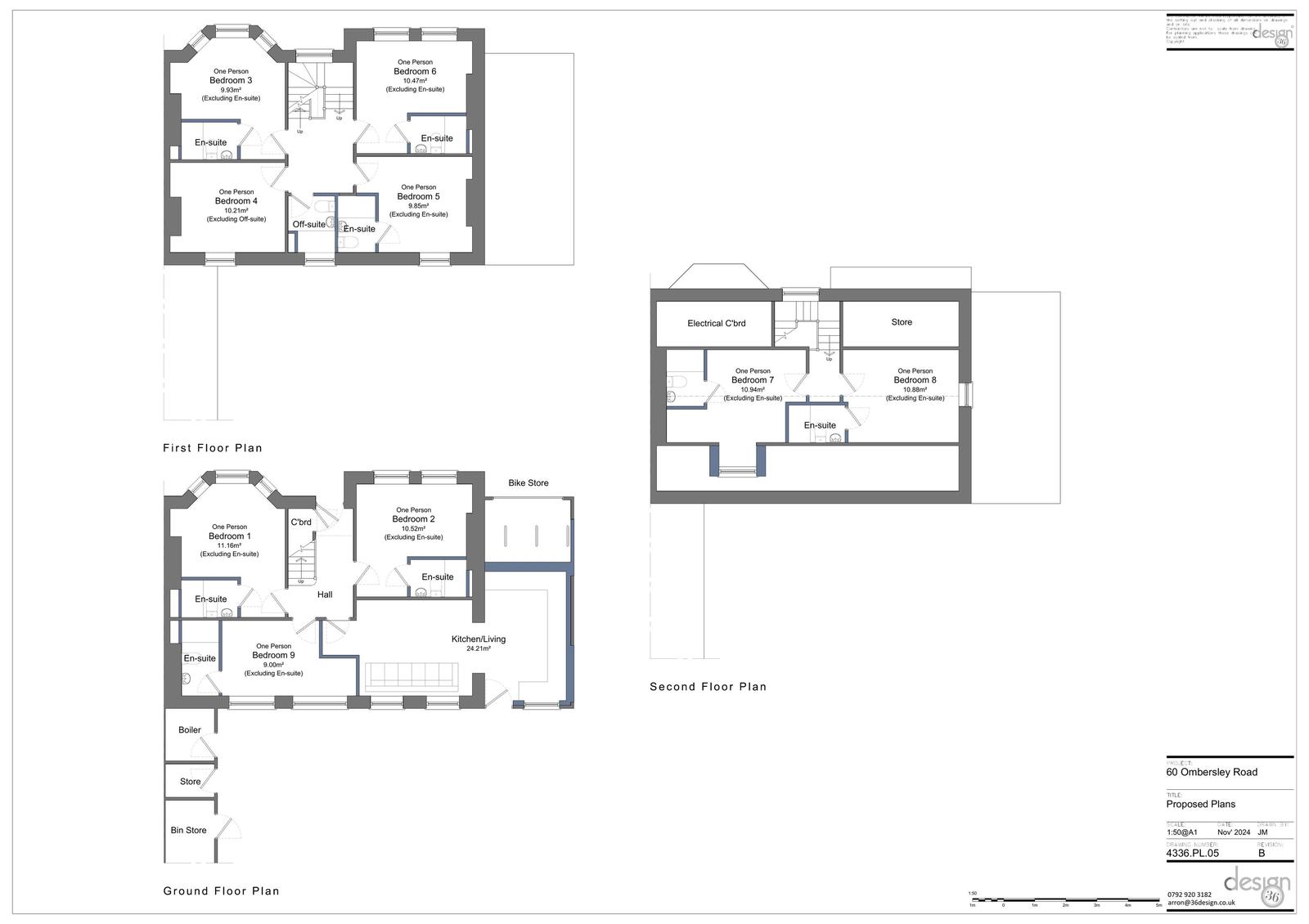
CHANGE OF USE OF DWELLING (C3 USE) TO A 9 BEDROOM HOUSE OF MULTIPLE OCCUPATION (SUI GENERIS USE) AND CONSTRUCTION OF REAR DORMER

Documents

Drawing - OS Site Location Plan
Archived · Original link
4336.PL.02 Existing _ Proposed Block Plans Rev D
Drawing
Not yet archived · Original link
4336.PL.03 Existing Plans Rev A
Drawing
Not yet archived · Original link
4336.PL.04 Existing Elevations Rev A
Drawing
Not yet archived · Original link
4336.PL.06 Proposed Elevations Rev B
Drawing
Not yet archived · Original link
Application Form
Application Form
Not yet archived · Original link
Cllr M Evans
Consult Response Statutory
Not yet archived · Original link
Decision Notice
Decision Notice
Not yet archived · Original link
EH - Housing
Consult Response Statutory
Not yet archived · Original link
Green Infrastructure Statement FINAL
Supporting Information
Not yet archived · Original link
Officer Report
Officer Report
Not yet archived · Original link
Parking Survey Final
Supporting Information
Not yet archived · Original link
Planning Statement Ombersley Road FINAL
Supporting Information
Not yet archived · Original link
S106 Officer
Consult Response Statutory
Not yet archived · Original link
Site Notice - SNSTD
Site/Press Notice
Not yet archived · Original link

Have your say

Your comment matters. Councils must consider every representation that raises material planning considerations.

Write a comment