← Newport City Council

Status

Decided Industrial
Received
11 Jun 2025
New homes
0

Full proposal

EXTENSION TO EXISTING BUILDING WITH AN OPEN CANOPY AND THE ERECTION OF A SINGLE STOREY PORTAL FRAME BUILDING FOR THE PROVISION OF WAREHOUSE STORAGE (USE CLASS B8)

Documents

25.0476 - DN
Decision Notice
Not yet archived · Original link
25.0476 OR
Officer Report
Not yet archived · Original link
Application Form
Application Form
Not yet archived · Original link
Bear consulting response to NRW comments
Supporting Information
Not yet archived · Original link
DC - WW
Consult Response Statutory
Not yet archived · Original link
FCA November 2025
Supporting Information
Not yet archived · Original link
Flood Consequence Assessment
Superseded Document
Not yet archived · Original link
Heneb
Consult Response Statutory
Not yet archived · Original link
Highways
Consult Response Statutory
Not yet archived · Original link
NRW
Consult Response Statutory
Not yet archived · Original link
NRW
Consult Response Statutory
Not yet archived · Original link
NRW
Consult Response Statutory
Not yet archived · Original link
NRW comments 28/10/25
Consult Response Statutory
Not yet archived · Original link
PL-001 - Site Location and Block Plans
Superseded Document
Not yet archived · Original link
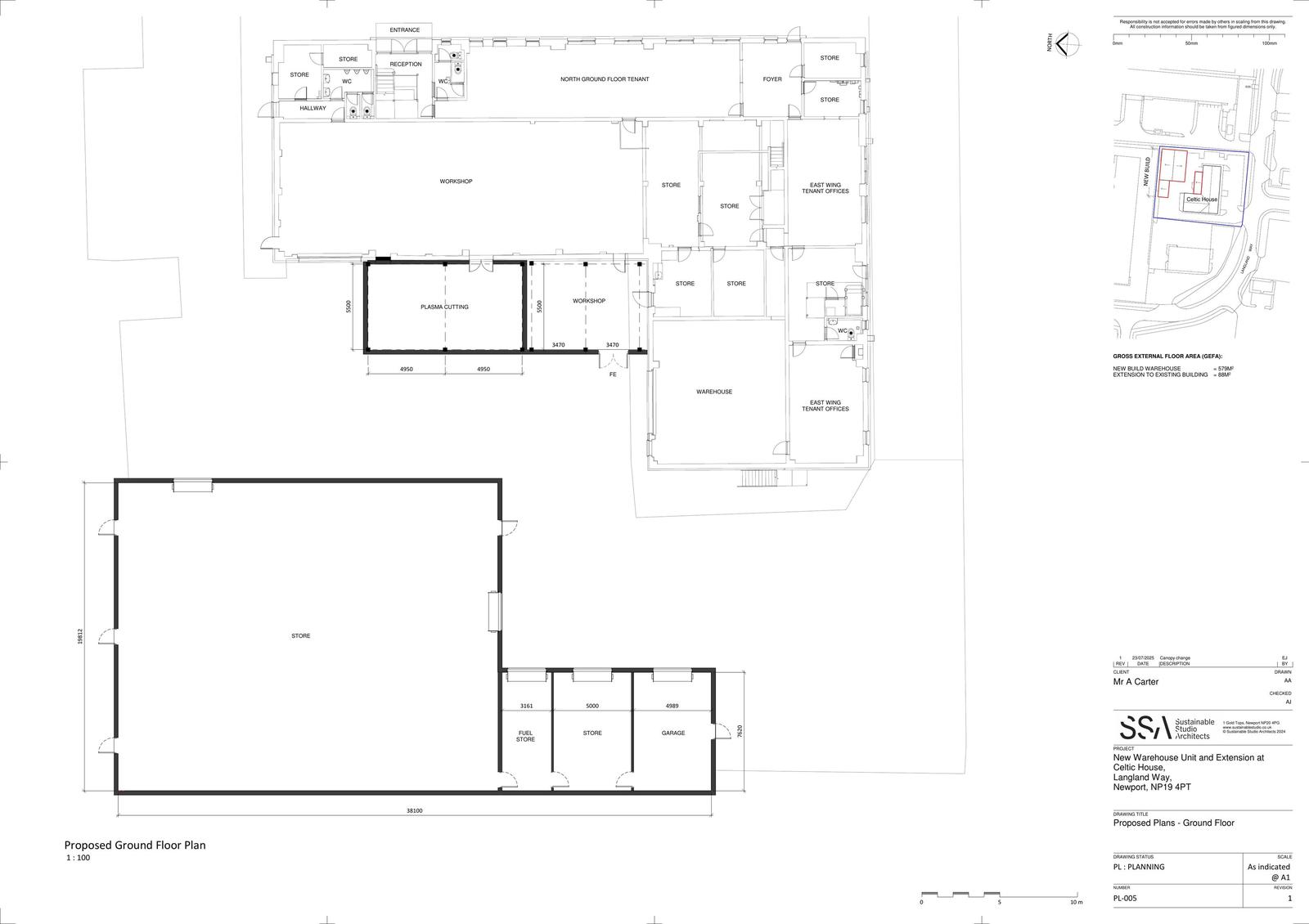
PL-002 - Existing Plans - Ground Floor.
Drawing
Not yet archived · Original link
PL-003 - Existing Plans - Roof
Drawing
Not yet archived · Original link
PL-004 - Existing Elevations.
Drawing
Not yet archived · Original link
Superseded Document
Archived · Original link
Superseded Document
Archived · Original link
PL-007- Proposed Elevations - New Build
Drawing
Not yet archived · Original link
PL-008- Proposed Elevations - Extension
Superseded Document
Not yet archived · Original link
PL-009 - Proposed Sections and 3D Views
Drawing
Not yet archived · Original link
Proposed elevations PL-008
Drawing
Not yet archived · Original link
Proposed roof plan PL-006
Drawing
Not yet archived · Original link
response to NRW comments
Supporting Information
Not yet archived · Original link
Revised FCA part 1 of 2
Supporting Information
Not yet archived · Original link
Revised FCA part 2 of 2
Supporting Information
Not yet archived · Original link
SAB
Consult Response Statutory
Not yet archived · Original link
Site and Block Plan PL-001 Revision 1
Superseded Document
Not yet archived · Original link
Drawing - OS Site Location Plan
Archived · Original link

Have your say

Your comment matters. Councils must consider every representation that raises material planning considerations.

Write a comment