← Newport City Council

Status

Application Pending Decision House extension
Received
18 Jun 2025
New homes
0

Full proposal

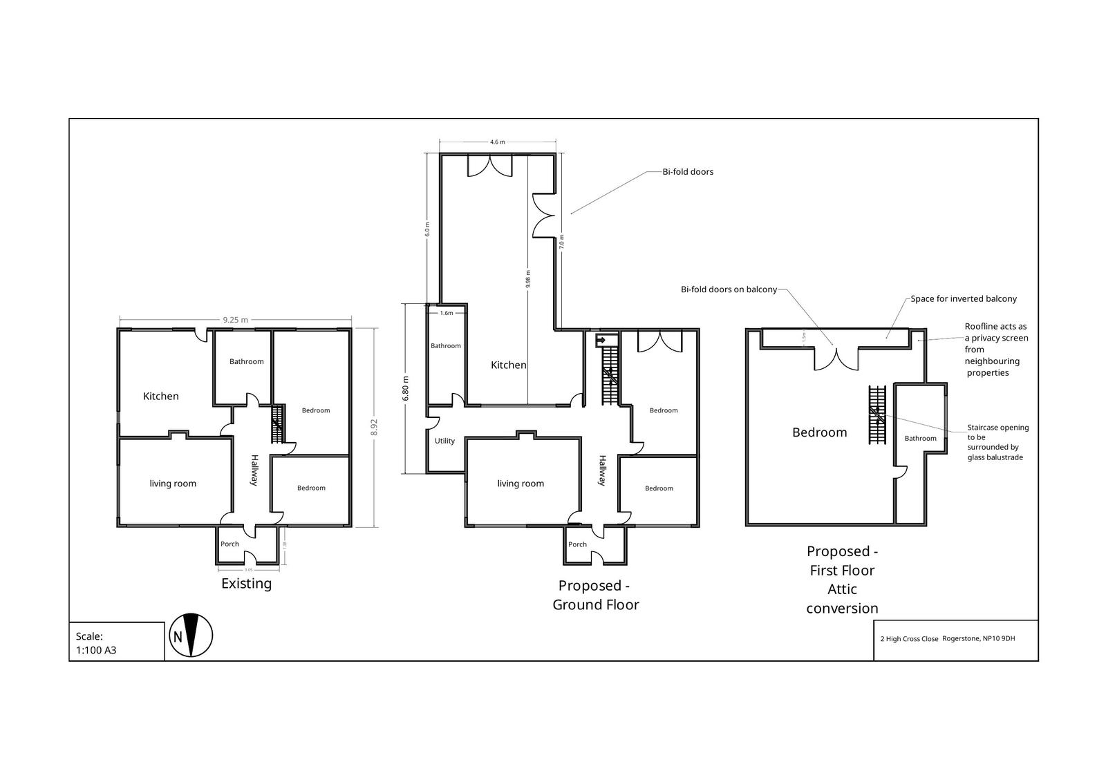
RENOVATION OF DWELLING INCLUDING DEMOLITION OF EXISTING GARAGE AND CONSTRUCTION OF A SINGLE STOREY REAR EXTENSION, CHANGE OF ROOF FORM FROM HIP TO PITCHED, NEW BALCONY AND ATTIC CONVERSION TOGETHER WITH OTHER INTERNAL AND EXTERNAL WORKS

Documents

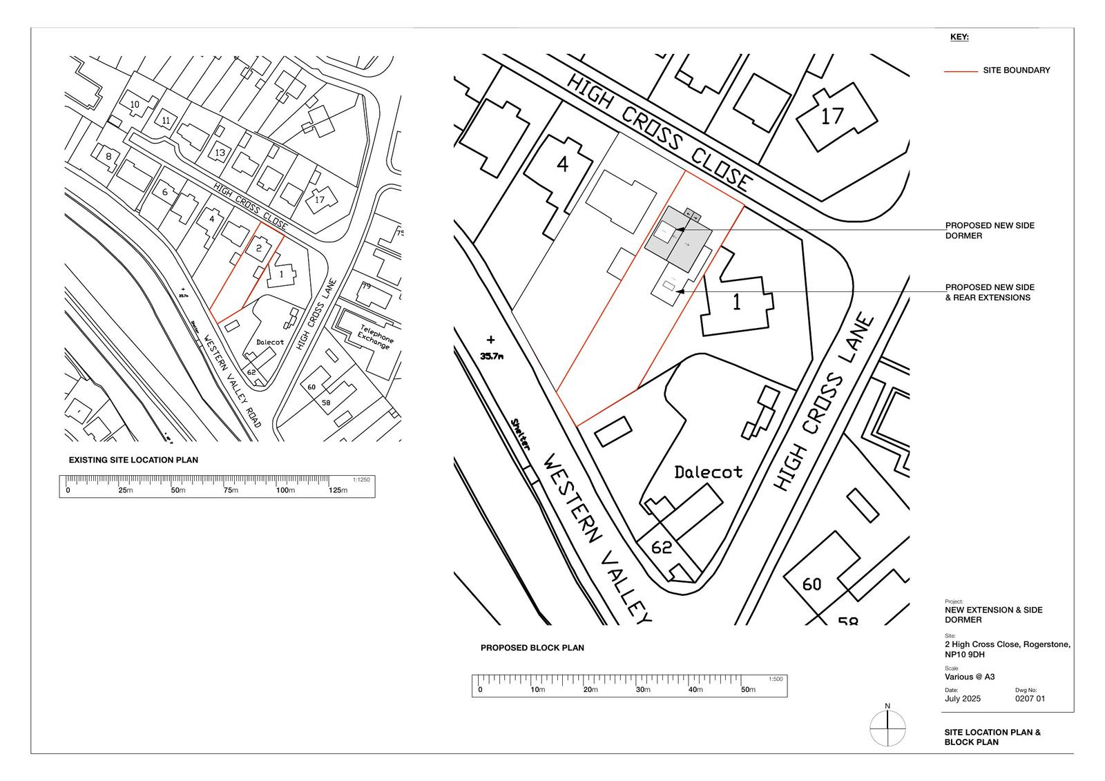
0207 01A - Existing and Proposed Block Plans
Drawing
Not yet archived · Original link
0207 02 - Existing Floor Plans
Drawing
Not yet archived · Original link
0207 03 - Existing Elevations
Drawing
Not yet archived · Original link
0207 11 - Proposed Elevations
Drawing
Not yet archived · Original link
Application Form
Application Form
Not yet archived · Original link
Ecology Officer
Consult Response Statutory
Not yet archived · Original link
Highways Comments
Consult Response Statutory
Not yet archived · Original link
Drawing - OS Site Location Plan
Archived · Original link
Drawing - OS Site Location Plan
Archived · Original link
SUPERSEDED Existing Elevations
Superseded Document
Not yet archived · Original link
SUPERSEDED Existing Floor Plans
Superseded Document
Not yet archived · Original link
SUPERSEDED Proposed Elevations
Superseded Document
Not yet archived · Original link
Superseded Document
Archived · Original link

Have your say

Your comment matters. Councils must consider every representation that raises material planning considerations.

Write a comment