← Newport City Council

Status

Unknown Change of use
Received
19 Jun 2025
New homes
0

Full proposal

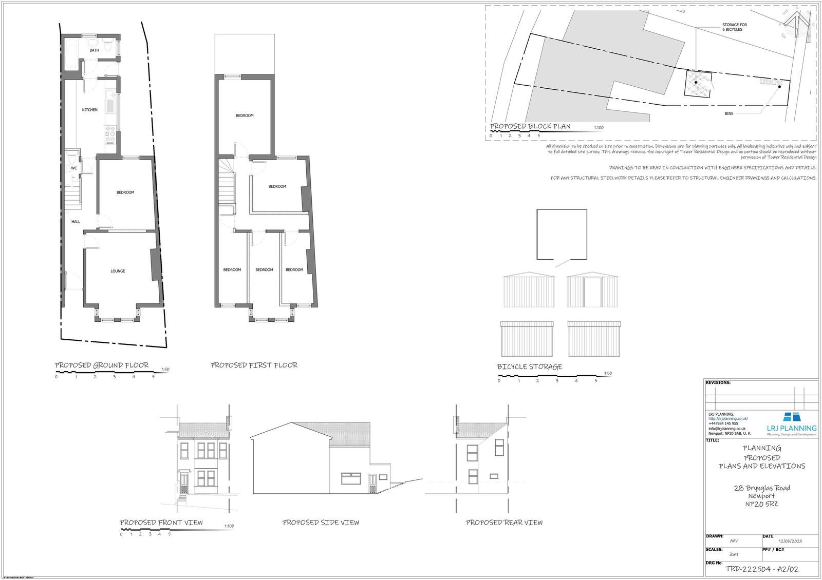
CHANGE OF USE FROM A 3 BEDROOM DWELLING (C3 USE) TO A 5 BEDROOM HOUSE IN MULTIPLE OCCUPATION (C4 USE)

Documents

28 Brynglas Road - PL-LRJ-222504 - A1 - Existing.
Drawing
Not yet archived · Original link
28 Brynglas Road - PL-LRJ-222504 - A2 - Proposed
Superseded Document
Not yet archived · Original link
Appeal form
Appeal Form
Not yet archived · Original link
Application Form
Application Form
Not yet archived · Original link
DC - WW
Consult Response Statutory
Not yet archived · Original link
Decision Notice
Decision Notice
Not yet archived · Original link
email from Cnsllr Cockeram re committee
Consult Response Statutory
Not yet archived · Original link
Environmental Health - Housing
Superseded Document
Not yet archived · Original link
Environmental Health - Housing
Consult Response Statutory
Not yet archived · Original link
Green Infrastructure Statement
Supporting Information
Not yet archived · Original link
Highways
Consult Response Statutory
Not yet archived · Original link
Highways
Consult Response Statutory
Not yet archived · Original link
NRW
Consult Response Statutory
Not yet archived · Original link
officer report final version
Officer Report
Not yet archived · Original link
Parking Survey FINAL
Superseded Document
Not yet archived · Original link
Parking Survey July 2025
Supporting Information
Not yet archived · Original link
Planning Statement Brynglas Road FINAL
Supporting Information
Not yet archived · Original link
Site Notice - SNSTD
Site/Press Notice
Not yet archived · Original link
Sustainability Appraisal FINAL
Supporting Information
Not yet archived · Original link

Have your say

Your comment matters. Councils must consider every representation that raises material planning considerations.

Write a comment