← Newport City Council

Status

Decided Change of use
Received
14 Oct 2025
New homes
0

Full proposal

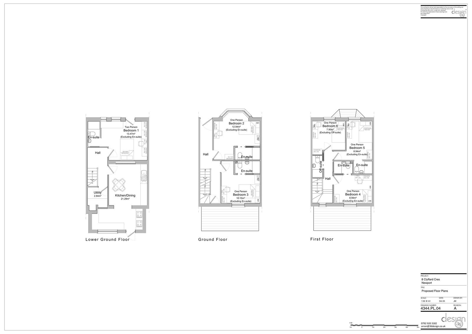
CHANGE OF USE FROM A HOUSE IN MULTIPLE OCCUPATION (C4 USE) TO A 6 BEDROOM 7 PERSON HOUSE IN MULTIPLE OCCUPATION (SUI GENERIS USE)

Documents

Drawing - OS Site Location Plan
Archived · Original link
4344.PL.02 - Existing/Proposed Block Plans
Drawing
Not yet archived · Original link
4344.PL.03 - Existing Floor Plans
Drawing
Not yet archived · Original link
Application Form
Application Form
Not yet archived · Original link
Cllr Al-Nuaimi Comments
Consult Response Statutory
Not yet archived · Original link
Decision Notice
Decision Notice
Not yet archived · Original link
Environmental Health Comments
Consult Response Statutory
Not yet archived · Original link
Environmental Health Comments
Consult Response Statutory
Not yet archived · Original link
Environmental Health Comments (Email)
Consult Response Statutory
Not yet archived · Original link
Green Infrastructure Statement
Supporting Information
Not yet archived · Original link
Highways Comments
Consult Response Statutory
Not yet archived · Original link
Officer Report
Officer Report
Not yet archived · Original link
Parking Survey
Supporting Information
Not yet archived · Original link
Planning Statement
Supporting Information
Not yet archived · Original link
Site notice
Site/Press Notice
Not yet archived · Original link
Site Notice - SNSTD
Site/Press Notice
Not yet archived · Original link
Sustainability Appraisal
Supporting Information
Not yet archived · Original link
Waste Comments
Consult Response Statutory
Not yet archived · Original link

Have your say

Your comment matters. Councils must consider every representation that raises material planning considerations.

Write a comment