← Newport City Council

Status

Unknown Change of use
Received
31 Oct 2025
New homes
0

Full proposal

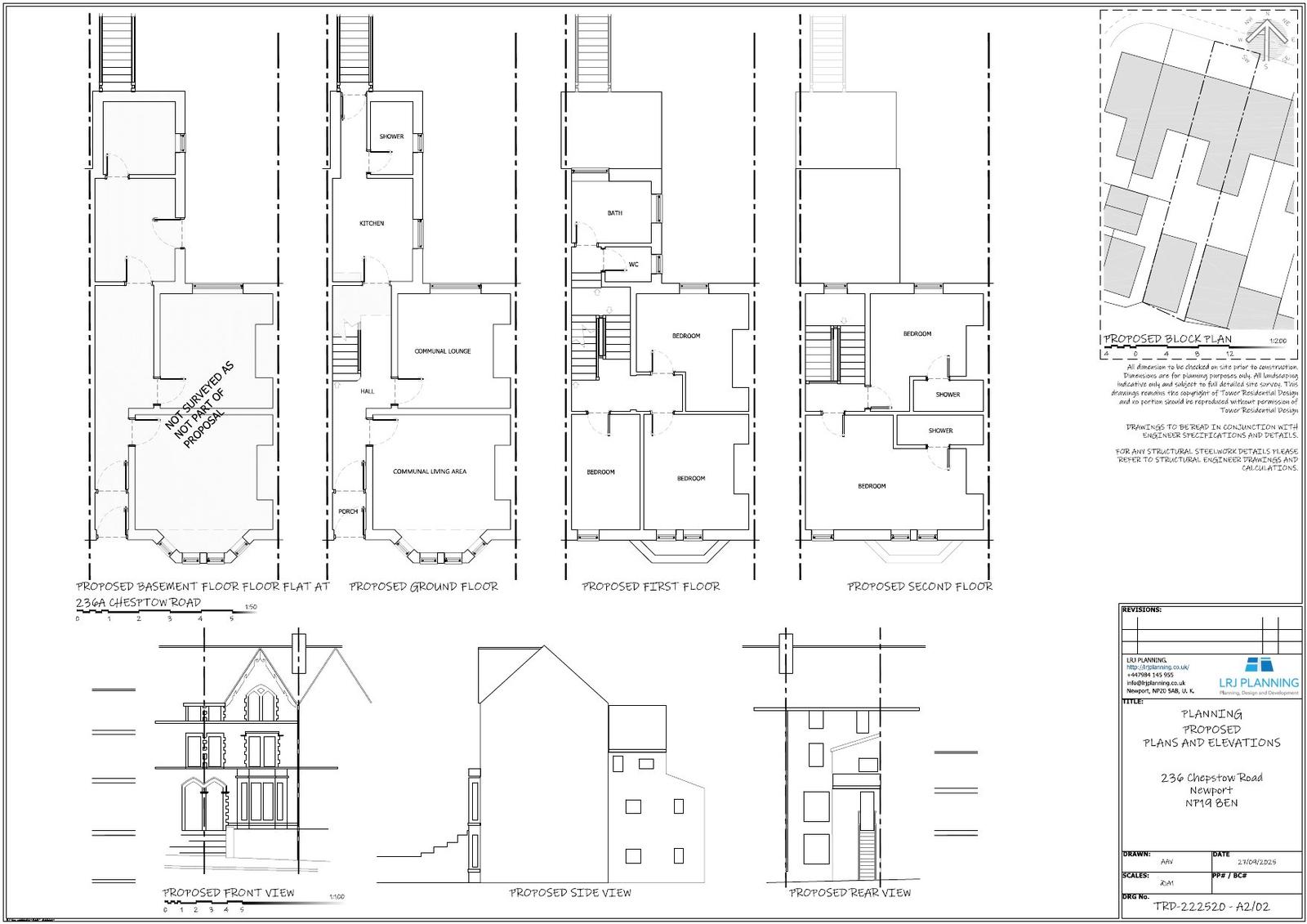
CHANGE OF USE FROM DWELLING (C3 USE) TO A 5 NO. BEDROOM HOUSE IN MULTIPLE OCCUPATION (C4 USE)

Documents

25.0937 - OR
Officer Report
Not yet archived · Original link
Appeal forms
Appeal Form
Not yet archived · Original link
Decision Notice
Decision Notice
Not yet archived · Original link
Dwr Cymru - Welsh Water
Consult Response Statutory
Not yet archived · Original link
Environmental Health - Housing
Consult Response Statutory
Not yet archived · Original link
Flooding Statement
Supporting Information
Not yet archived · Original link
Green Infrastructure Statement
Supporting Information
Not yet archived · Original link
Gwent Police
Consult Response Statutory
Not yet archived · Original link
Highways
Consult Response Statutory
Not yet archived · Original link
NRW
Consult Response Statutory
Not yet archived · Original link
Parking Survey
Supporting Information
Not yet archived · Original link
PL-LRJ-222520 - Proposed Block /Floor Plans and Elevations
Superseded Document
Not yet archived · Original link
Planning Contributions Manager
Consult Response Statutory
Not yet archived · Original link
Planning Statement
Supporting Information
Not yet archived · Original link
Revised Application Form
Application Form
Not yet archived · Original link
SAB drainage
Consult Response Statutory
Not yet archived · Original link
Site Notice - SNSTD
Site/Press Notice
Not yet archived · Original link
Sustainability Appraisal.
Supporting Information
Not yet archived · Original link
Waste comments received post decision
Consult Response Statutory
Not yet archived · Original link

Have your say

Your comment matters. Councils must consider every representation that raises material planning considerations.

Write a comment