← Newport City Council

Status

Unknown New housing
Received
14 Nov 2025
New homes
1

Full proposal

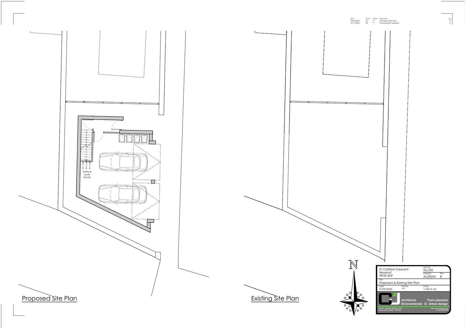
PROPOSED CONSTRUCTION OF A SELF CONTAINED FLAT WITH ON SITE PARKING, REFUSE AND CYCLE STORAGE FACILITIES

Documents

AL(00)02 - Proposed Elevations Rev C
Drawing
Not yet archived · Original link
Drawing - OS Site Location Plan
Archived · Original link
Application Form
Application Form
Not yet archived · Original link
Decision Notice
Decision Notice
Not yet archived · Original link
dele report
Officer Report
Not yet archived · Original link
Design Access Statement November 2025
Design Access Statement
Not yet archived · Original link
Green Infrastructure Statement
Supporting Information
Not yet archived · Original link
Highways Officer
Consult Response Statutory
Not yet archived · Original link
Landscape Architect
Consult Response Statutory
Not yet archived · Original link
NRW
Consult Response Statutory
Not yet archived · Original link
SAB
Consult Response Statutory
Not yet archived · Original link
Waste
Consult Response Statutory
Not yet archived · Original link

Have your say

Your comment matters. Councils must consider every representation that raises material planning considerations.

Write a comment