← Newport City Council

Status

Awaiting decision Change of use
Received
19 Nov 2025
New homes
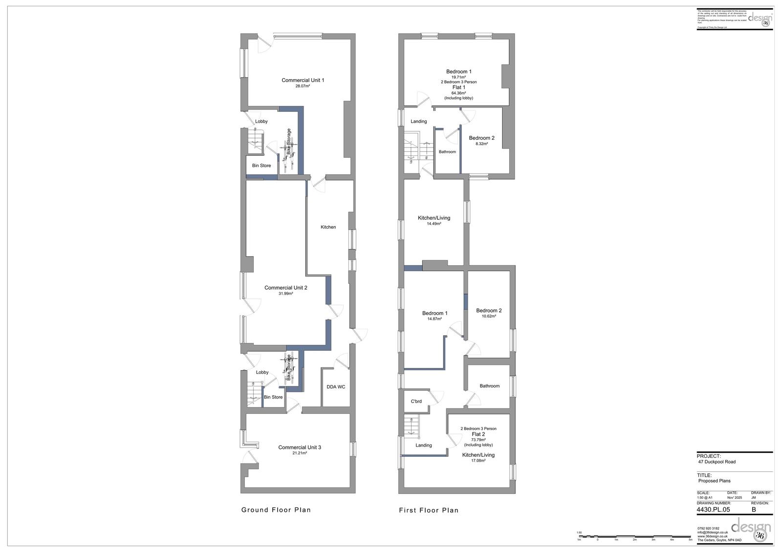
2

Full proposal

CONVERSION OF THE FIRST FLOOR TO CREATE TWO FLATS (C3 USE)

Documents

25303-R-601- Flood Consequence Assessment
Supporting Information
Not yet archived · Original link
Drawing - OS Site Location Plan
Archived · Original link
4430.PL.02 - Existing and Proposed Block Plans Rev A.
Drawing
Not yet archived · Original link
4430.PL.03 - Existing Plans Rev A.
Drawing
Not yet archived · Original link
4430.PL.04 - Existing Elevations Rev A
Drawing
Not yet archived · Original link
4430.PL.06 - Proposed Elevations Rev B.
Drawing
Not yet archived · Original link
Application Form
Application Form
Not yet archived · Original link
Consultation Response - WWDC
Consult Response Statutory
Not yet archived · Original link
Green Infrastructure Statement
Supporting Information
Not yet archived · Original link
Highways
Consult Response Statutory
Not yet archived · Original link
NRW
Consult Response Statutory
Not yet archived · Original link
Planning Statement
Supporting Information
Not yet archived · Original link
Site Notice - SNSTD
Site/Press Notice
Not yet archived · Original link

Have your say

Your comment matters. Councils must consider every representation that raises material planning considerations.

Write a comment