← Newport City Council

Status

Awaiting decision House extension
Received
02 Dec 2025
New homes
0

Full proposal

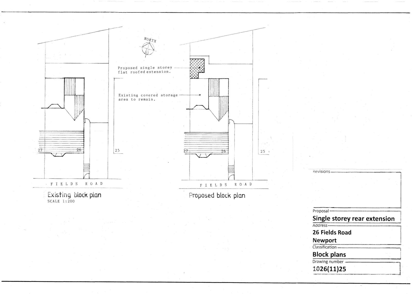
RETENTION OF COVERED STORAGE AREA TO SIDE/REAR ELEVATIONS AND CONSTRUCTION OF SINGLE STOREY REAR EXTENSION

Have your say

Your comment matters. Councils must consider every representation that raises material planning considerations.

Write a comment