25/1074
Newport City Council
Status
Awaiting decision
House extension
Received
12 Dec 2025
New homes
0
Full proposal
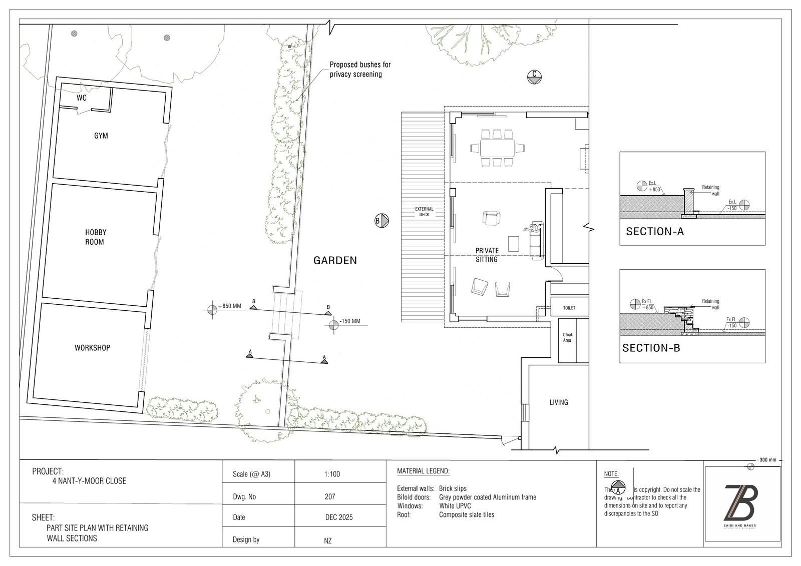
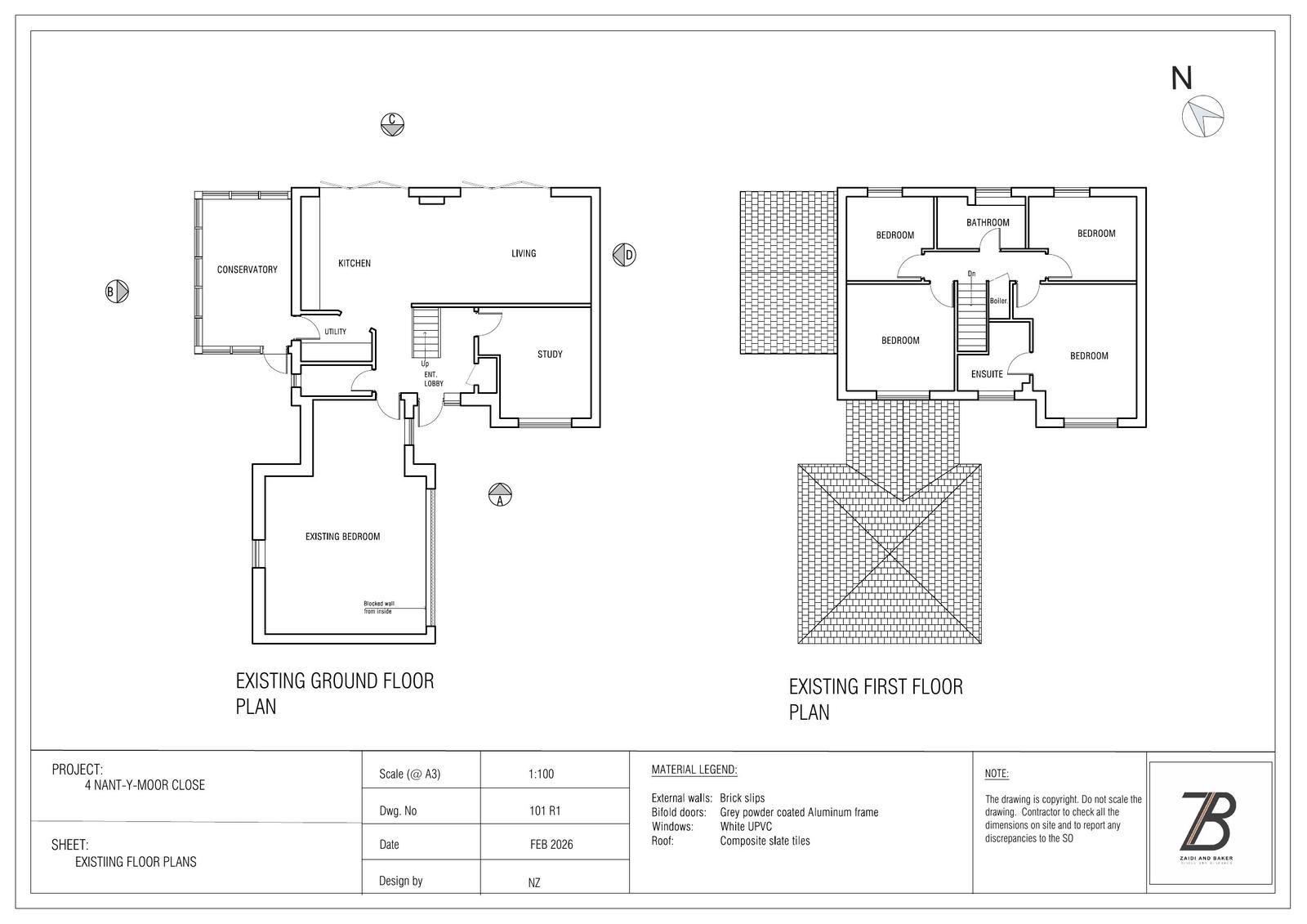
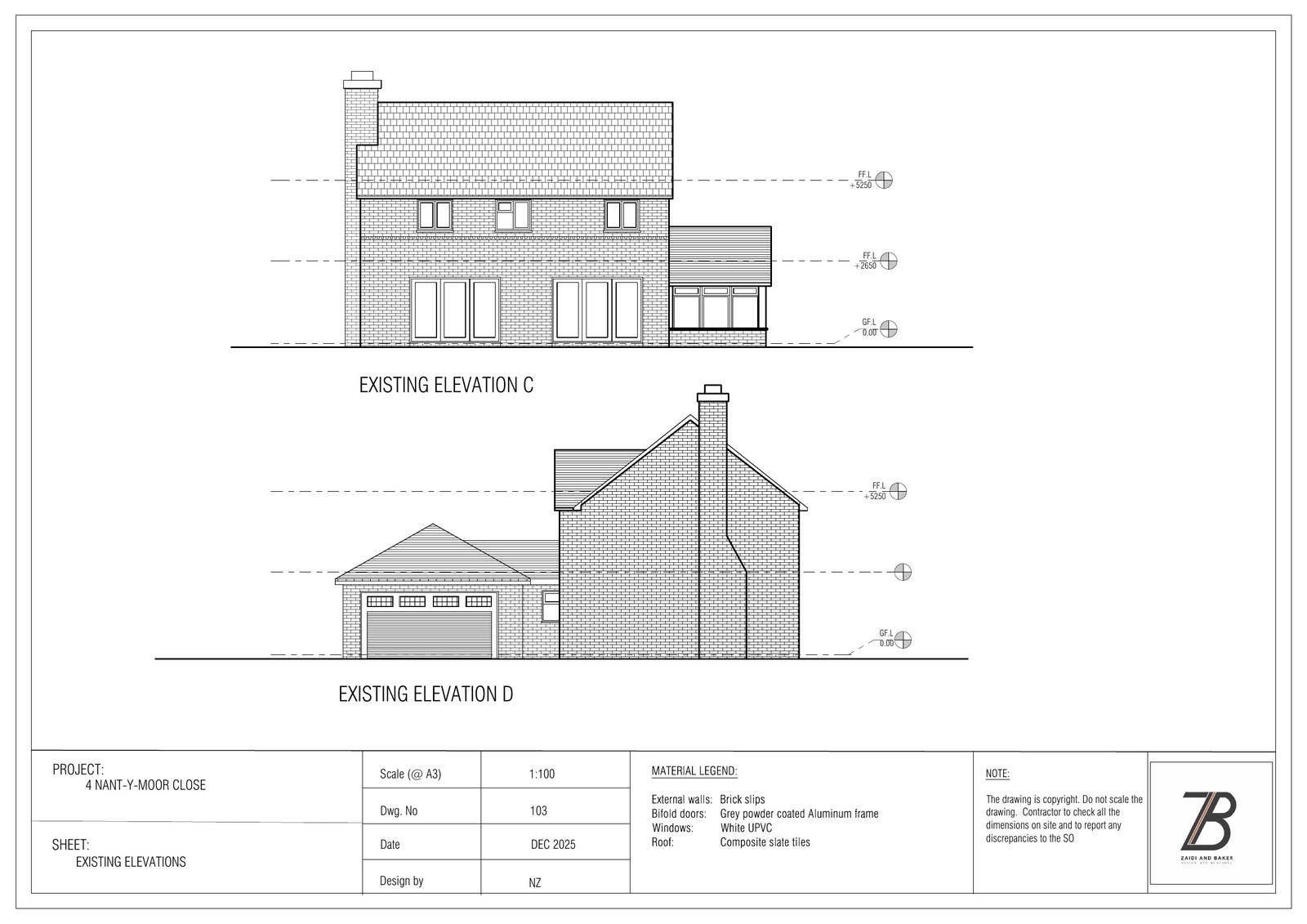
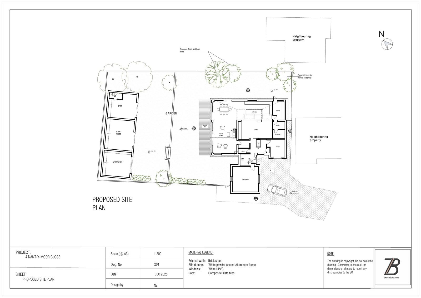
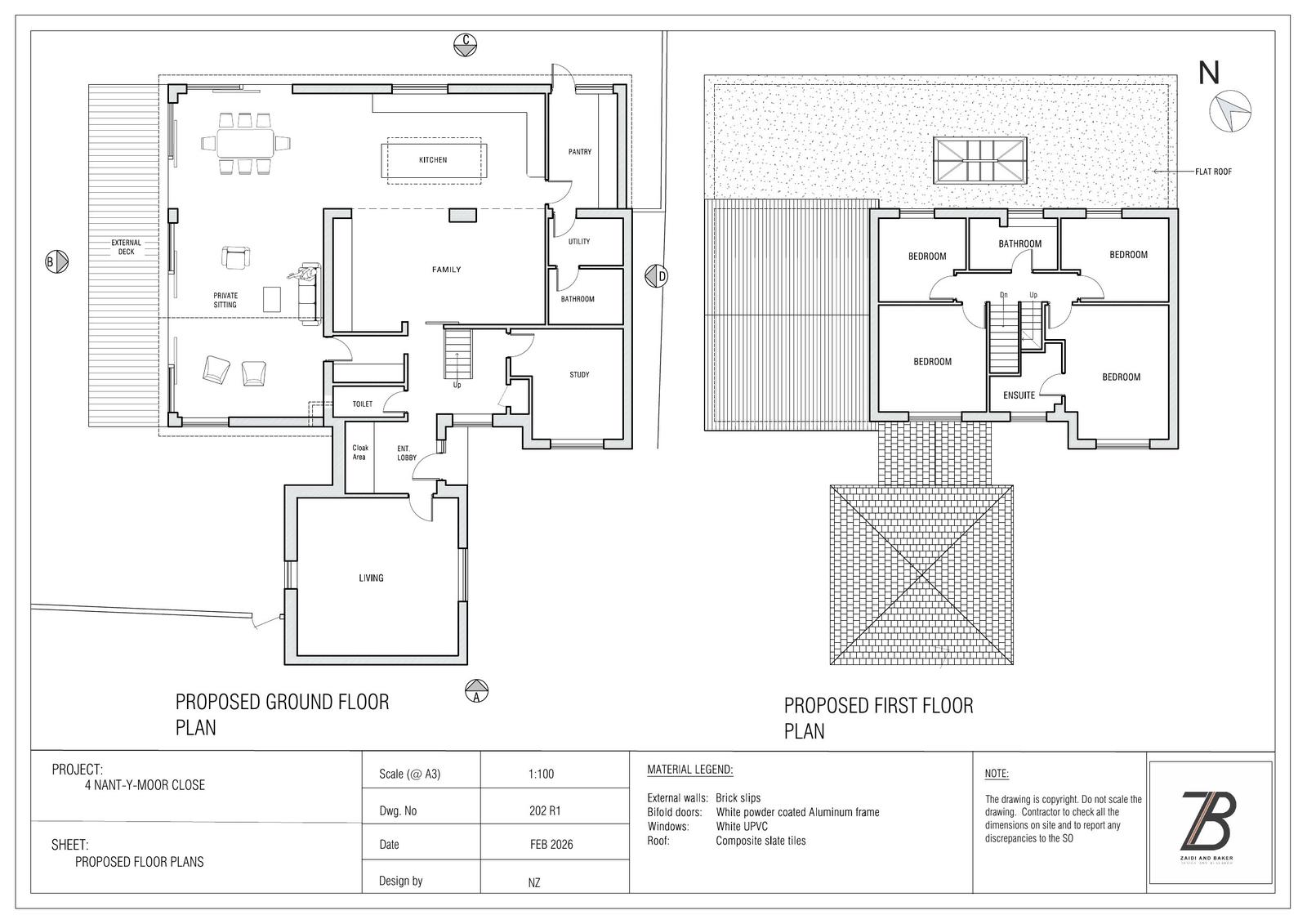
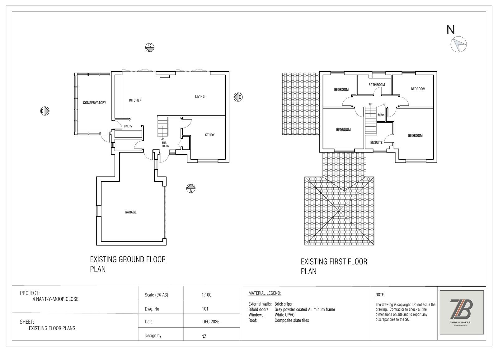
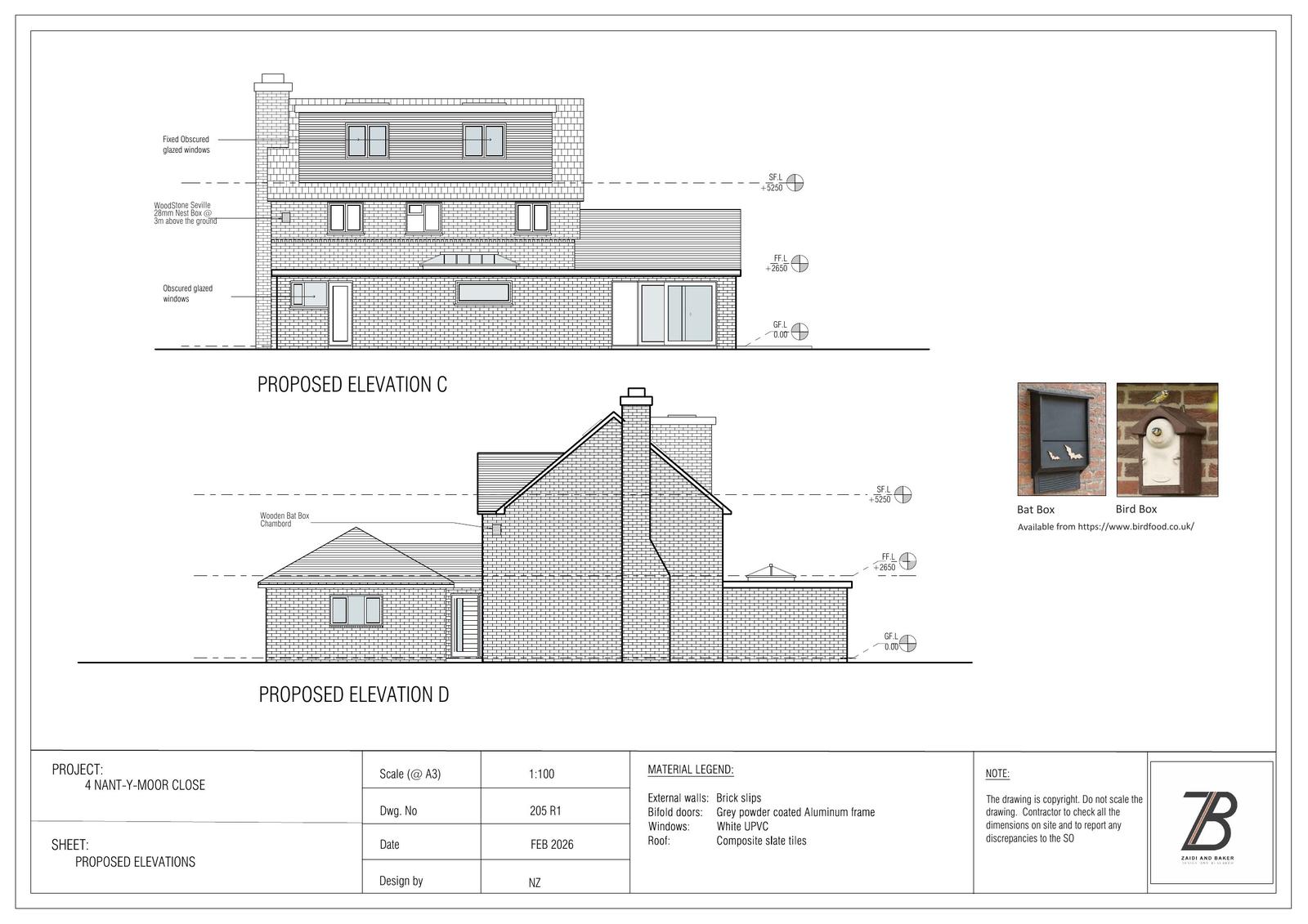
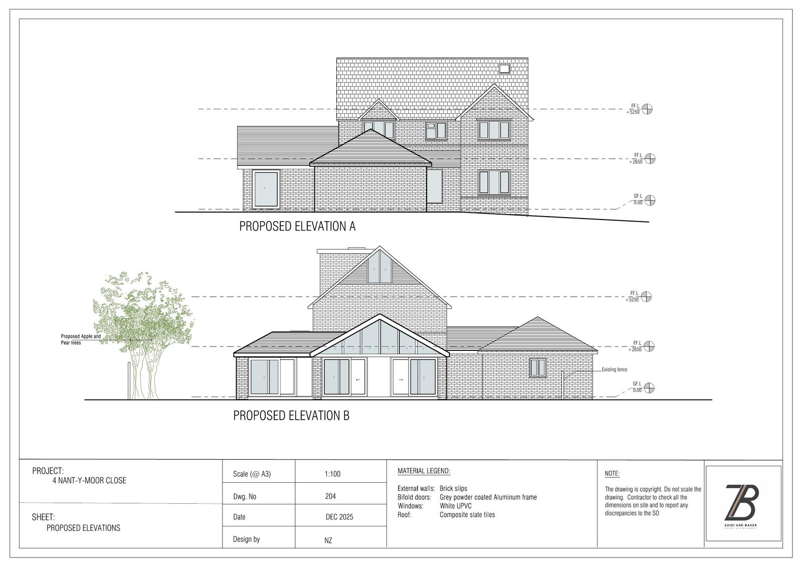
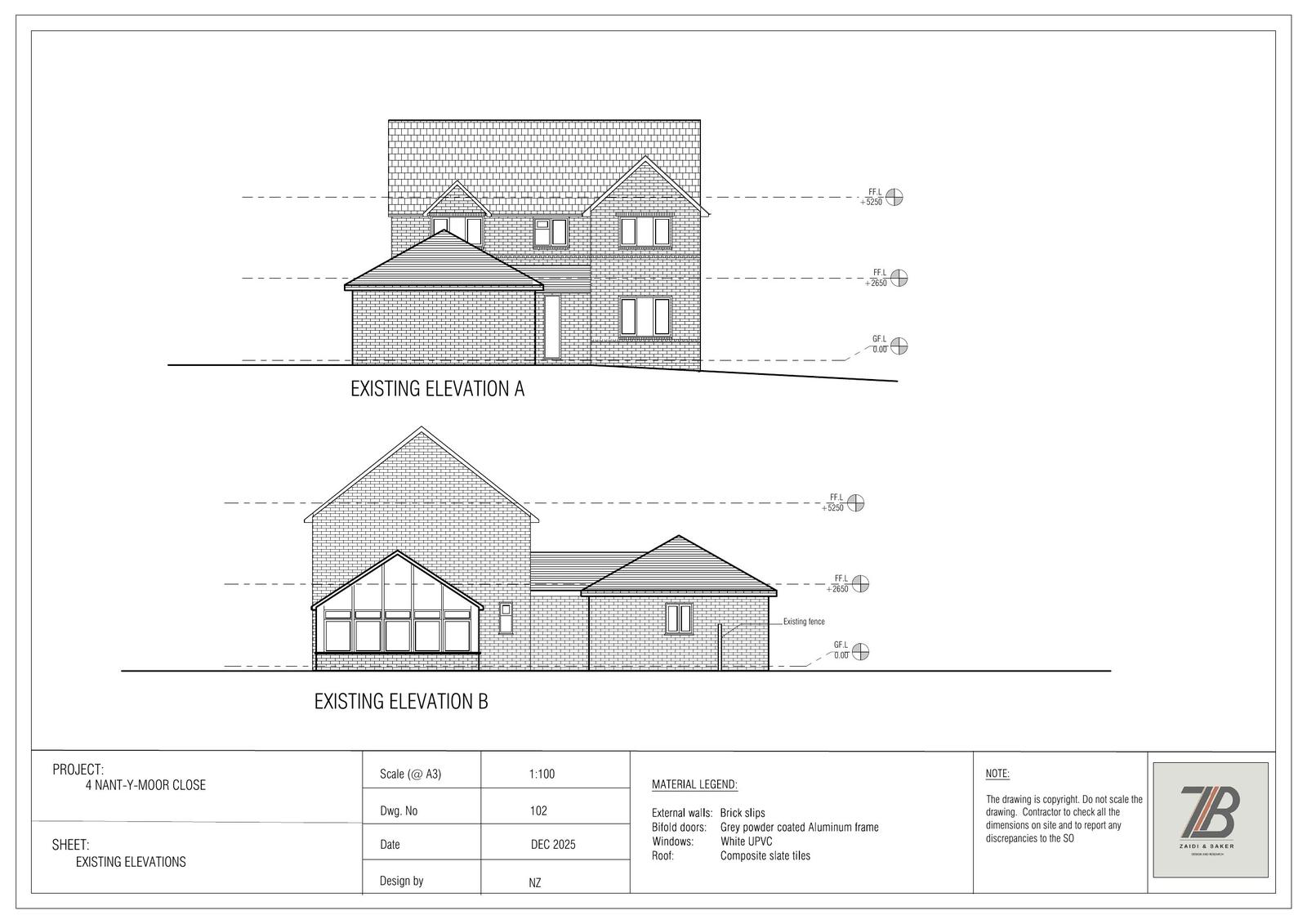
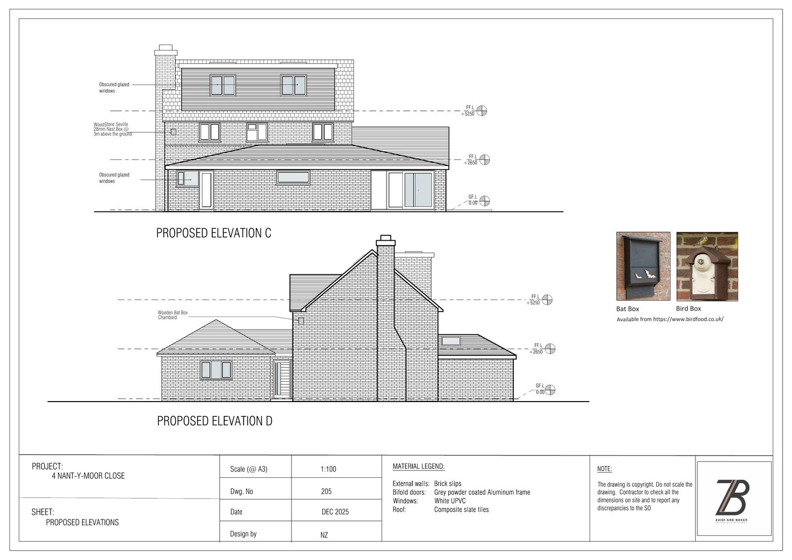
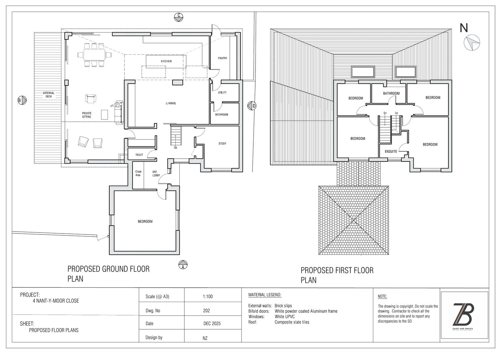
PROPOSED GROUND FLOOR REAR AND SIDE EXTENSION, LOFT CONVERSION WITH REAR DORMER, ANCILLARY BUILDING AND INSTALLATION OF RETAINING WALL AND REPROFILING OF GARDEN
Documents
Have your say
Your comment matters. Councils must consider every representation that raises material planning considerations.