← Newport City Council

Status

Awaiting decision New housing
Received
12 Dec 2025
New homes
1

Full proposal

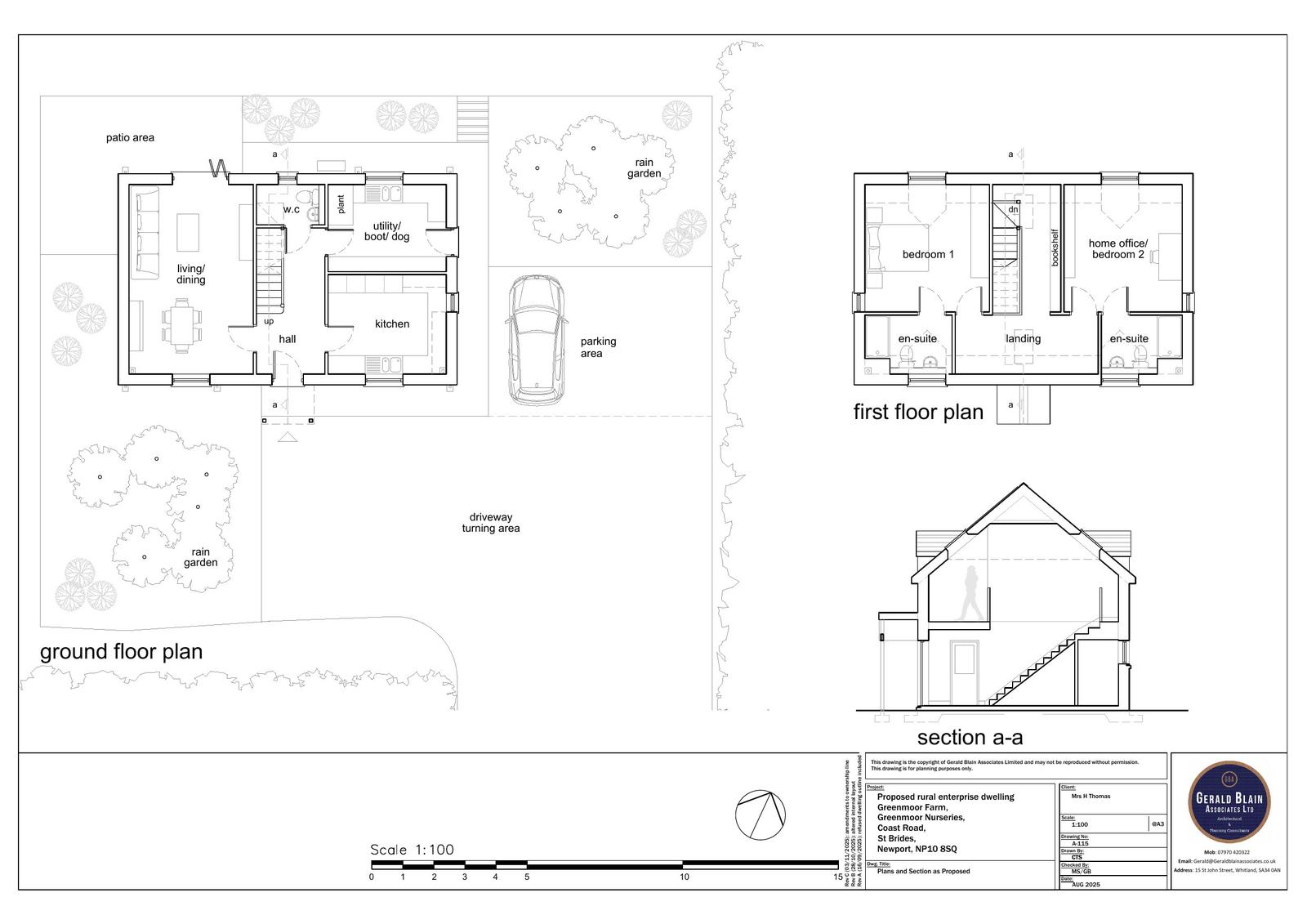
ERECTION OF A RURAL ENTERPRISE DWELLING ASSOCIATED WITH THE EXISTING DOG KENNELS AND WIDER ENTERPRISE AT GREENMOOR NURSERIES

Documents

Drawing - OS Site Location Plan
Archived · Original link
A-102 - Existing Block Plan
Drawing
Not yet archived · Original link
A-112 - Proposed Block Plan
Drawing
Not yet archived · Original link
A-114 - Proposed Site Section A-A
Drawing
Not yet archived · Original link
A-116 - Proposed Elevations
Drawing
Not yet archived · Original link
A-120 - Site Drainage Plan.
Drawing
Not yet archived · Original link
Appendix A - Summary of Previous Application and Appeal.
Supporting Information
Not yet archived · Original link
Appendix B - National Planning Policy.
Supporting Information
Not yet archived · Original link
Application Form
Application Form
Not yet archived · Original link
Dwr Cymru/Welsh Water
Consult Response Statutory
Not yet archived · Original link
Ecology Assessment 2022-2025.
Supporting Information
Not yet archived · Original link
Environmental Health Officer
Consult Response Statutory
Not yet archived · Original link
Flood Consequence Assessment
Supporting Information
Not yet archived · Original link
Green Infrastructure Statement
Supporting Information
Not yet archived · Original link
Heneb
Consult Response Statutory
Not yet archived · Original link
Highways Officer
Consult Response Statutory
Not yet archived · Original link
Landscape Architect
Consult Response Statutory
Not yet archived · Original link
NRW
Consult Response Statutory
Not yet archived · Original link
Planning Design and Access Statement
Design Access Statement
Not yet archived · Original link
Rural Enterprise Dwelling Appraisal
Supporting Information
Not yet archived · Original link
Site Notice - SNSTD
Site/Press Notice
Not yet archived · Original link
Waste
Consult Response Statutory
Not yet archived · Original link
Wentlooge Community Council
Consult Response Statutory
Not yet archived · Original link

Have your say

Your comment matters. Councils must consider every representation that raises material planning considerations.

Write a comment