← Newport City Council

Status

Awaiting decision Change of use
Received
23 Jan 2026
New homes
1

Full proposal

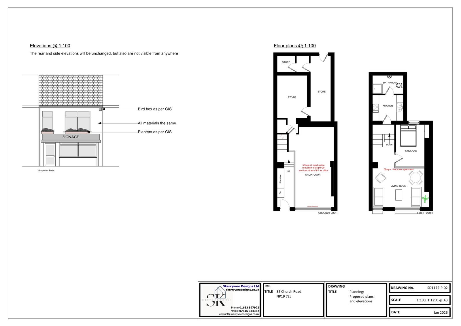
CONVERSION OF SHOP (A1) TO A FIRST FLOOR FLAT (C3) AND RETENTION OF THE EXISTING USE (A1 SHOP) ON THE GROUND FLOOR

Have your say

Your comment matters. Councils must consider every representation that raises material planning considerations.

Write a comment