← Newport City Council

Status

Awaiting decision House extension
Received
Last month
New homes
0

Full proposal

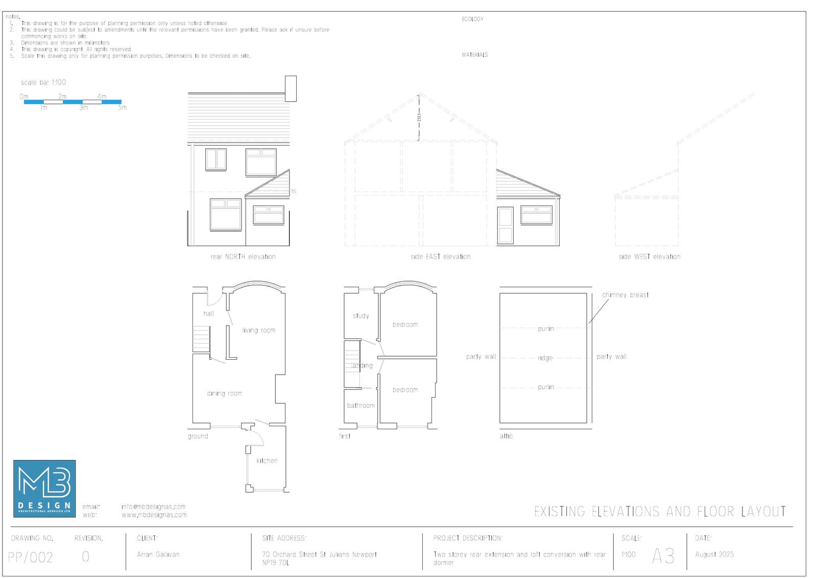
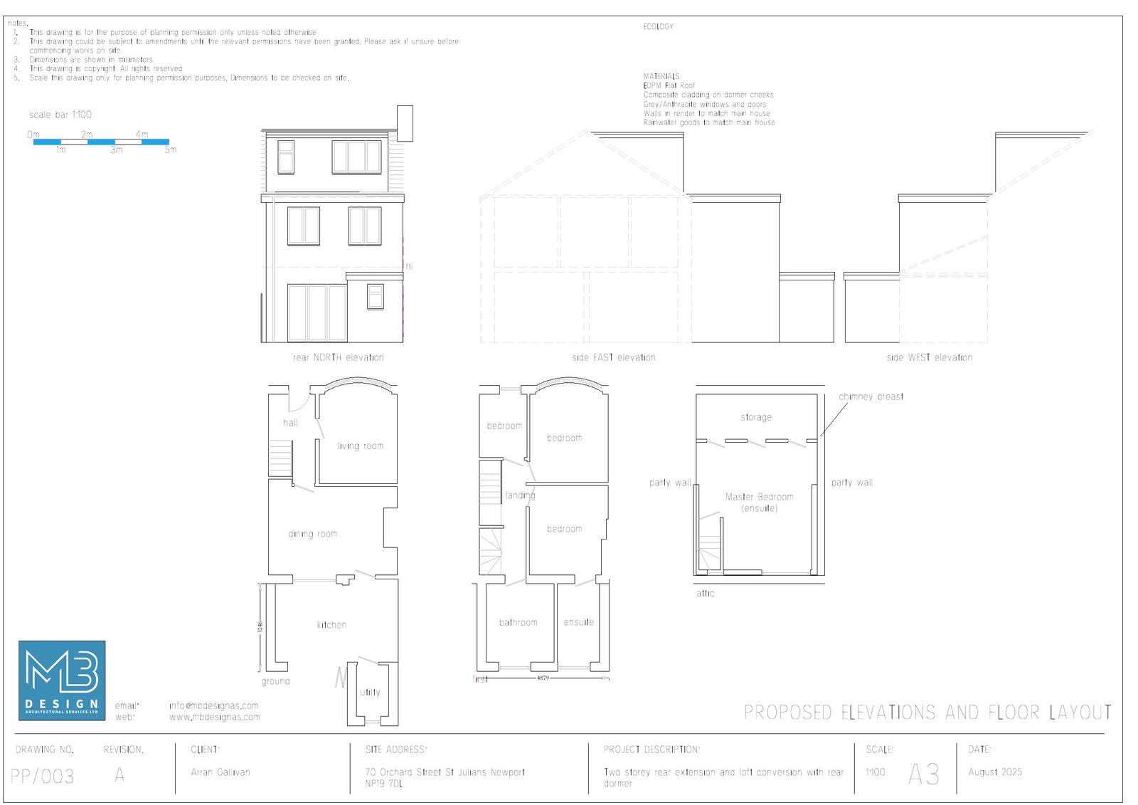
PART TWO STOREY, PART SINGLE STOREY REAR EXTENSION LOFT CONVERSION WITH REAR DORMER

Documents

Application Form
Archived · Original link
Drawing
Archived · Original link
Supporting Information
Archived · Original link
Consult Response Statutory
Archived · Original link
Drawing - OS Site Location Plan
Archived · Original link
Site/Press Notice
Archived · Original link

Have your say

Your comment matters. Councils must consider every representation that raises material planning considerations.

Write a comment