← Newport City Council

Status

Awaiting decision Change of use
Received
Last month
New homes
0

Full proposal

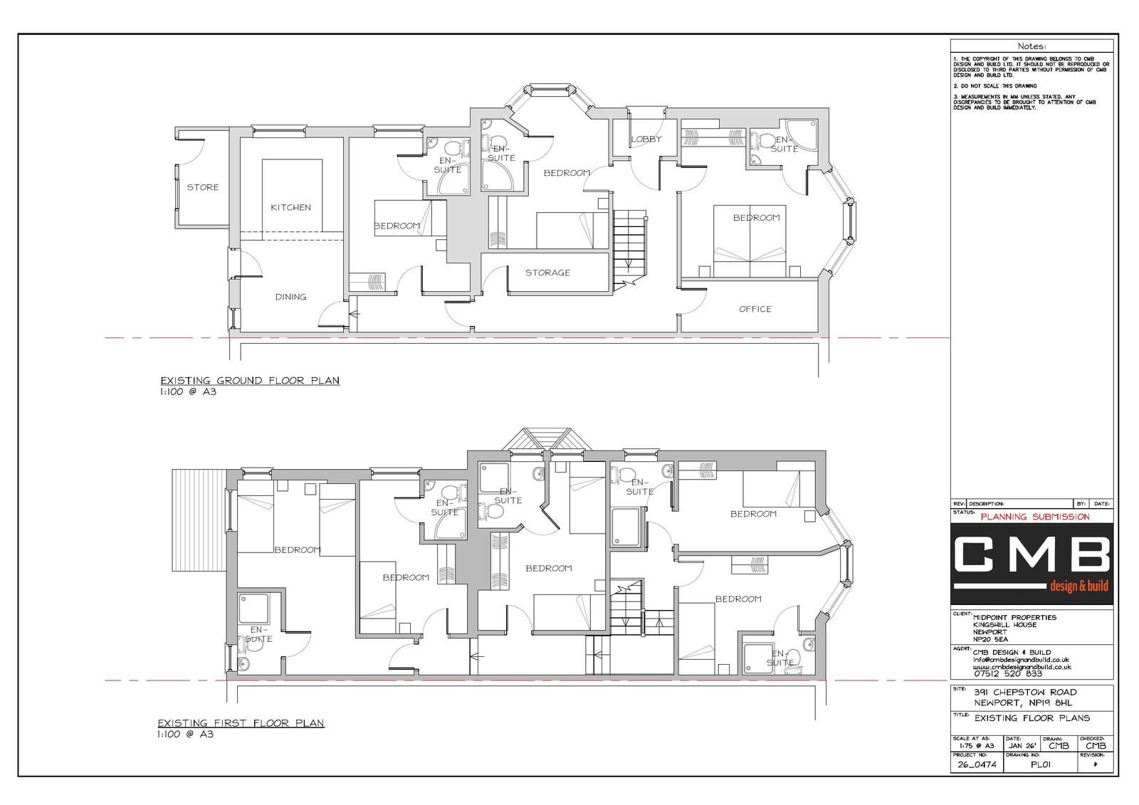
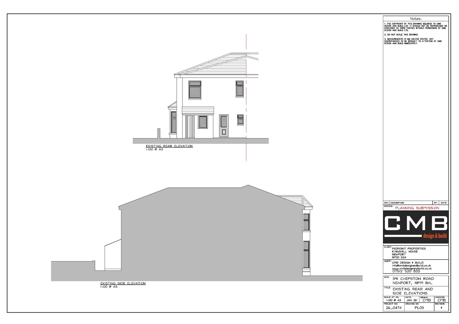
CHANGE OF USE FROM GUESTHOUSE (C1) TO TEMPORARY ACCOMMODATION (SUI-GENERIS) INCLUDING PART TWO STOREY PART SINGLE STOREY EXTENSION

Have your say

Your comment matters. Councils must consider every representation that raises material planning considerations.

Write a comment