← Newport City Council

Status

Awaiting decision Change of use
Received
Last month
New homes
0

Full proposal

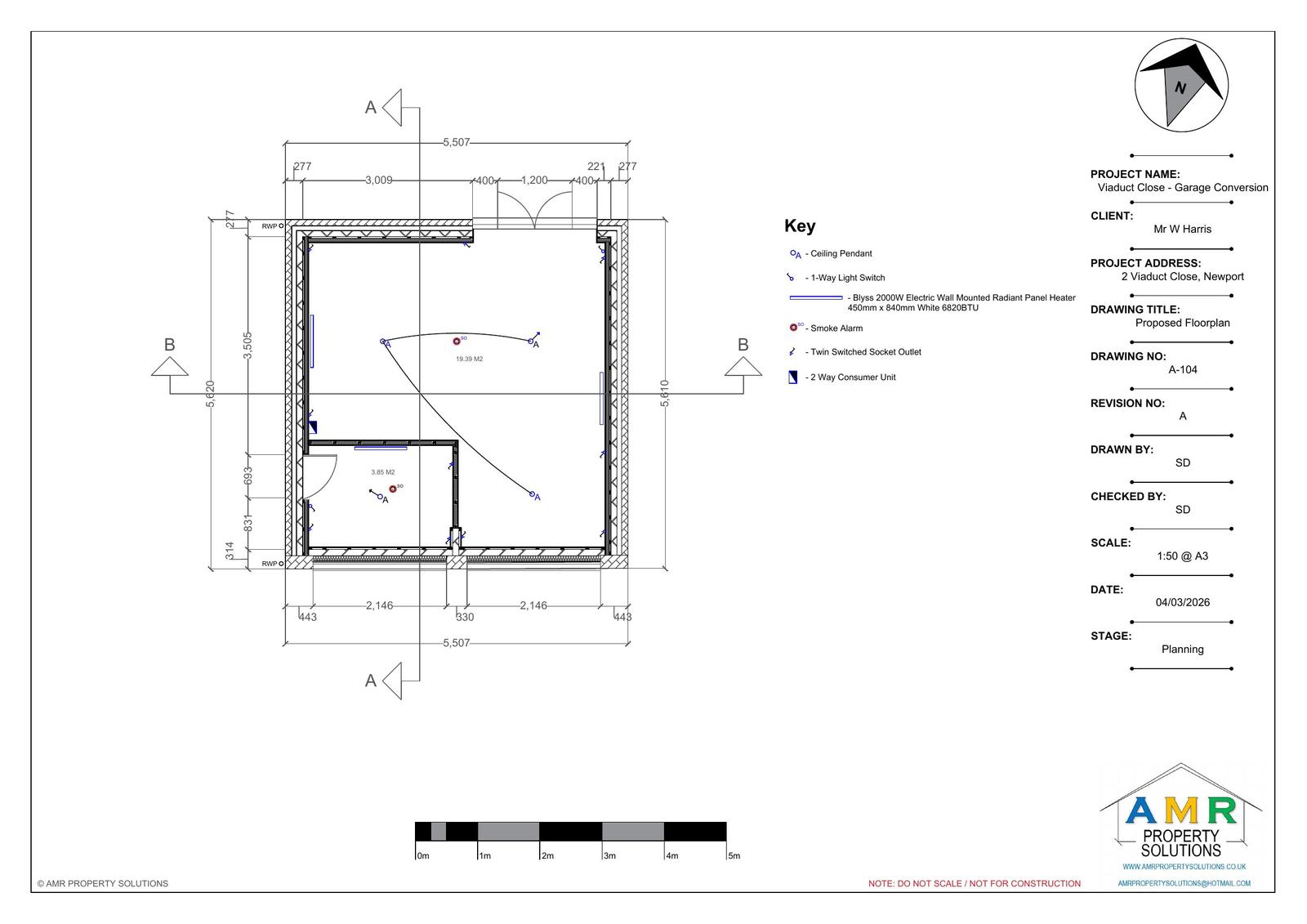
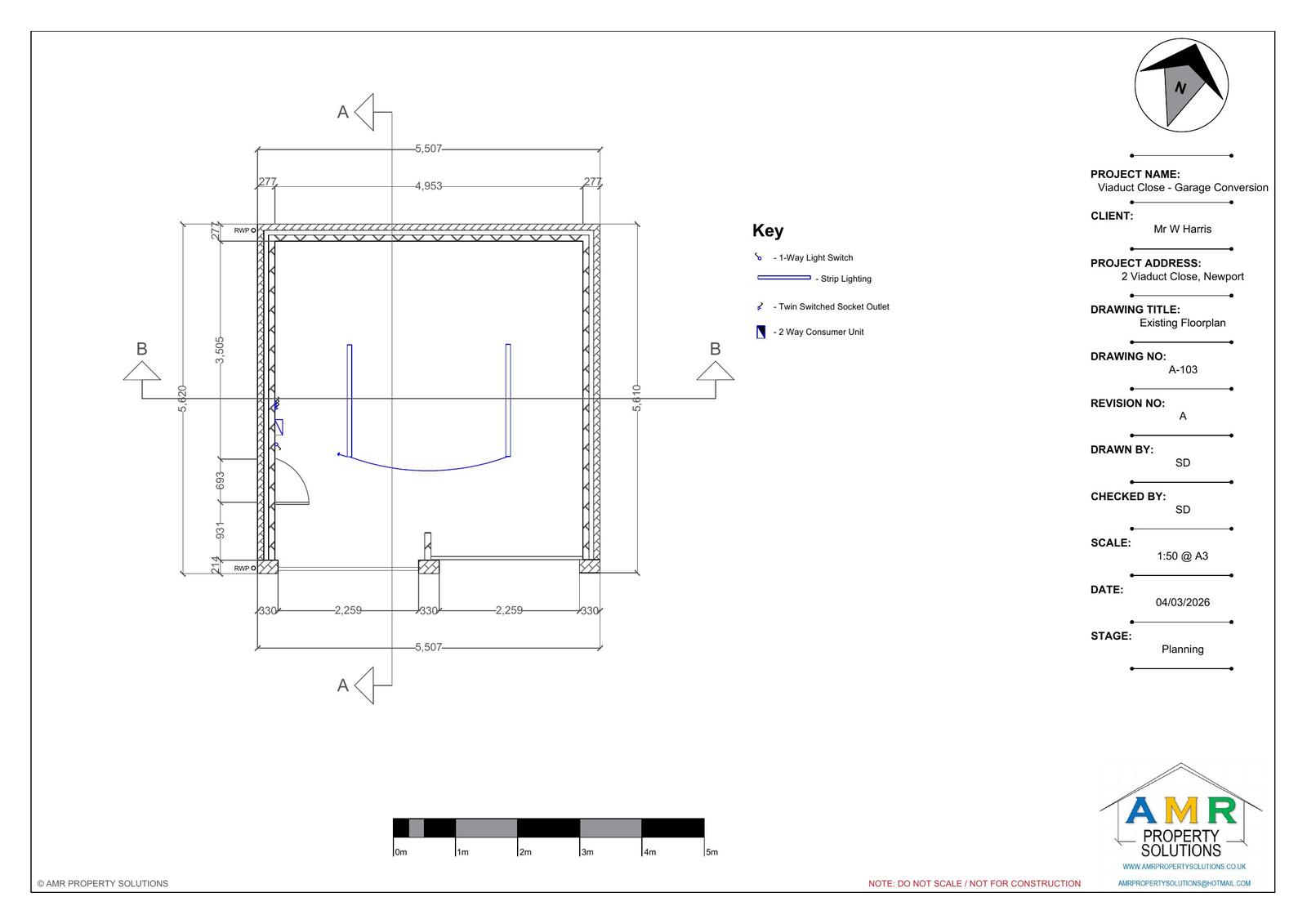
CONVERSION OF EXISTING GARAGE INTO HOME OFFICE ACCOMODATION AND ASSOCIATED WORKS

Documents

Drawing
Archived · Original link
Drawing
Archived · Original link
Drawing - OS Site Location Plan
Archived · Original link

Have your say

Your comment matters. Councils must consider every representation that raises material planning considerations.

Write a comment