← North East Derbyshire District Council

Status

pending New housing
Received
21 Feb 2025
New homes
1

Summary

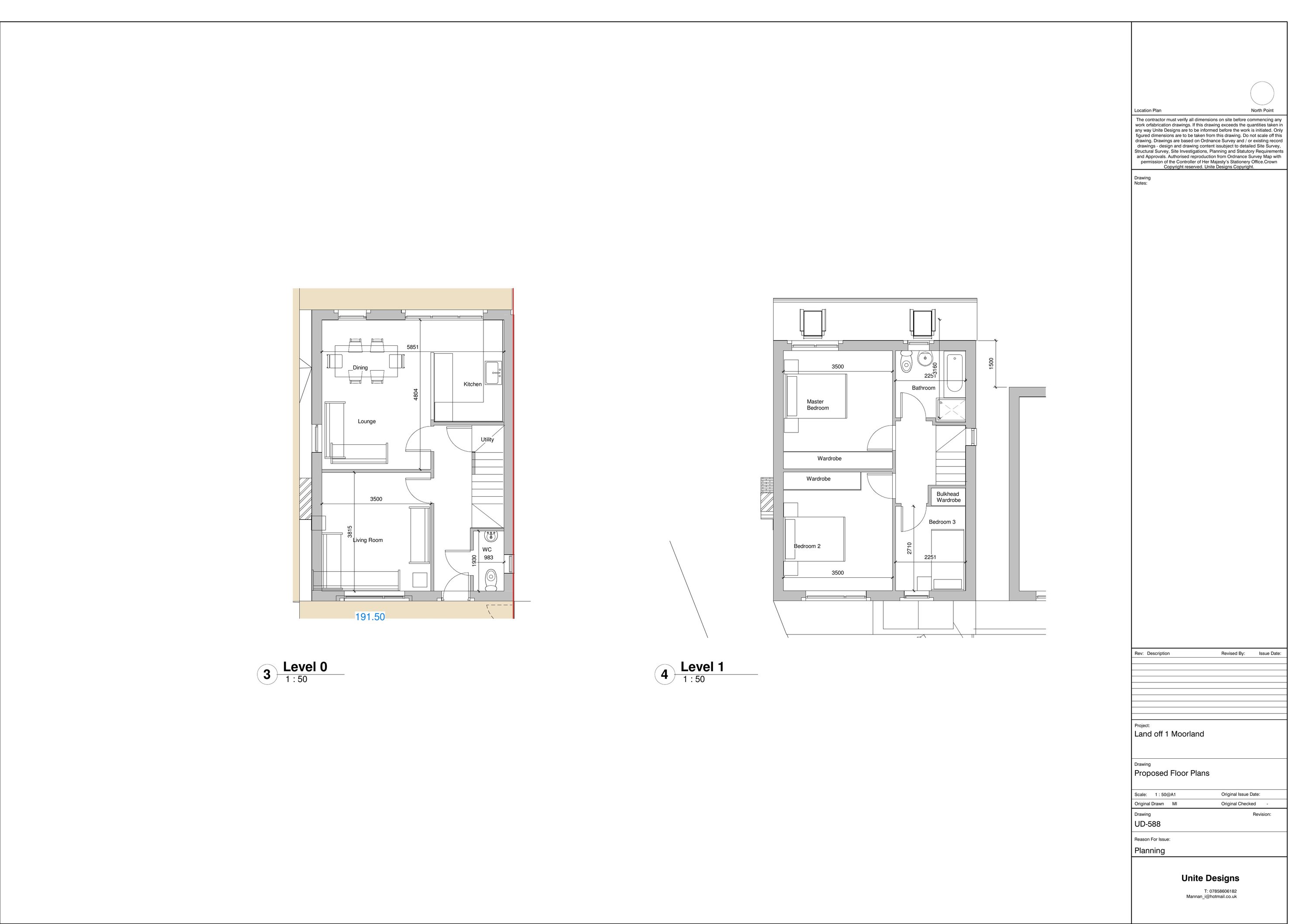
Erection of one new two-storey dwelling.

Full proposal

Erection of one new two storey dwelling (Amended Plans) (Further amended plans)

Documents

3D DRAWING
Revised Drawing
Not yet archived · Original link
3D VIEW
Supporting Document
Not yet archived · Original link
3D VIEW
Supporting Document
Not yet archived · Original link
APPLICATION FORM - WITHOUT PERSONAL DATA
Application Form
Not yet archived · Original link
BNG METRIC CALC
BackGround Papers
Not yet archived · Original link
CA COMMENT
Consultee Comment
Not yet archived · Original link
CONFIRMATION REGARDS SELF-BUILD APPLICATION
Correspondence
Not yet archived · Original link
DESIGN AND ACCESS STATEMENT
BackGround Papers
Not yet archived · Original link
DWT COMMENTS
Consultee Comment
Not yet archived · Original link
ECOLOGY REPORT
BackGround Papers
Not yet archived · Original link
Drawing
Archived · Original link
HIGHWAY COMMENTS
Consultee Comment
Not yet archived · Original link
HIGHWAYS COMMENT
Consultee Comment
Not yet archived · Original link
PHASE 1 GEOENVIRONMENTAL DESK STUDY/COAL MINING REPORT
BackGround Papers
Not yet archived · Original link
PROPOSED ELEVATION
Revised Drawing
Not yet archived · Original link
PROPOSED ELEVATIONS
Superseded Drawing
Not yet archived · Original link
Superseded Drawing
Archived · Original link
Superseded Drawing
Archived · Original link
Revised Drawing
Archived · Original link
PROPOSED FRONT AND REAR ELEVATIONS
Superseded Drawing
Not yet archived · Original link
PROPOSED SECTION & SIDE ELEVATION
Revised Drawing
Not yet archived · Original link
PROPOSED SIDE ELEVATIONS
Superseded Drawing
Not yet archived · Original link
PROPOSED SIDE ELEVATIONS
Superseded Drawing
Not yet archived · Original link
Superseded Drawing
Archived · Original link
Revised Drawing
Archived · Original link
REPRESENTATION LETTER - BALDWIN
Objection Comment
Not yet archived · Original link
REPRESENTATION LETTER - SANDERSON
Objection Comment
Not yet archived · Original link
REPRESENTATION LETTER BALDWIN
Objection Comment
Not yet archived · Original link
REPRESENTATION LETTER SANDERSON
Objection Comment
Not yet archived · Original link
REPRESENTATION LETTER SANDERSON/PAGE
Objection Comment
Not yet archived · Original link
REPRESENTATION LETTER WAIT
Objection Comment
Not yet archived · Original link
REPRESNTATION LETTER SANDERSON
Objection Comment
Not yet archived · Original link
TECHNICAL NOTE
Supporting Document
Not yet archived · Original link

Have your say

Your comment matters. Councils must consider every representation that raises material planning considerations.

Write a comment