← North East Derbyshire District Council

Status

pending New housing
Received
10 Dec 2025
New homes
2

Full proposal

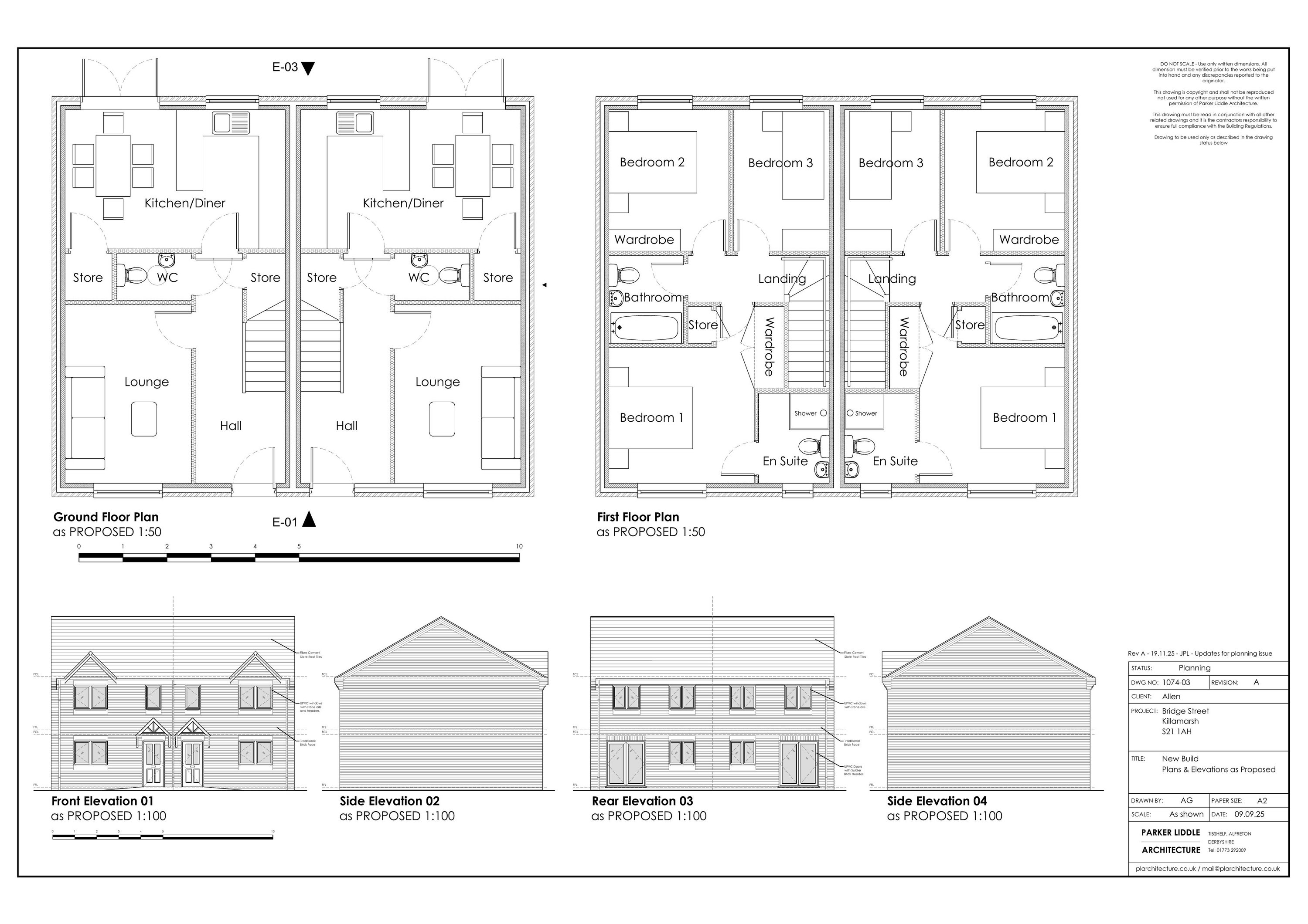
Construction 2no. semi detached new build infill development

Documents

Supporting Document
Archived · Original link
Supporting Document
Archived · Original link

Have your say

Your comment matters. Councils must consider every representation that raises material planning considerations.

Write a comment