← North East Derbyshire District Council
26/00146/FLH
North East Derbyshire District Council
Status
pending
House extension
Received
Last month
New homes
0
Full proposal
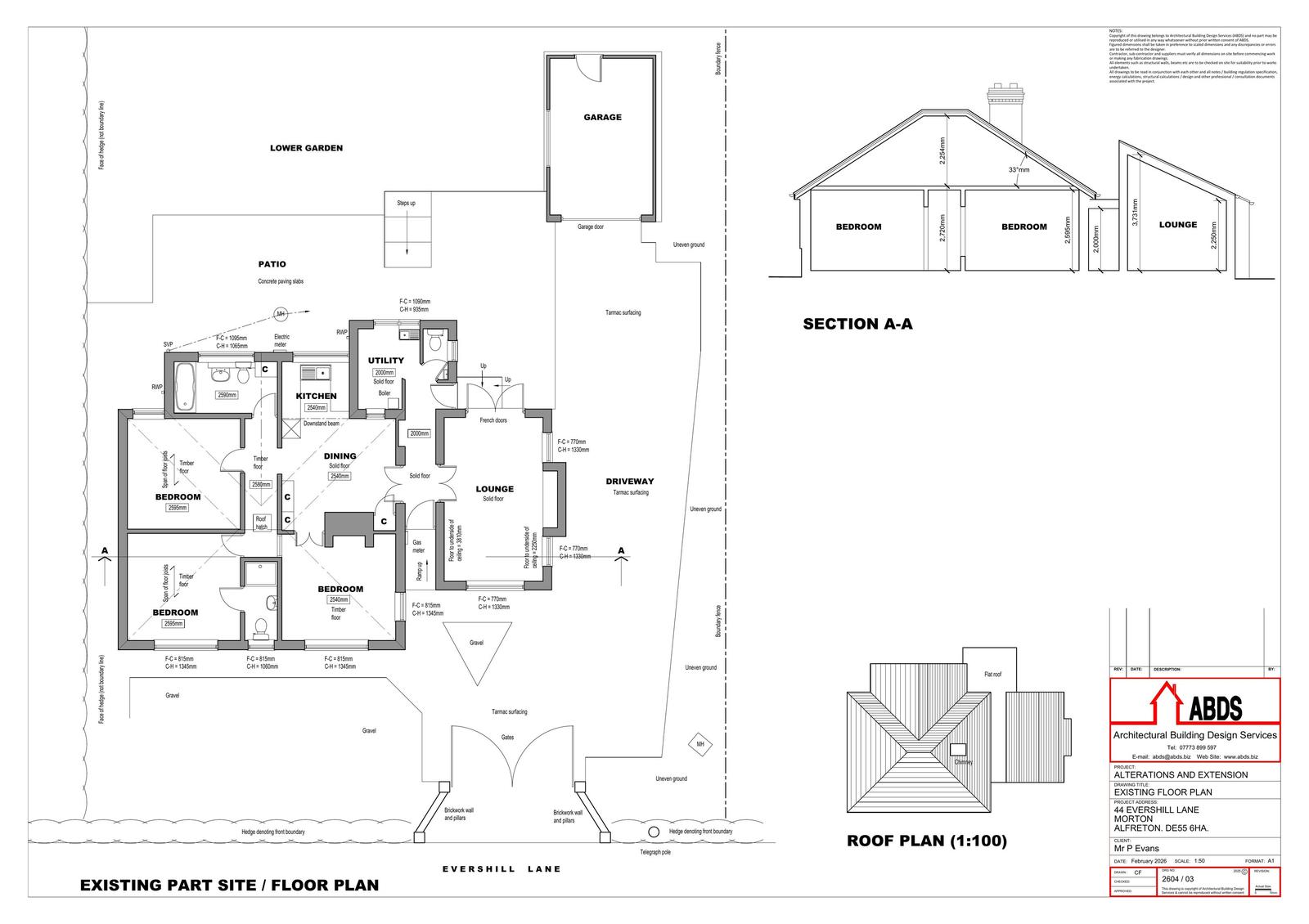
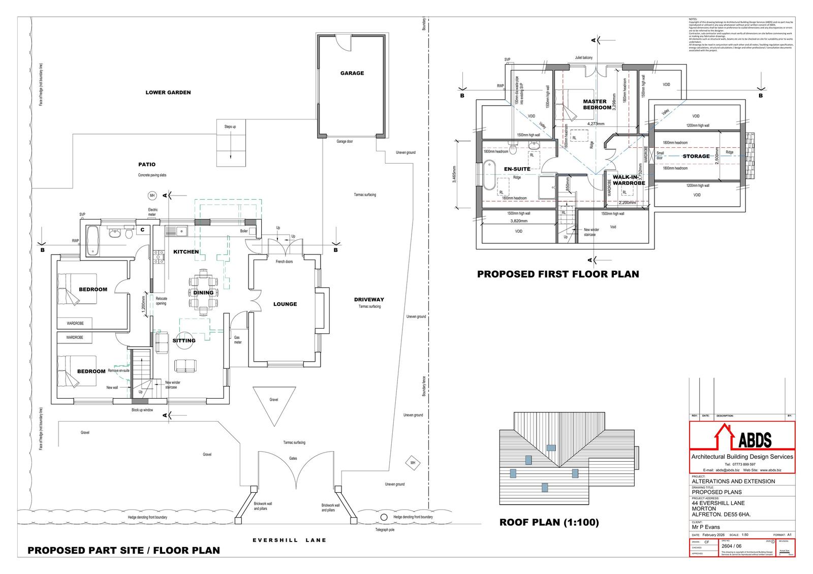
Replacement of existing bungalow roof to become a dormer bungalow. Proposed pitched roof to exisitng detached garage.
Documents
Have your say
Your comment matters. Councils must consider every representation that raises material planning considerations.