← North East Derbyshire District Council
26/00080/FLH
North East Derbyshire District Council
Status
pending
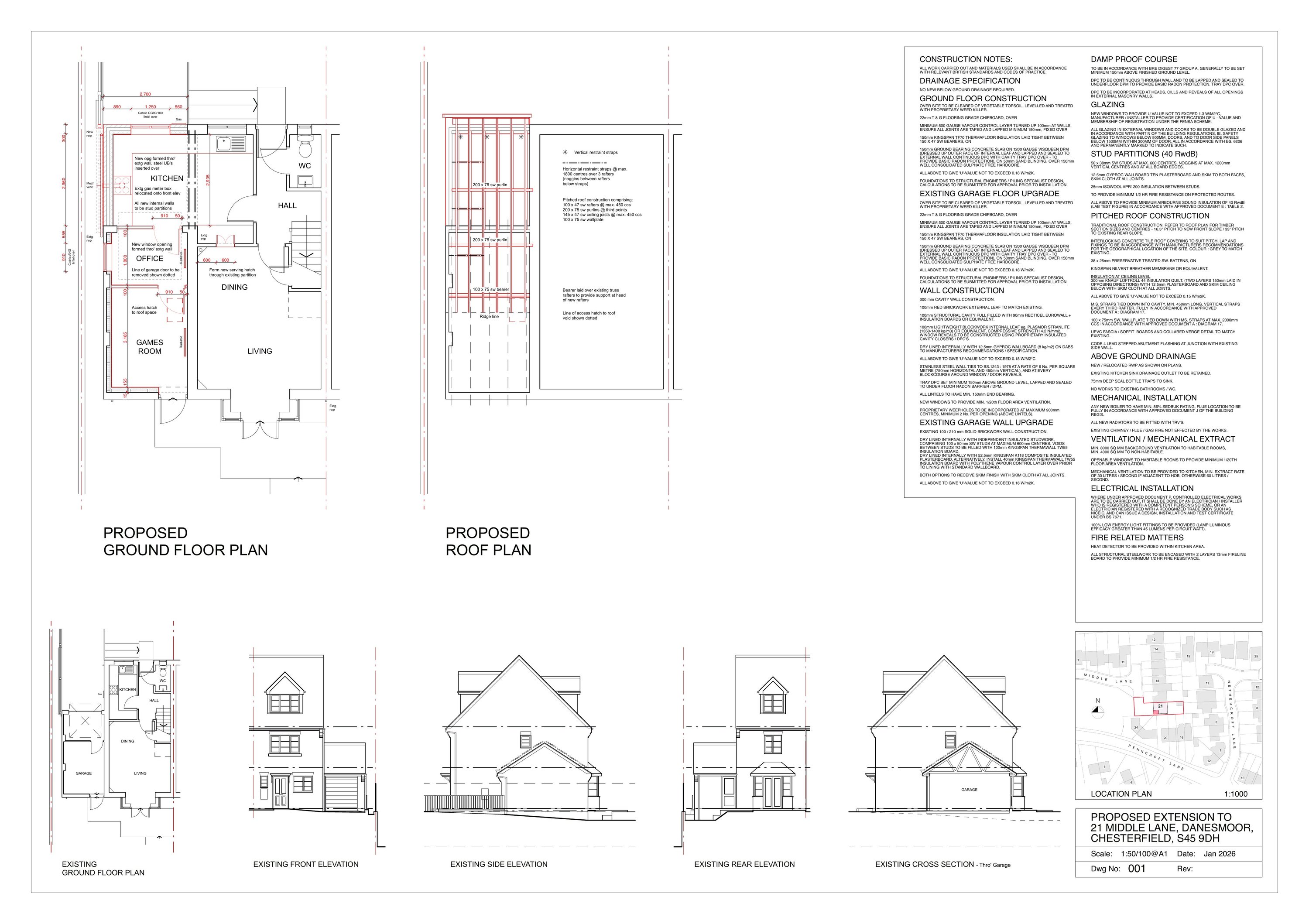
House extension
Received
02 Feb 2026
New homes
0
Full proposal
Single storey side extension and conversion of existing garage
Documents
Have your say
Your comment matters. Councils must consider every representation that raises material planning considerations.