← North East Derbyshire District Council

Status

pending Listed building
Received
Last month
New homes
0

Full proposal

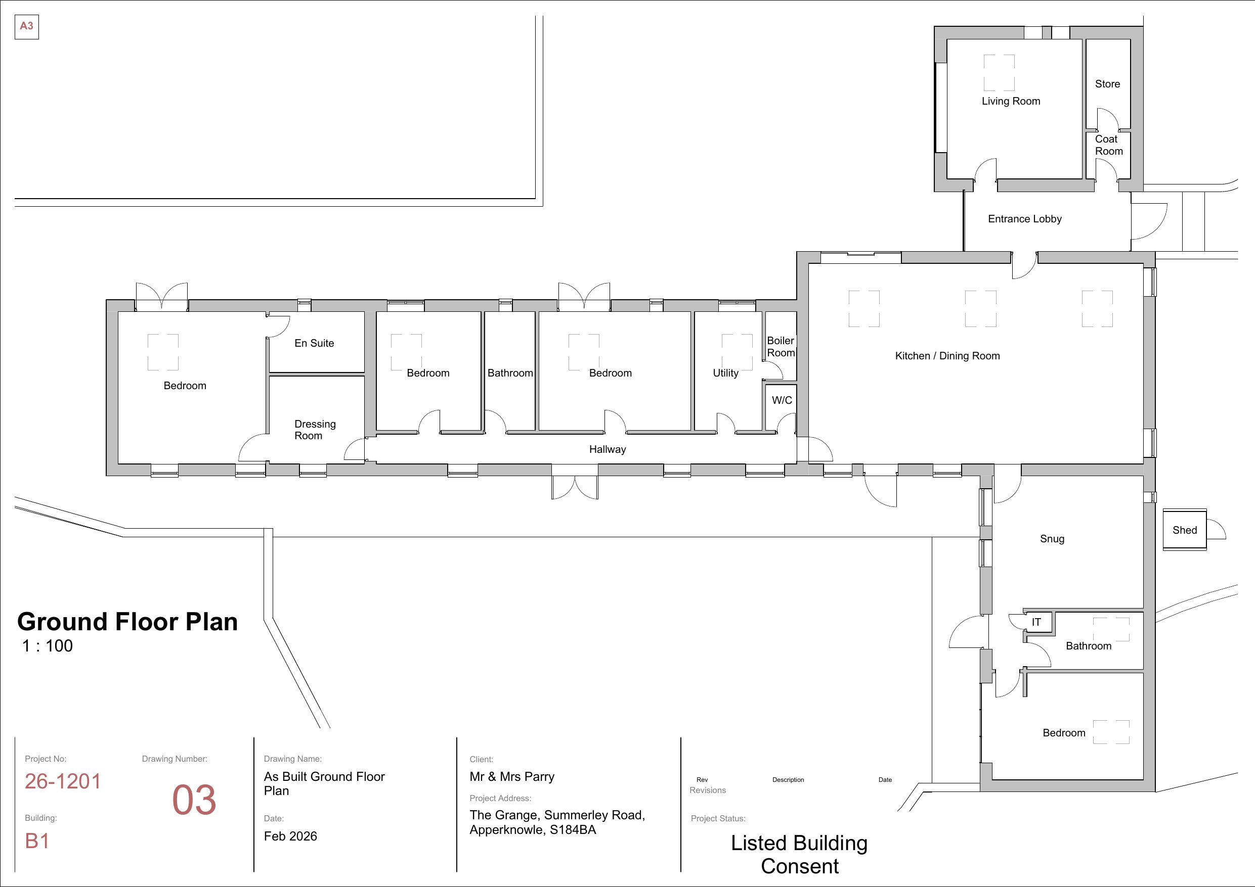
Conversion of barn into one dwelling to regularise scheme approved under 20/00635/FL (Conservation Area/Affecting Setting of a Listed Building) (Affecting Public Right of Way) (Private Drainage System)

Documents

Drawing
Archived · Original link
Supporting Document
Archived · Original link
Supporting Document
Archived · Original link
Drawing
Archived · Original link
Drawing
Archived · Original link

Have your say

Your comment matters. Councils must consider every representation that raises material planning considerations.

Write a comment