← North Kesteven District Council

Status

Unknown Change of use
Received
13 Feb 2025
New homes
0

Summary

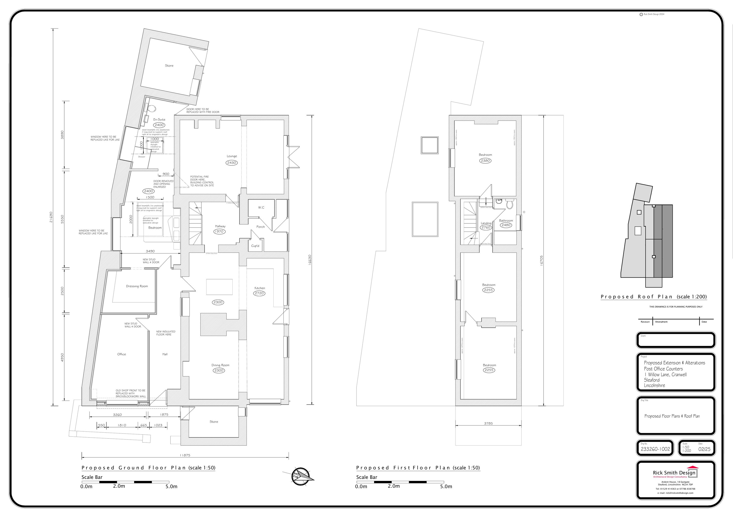
Convert former post office shop into part of existing dwelling at 1 Willow Lane.

Full proposal

Former post office shop space to be converted and become part of 1 Willow Lane (dwelling house)

Documents

Acknowledgement Letter
Acknowledgement Letter
Not yet archived · Original link
Application form - without personal data
Application Form No Personal Data PDF
Not yet archived · Original link
Consultee Consultation Letter
Consultee Consultation Letter
Not yet archived · Original link
Consultee Consultation Letter
Consultee Consultation Letter
Not yet archived · Original link
Consultee Consultation Letter
Consultee Consultation Letter
Not yet archived · Original link
Consultee Consultation Letter
Consultee Consultation Letter
Not yet archived · Original link
Consultee Consultation Letter
Consultee Consultation Letter
Not yet archived · Original link
Decision Notice
Decision Notice
Not yet archived · Original link
Report
Report
Not yet archived · Original link
Site Notice
Site Notice
Not yet archived · Original link

Have your say

Your comment matters. Councils must consider every representation that raises material planning considerations.

Write a comment