← North Kesteven District Council

Status

Registered House extension
Received
29 Jan 2026
New homes
0

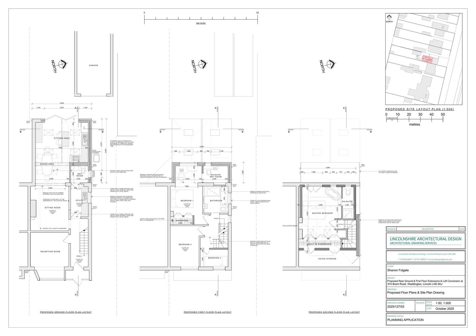
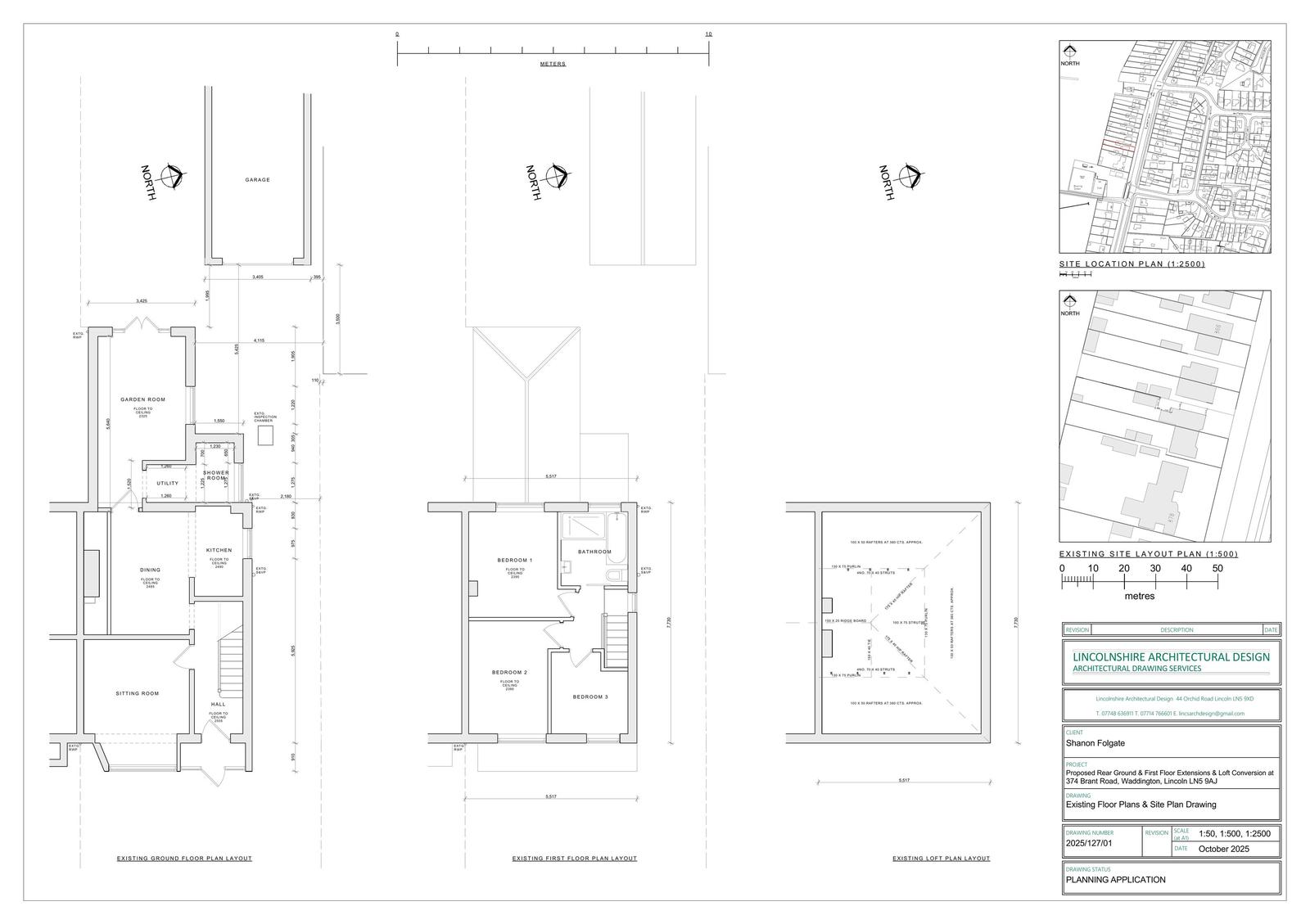
Full proposal

Erection of ground and first floor rear extension with loft conversion and dormer to rear

Documents

Submitted Plans
Archived · Original link
Submitted Plans
Archived · Original link

Have your say

Your comment matters. Councils must consider every representation that raises material planning considerations.

Write a comment