← North Kesteven District Council

Status

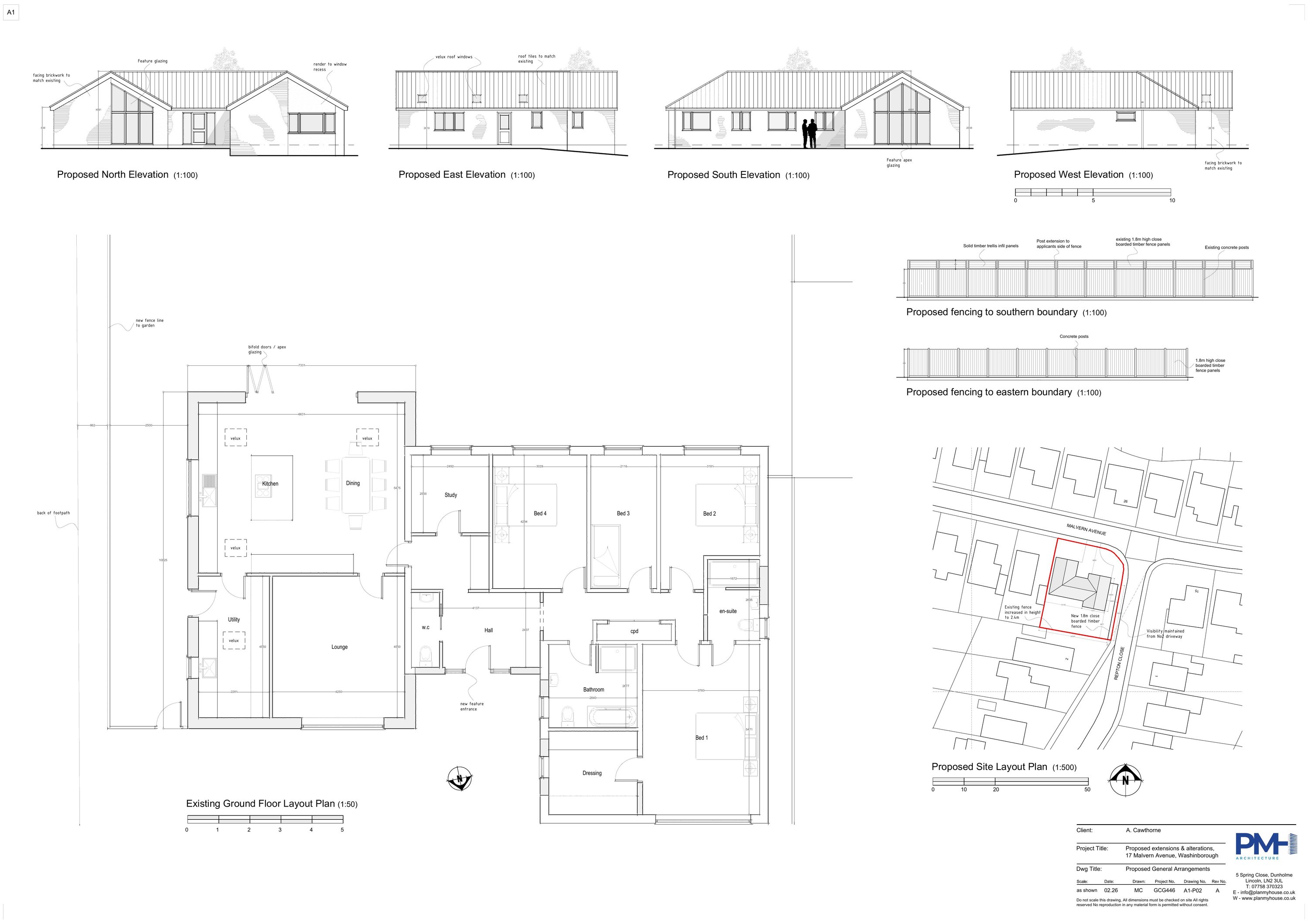
Registered House extension
Received
03 Feb 2026
New homes
0

Full proposal

Proposed side extension to east along with associated alterations and erection of 1.8m fencing to east and south boundaries

Documents

Acknowledgement Letter
Archived · Original link
Consultee Consultation Letter
Archived · Original link
Consultee Consultation Letter
Archived · Original link
Consultee Consultation Letter
Archived · Original link
Consultee Correspondence
Archived · Original link
Submitted Plans
Archived · Original link

Have your say

Your comment matters. Councils must consider every representation that raises material planning considerations.

Write a comment