← North Kesteven District Council

Status

Registered Change of use
Received
Last month
New homes
0

Full proposal

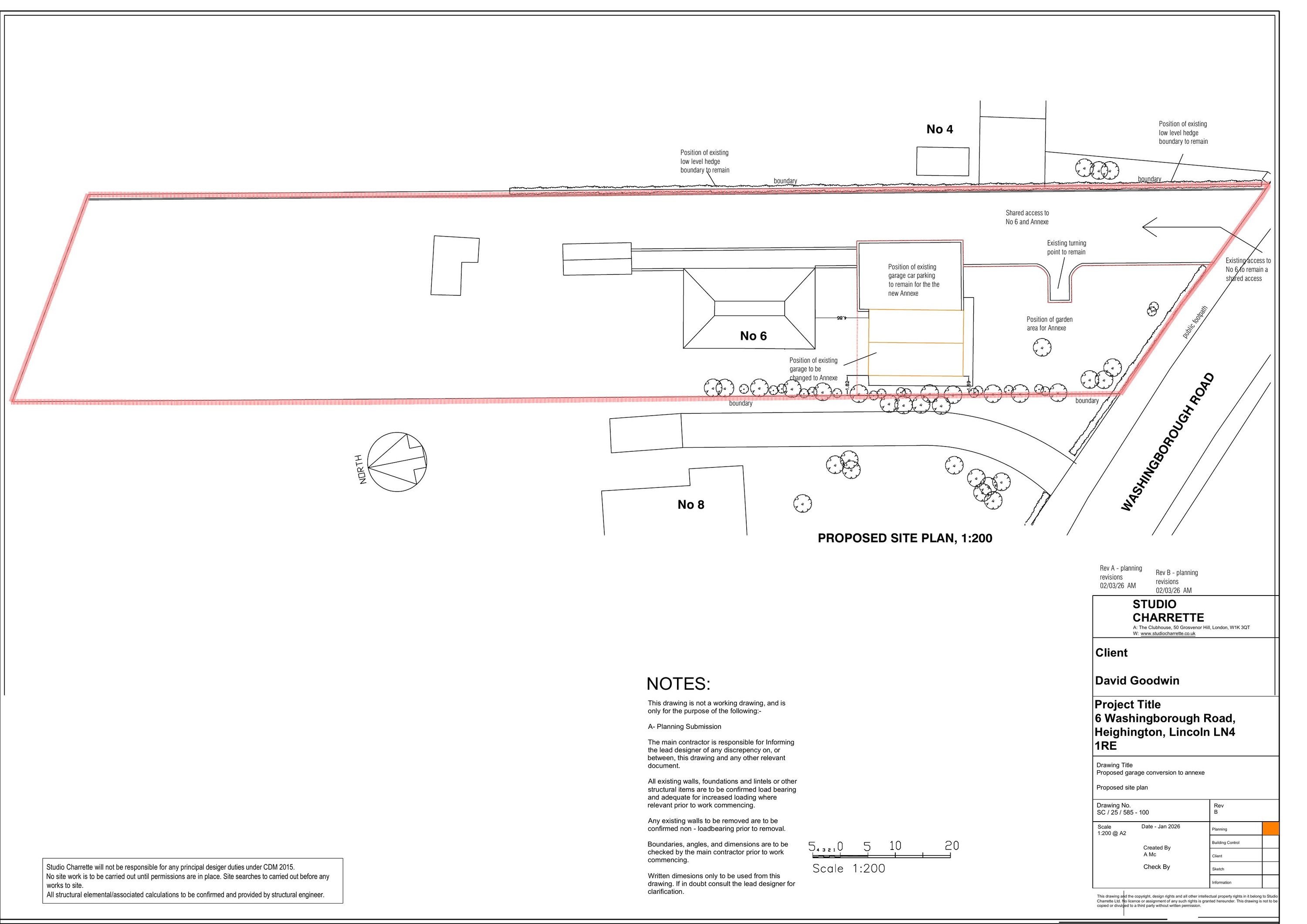
Conversion of detached double garage to annexe

Documents

Acknowledgement Letter
Archived · Original link
Supporting Documents
Archived · Original link
Consultee Consultation Letter
Archived · Original link
Consultee Consultation Letter
Archived · Original link
Consultee Consultation Letter
Archived · Original link
Consultee Correspondence
Archived · Original link
Additional Supporting Document
Archived · Original link
Submitted Plans
Archived · Original link
Submitted Plans
Archived · Original link

Have your say

Your comment matters. Councils must consider every representation that raises material planning considerations.

Write a comment