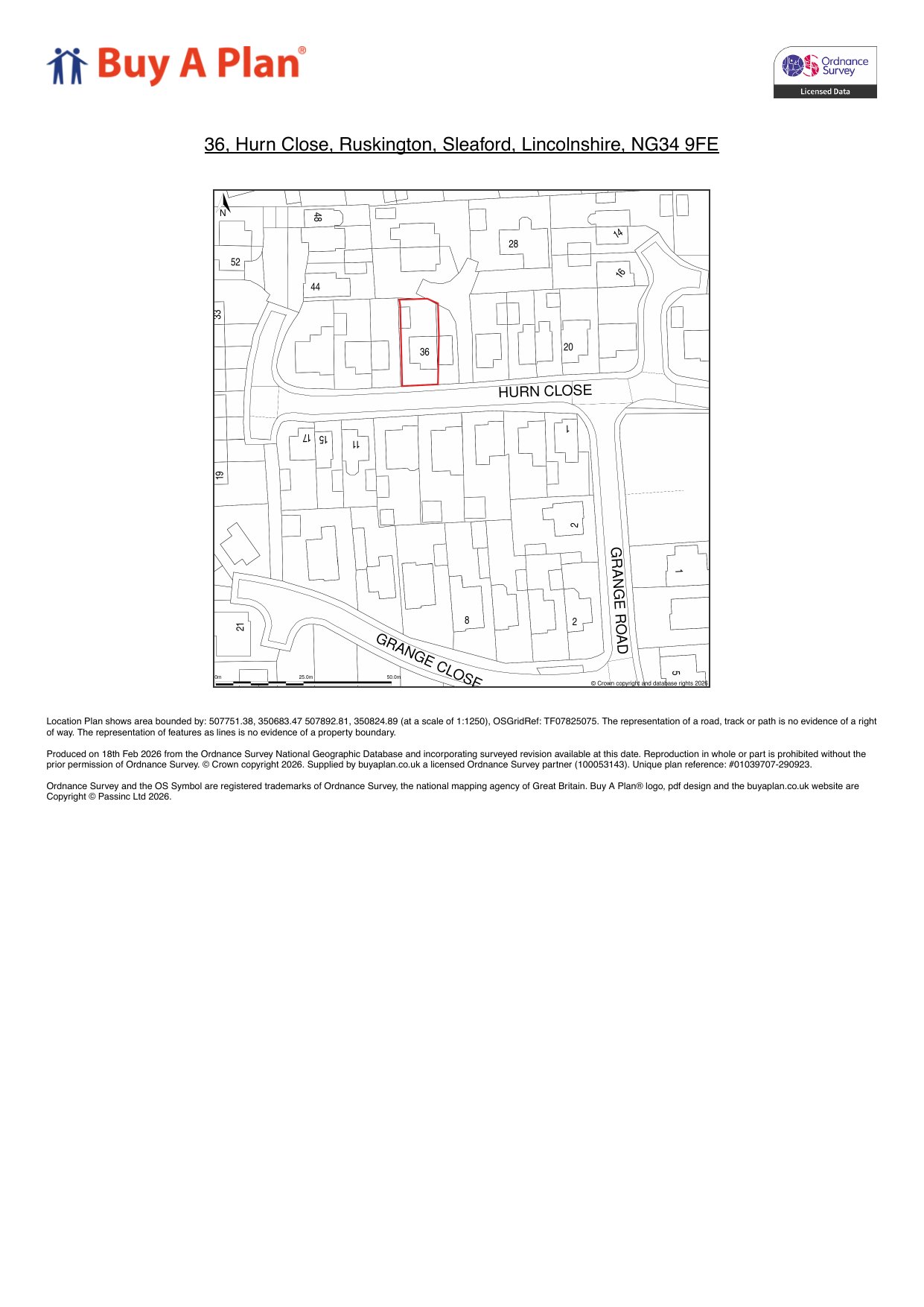
← North Kesteven District Council

Status

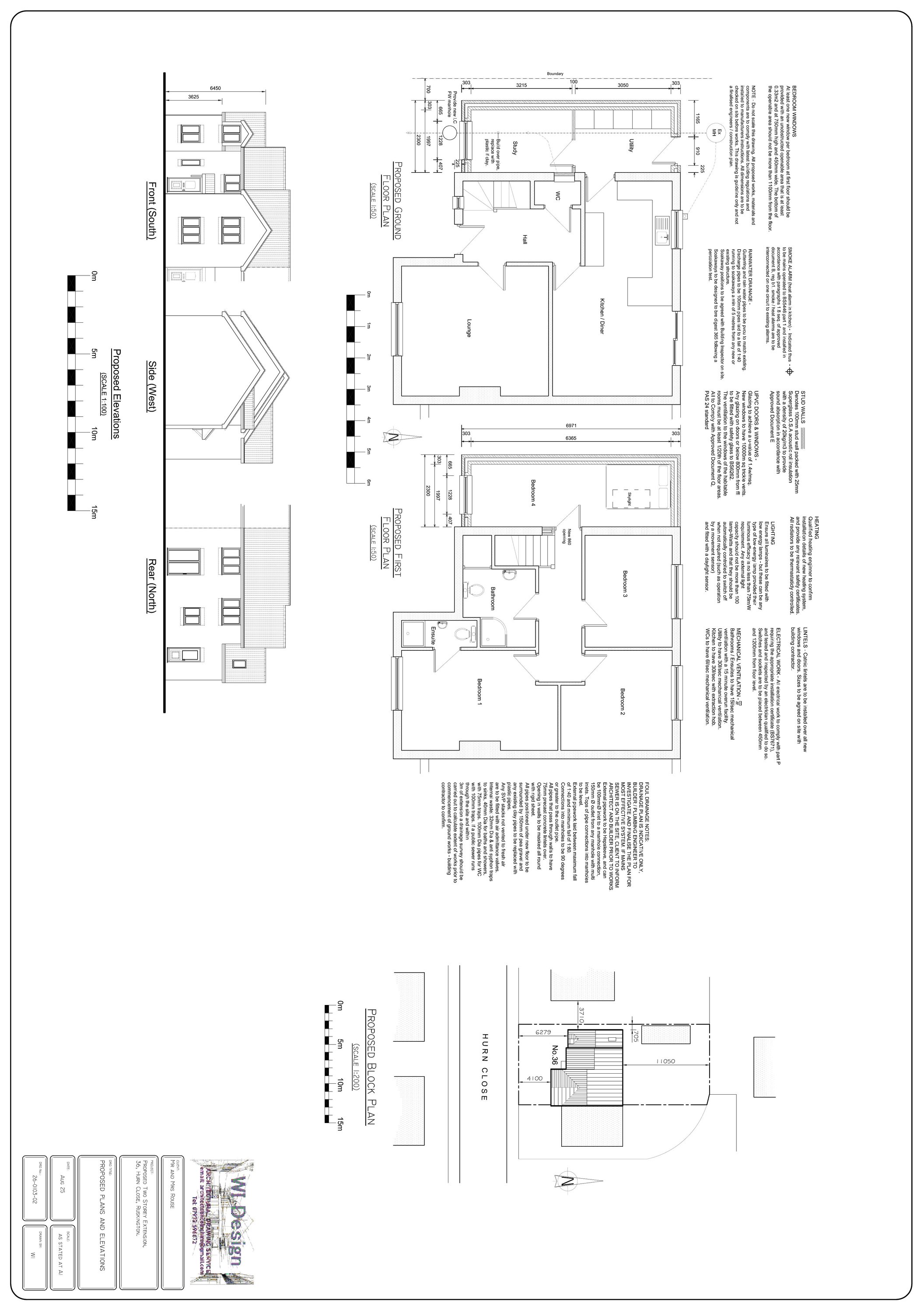
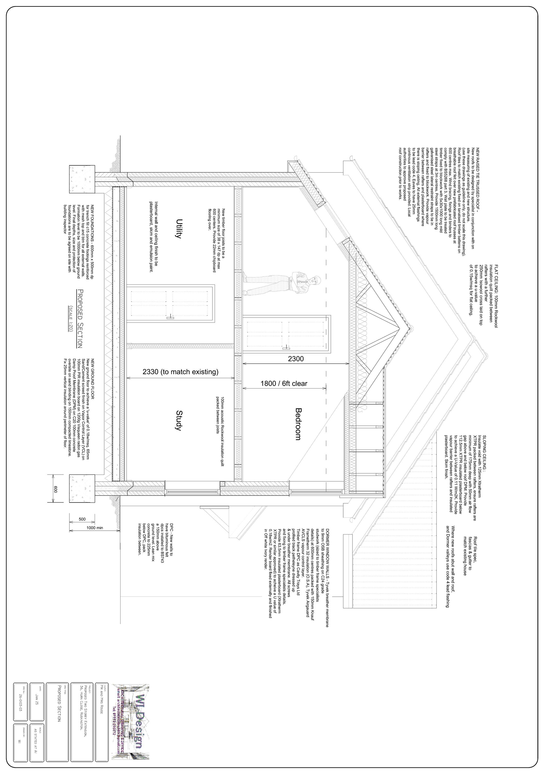
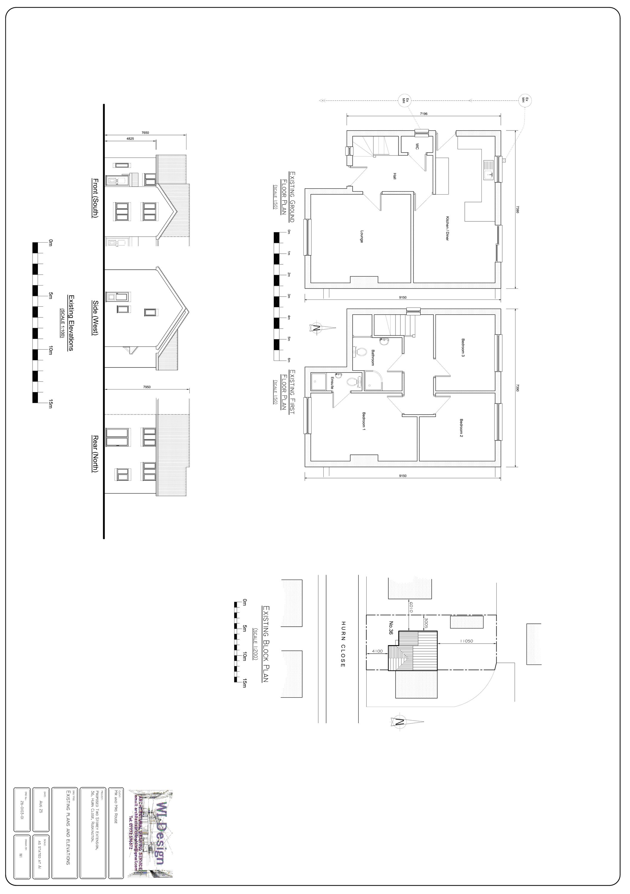
Registered House extension
Received
Last month
New homes
0

Full proposal

Erection of a two storey side extension

Documents

Acknowledgement Letter
Archived · Original link
Application Form
Archived · Original link
Consultee Consultation Letter
Archived · Original link
Consultee Consultation Letter
Archived · Original link
Consultee Consultation Letter
Archived · Original link
Consultee Correspondence
Archived · Original link
Submitted Plans
Archived · Original link
Submitted Plans
Archived · Original link
Site Notice
Archived · Original link
Supporting Documents
Archived · Original link

Have your say

Your comment matters. Councils must consider every representation that raises material planning considerations.

Write a comment