← North Kesteven District Council

Status

Registered House extension
Received
Last month
New homes
0

Full proposal

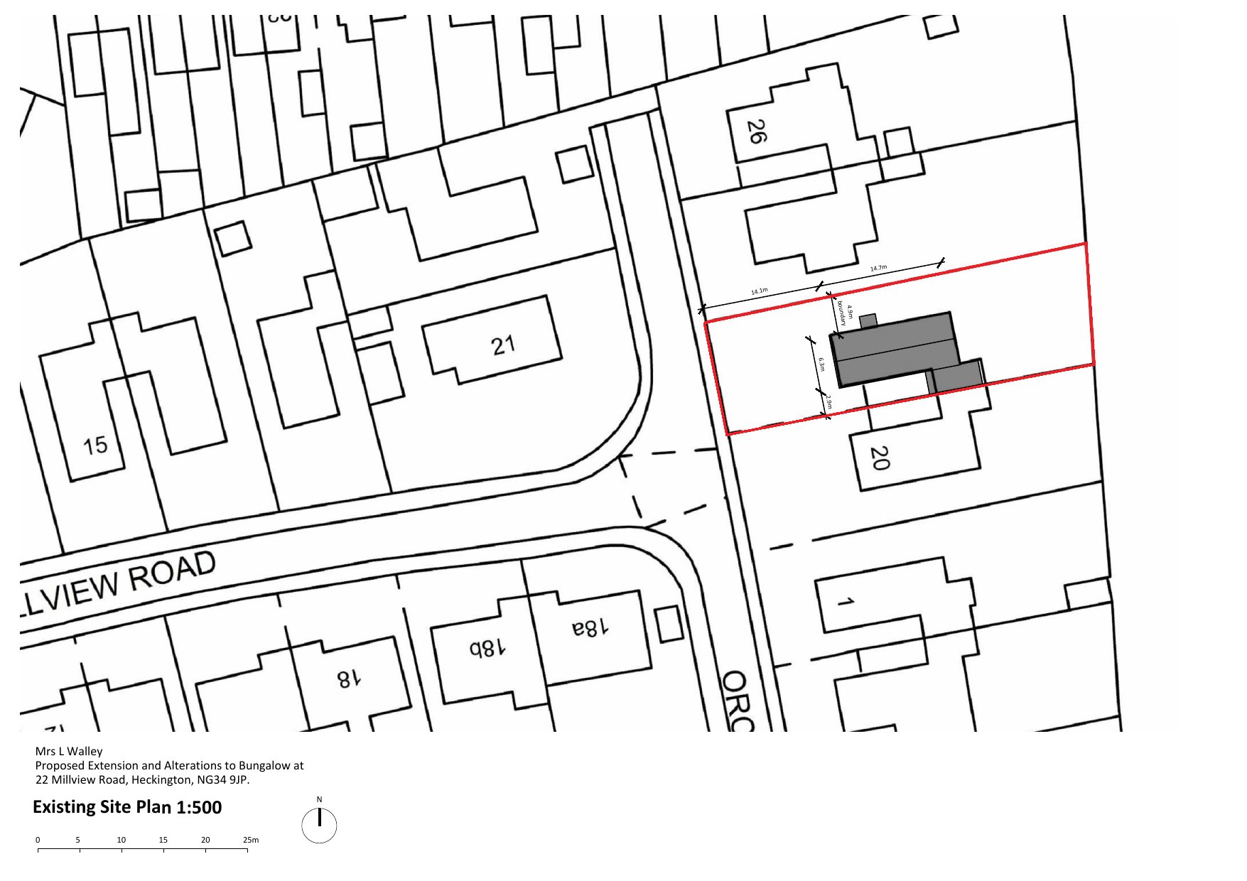
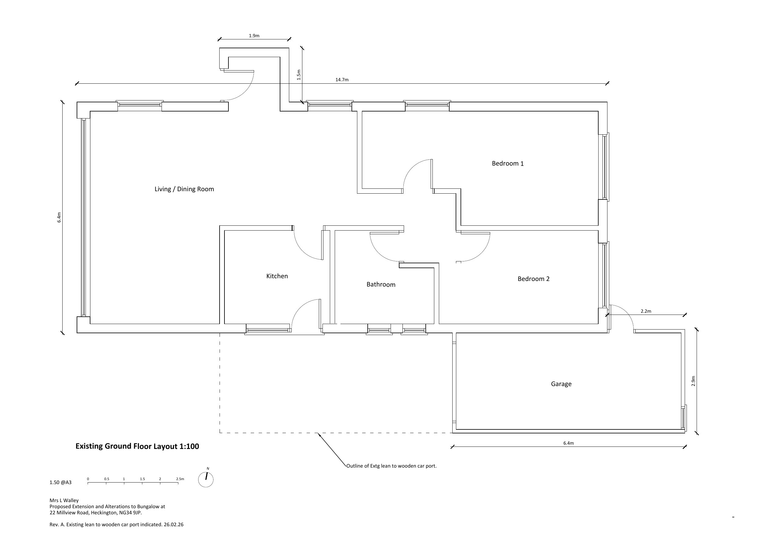
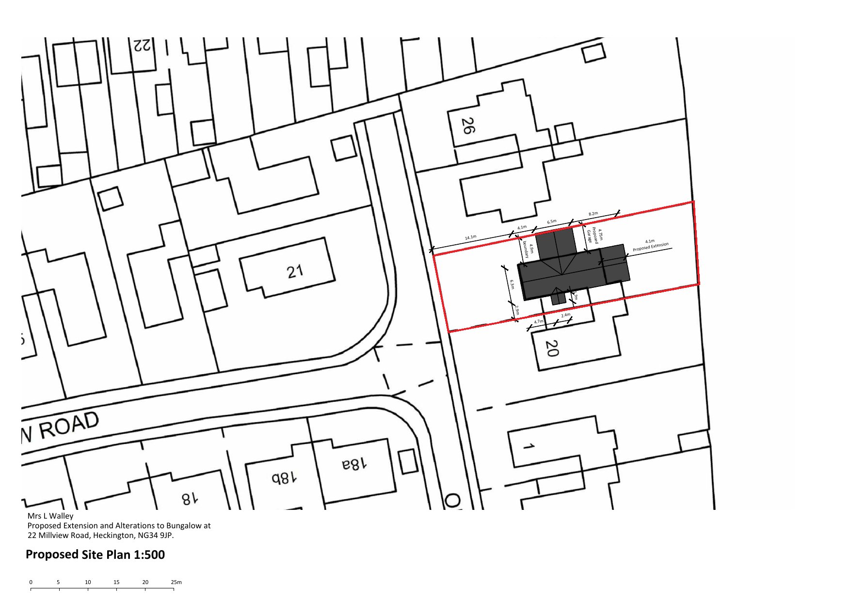
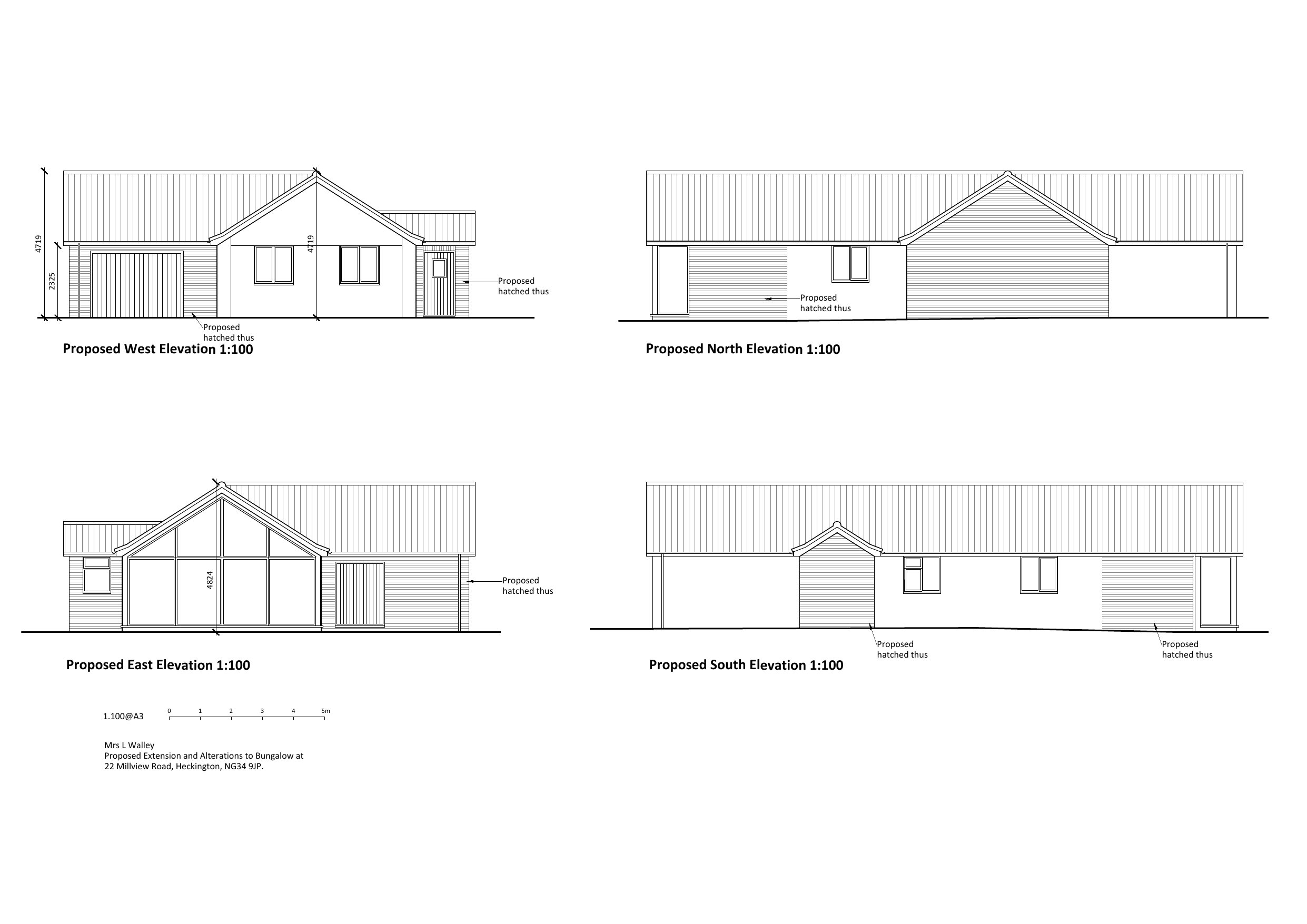
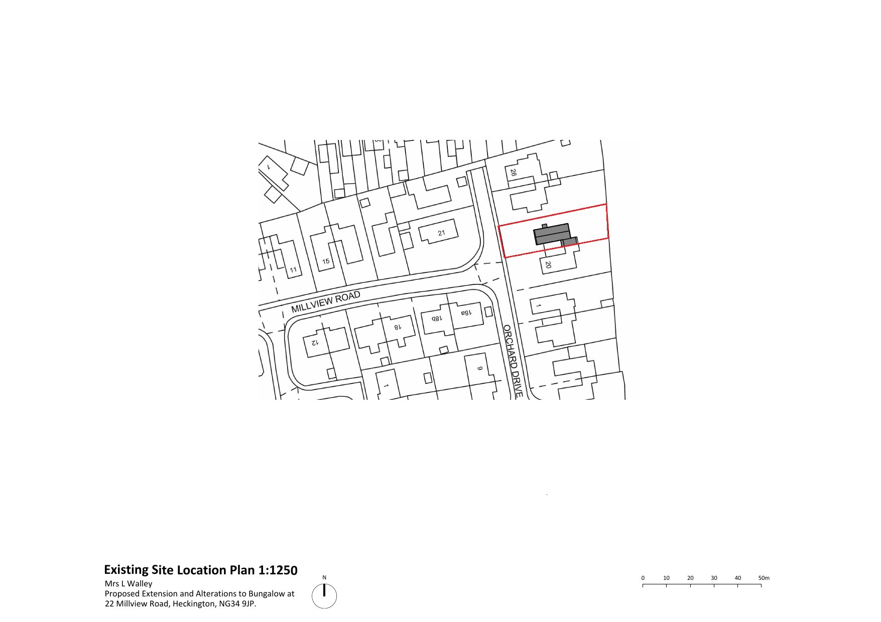
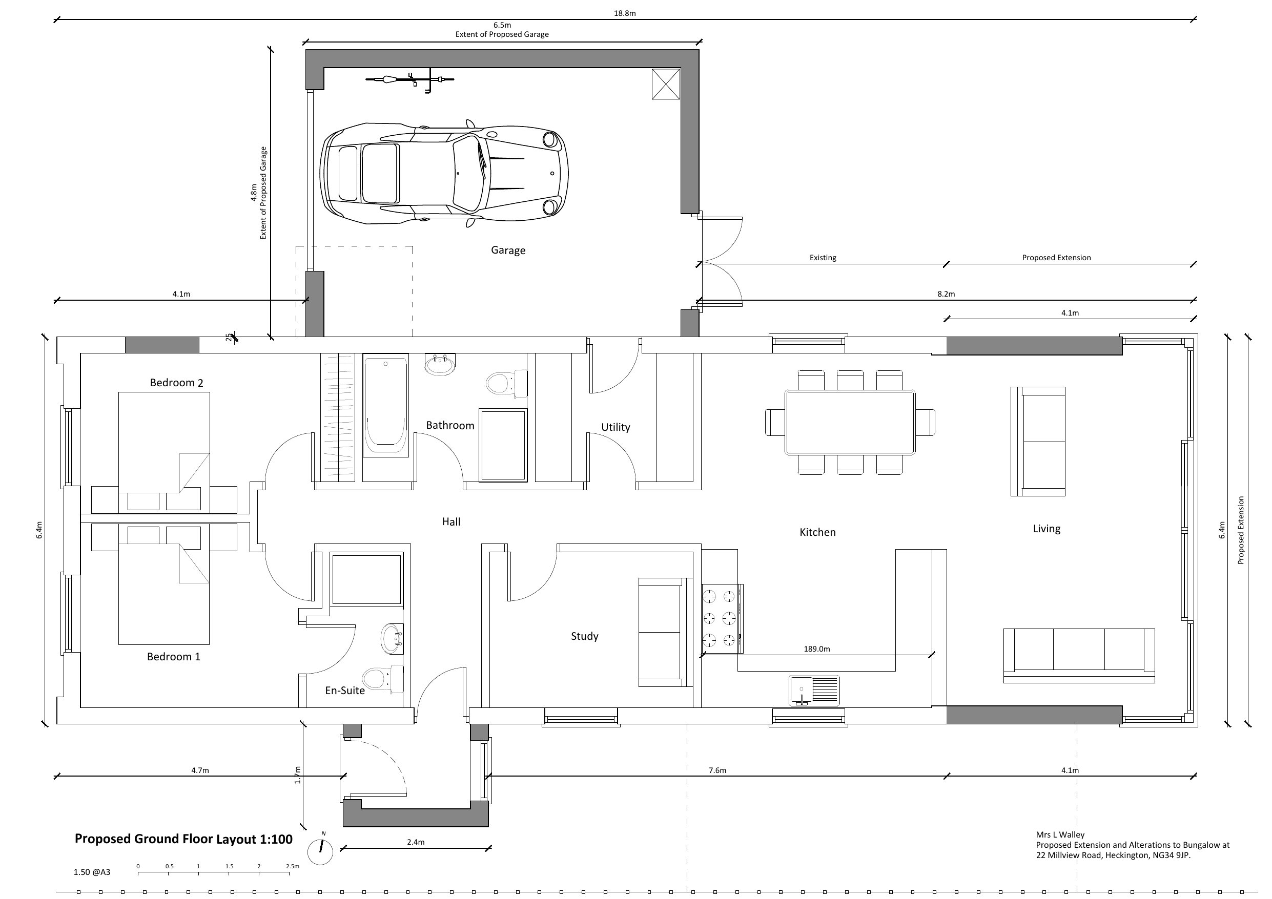
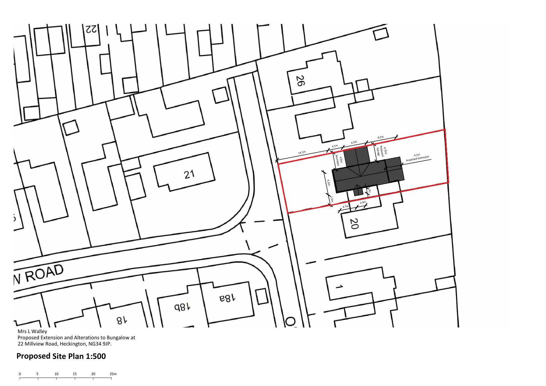
Demolition of existing garage, porch and lean to canopy. Erection of new entrance porch to south elevation, extension to east elevation and attached garage to north elevation along with internal alterations

Documents

Acknowledgement Letter
Archived · Original link
Consultee Consultation Letter
Archived · Original link
Consultee Consultation Letter
Archived · Original link
Consultee Consultation Letter
Archived · Original link
Consultee Correspondence
Archived · Original link
Submitted Plans
Archived · Original link
Submitted Plans
Archived · Original link
Submitted Plans
Archived · Original link
Submitted Plans
Archived · Original link
Submitted Plans
Archived · Original link
Submitted Plans
Archived · Original link
Submitted Plans
Archived · Original link
Submitted Plans
Archived · Original link
Submitted Plans
Archived · Original link
Site Notice
Archived · Original link

Have your say

Your comment matters. Councils must consider every representation that raises material planning considerations.

Write a comment