← North Kesteven District Council

Status

Registered Change of use
Received
Last month
New homes
6

Full proposal

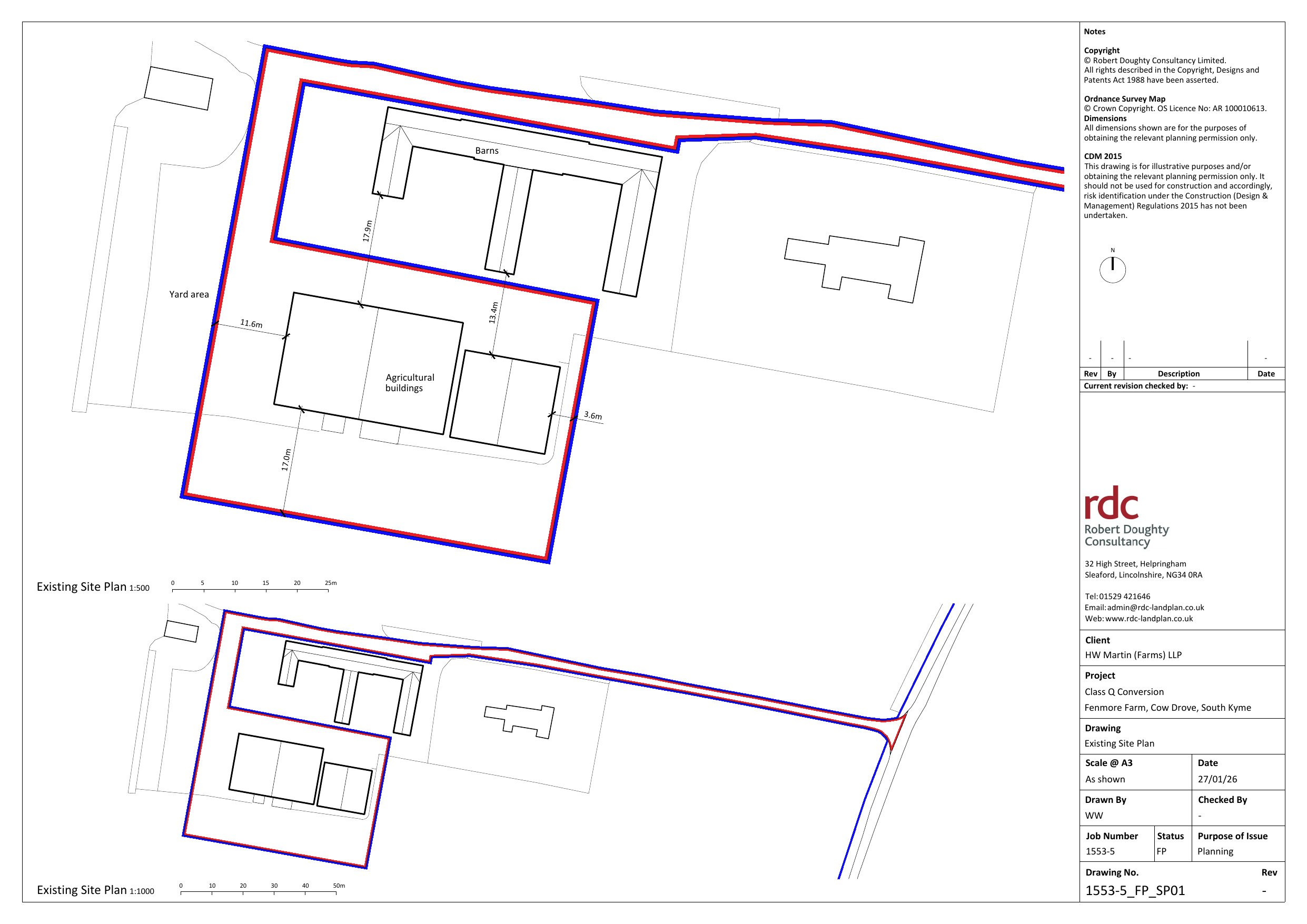
Application under Class Q of the Town and Country Planning (General Permitted Development) Order for prior approval for change of use from agricultural barns to 6no. dwelling (C3).

Documents

Submitted Plans
Archived · Original link
Submitted Plans
Archived · Original link
Submitted Plans
Archived · Original link
Submitted Plans
Archived · Original link
Submitted Plans
Archived · Original link
Submitted Plans
Archived · Original link
Submitted Plans
Archived · Original link
Submitted Plans
Archived · Original link

Have your say

Your comment matters. Councils must consider every representation that raises material planning considerations.

Write a comment