← North Norfolk District Council

Status

Pending Consideration Other
Received
Last month
New homes
0

Full proposal

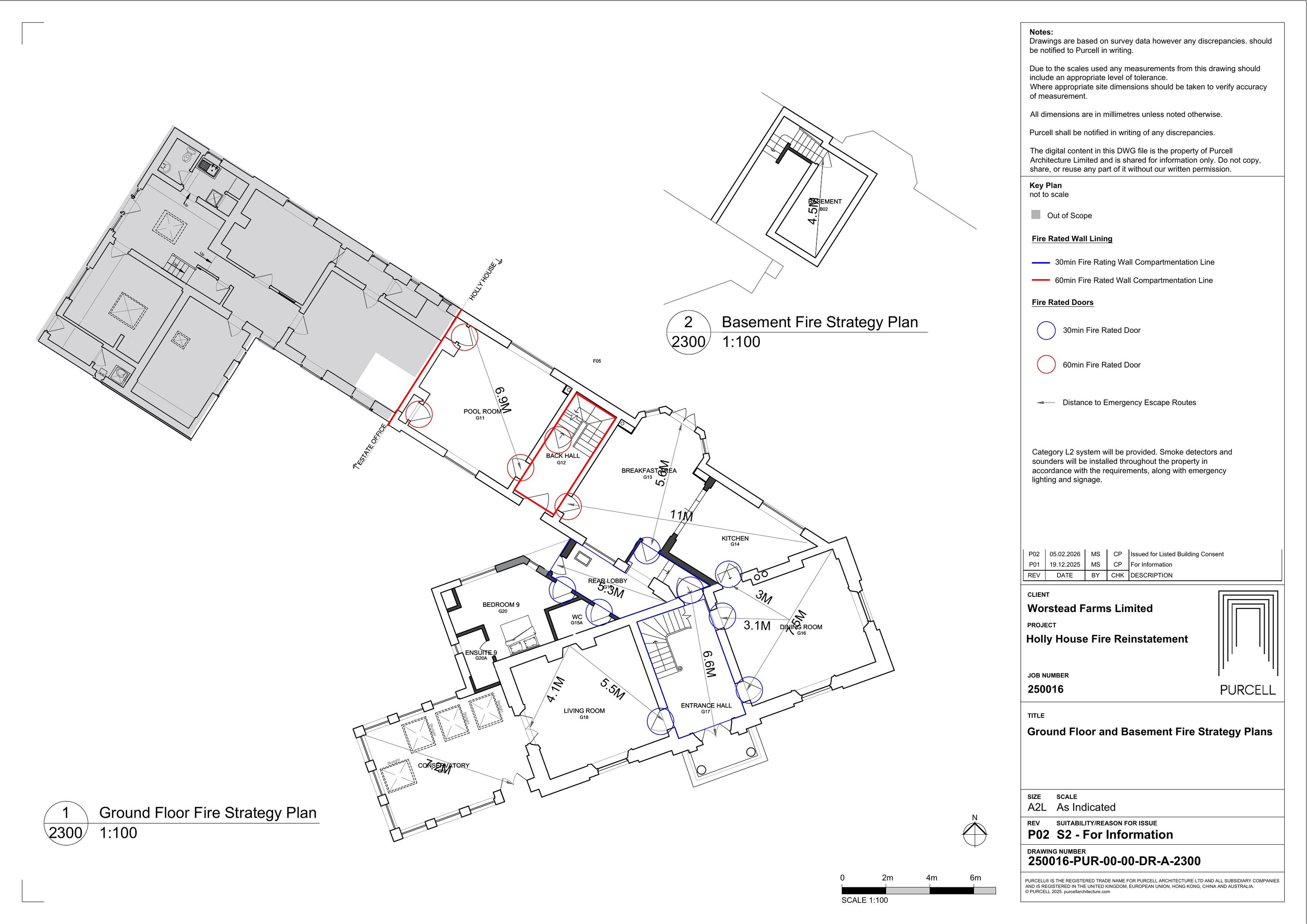
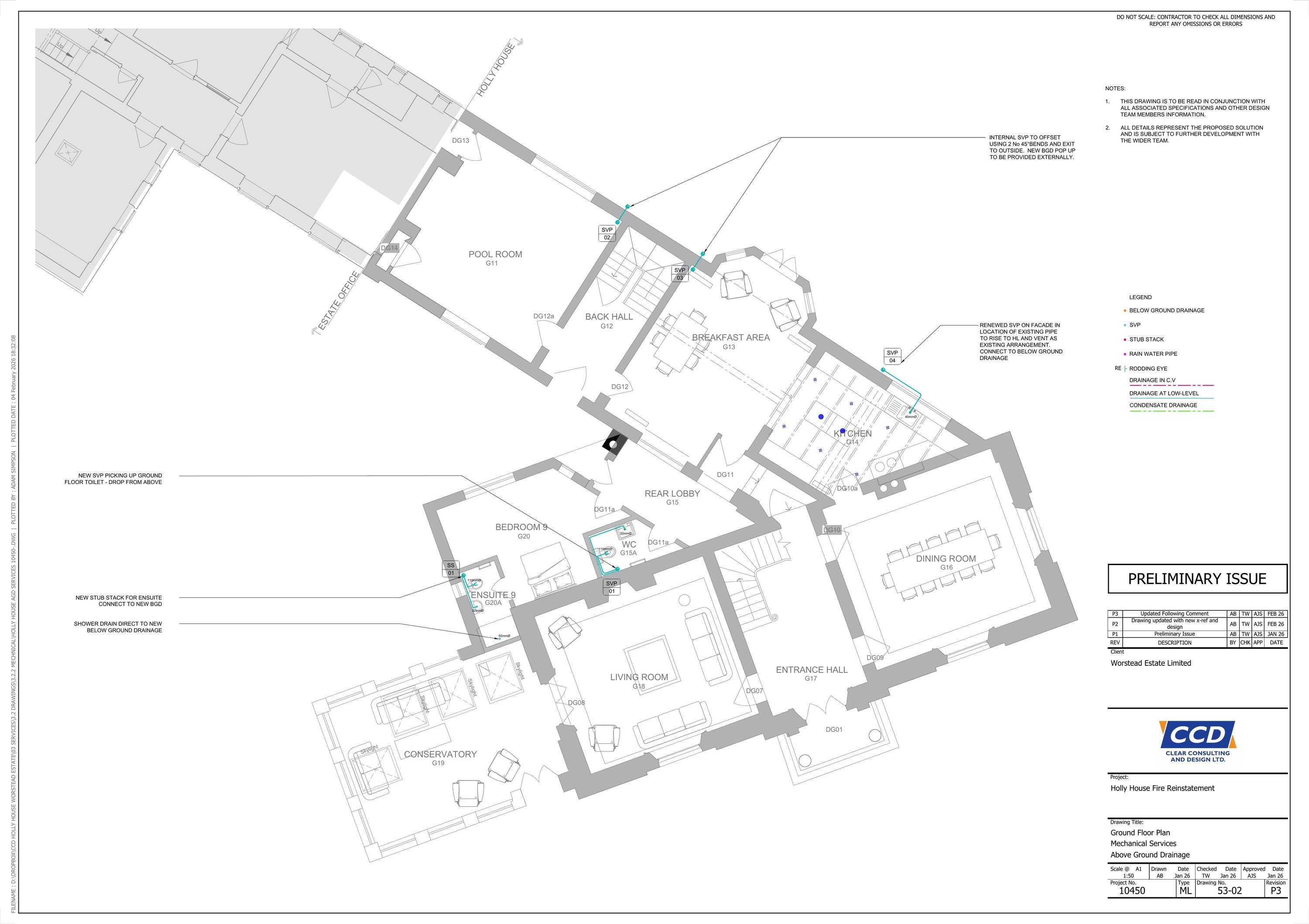
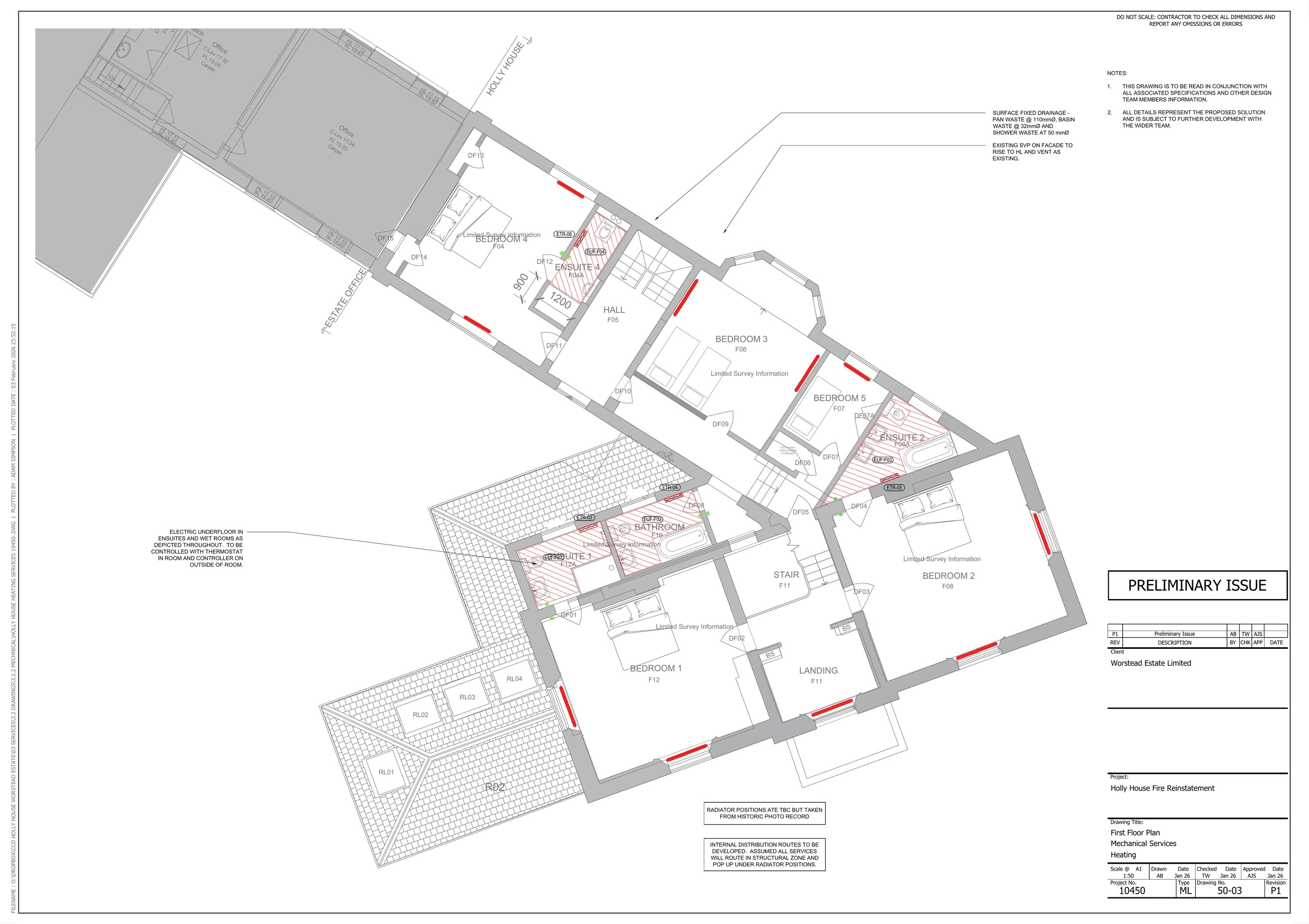
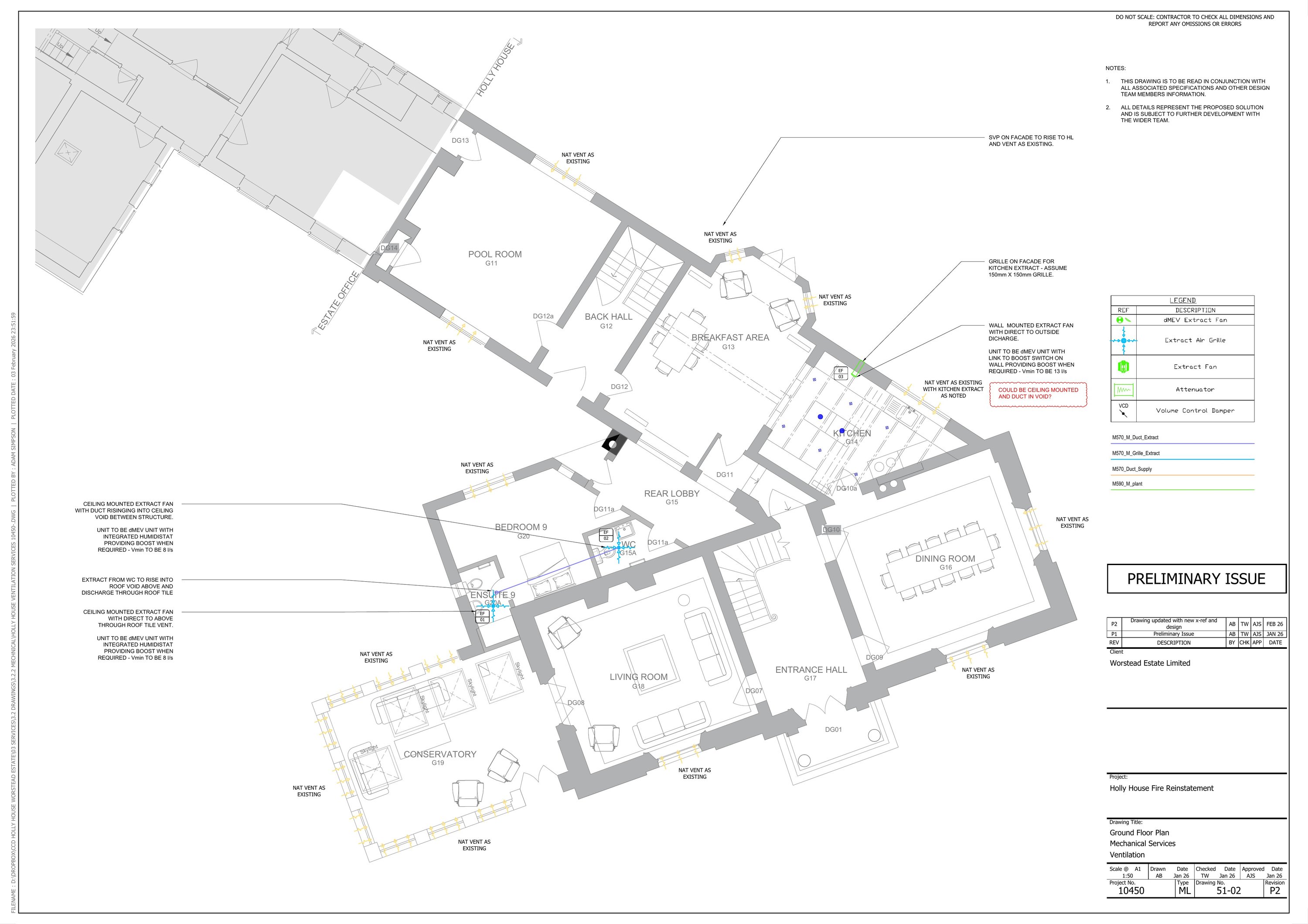
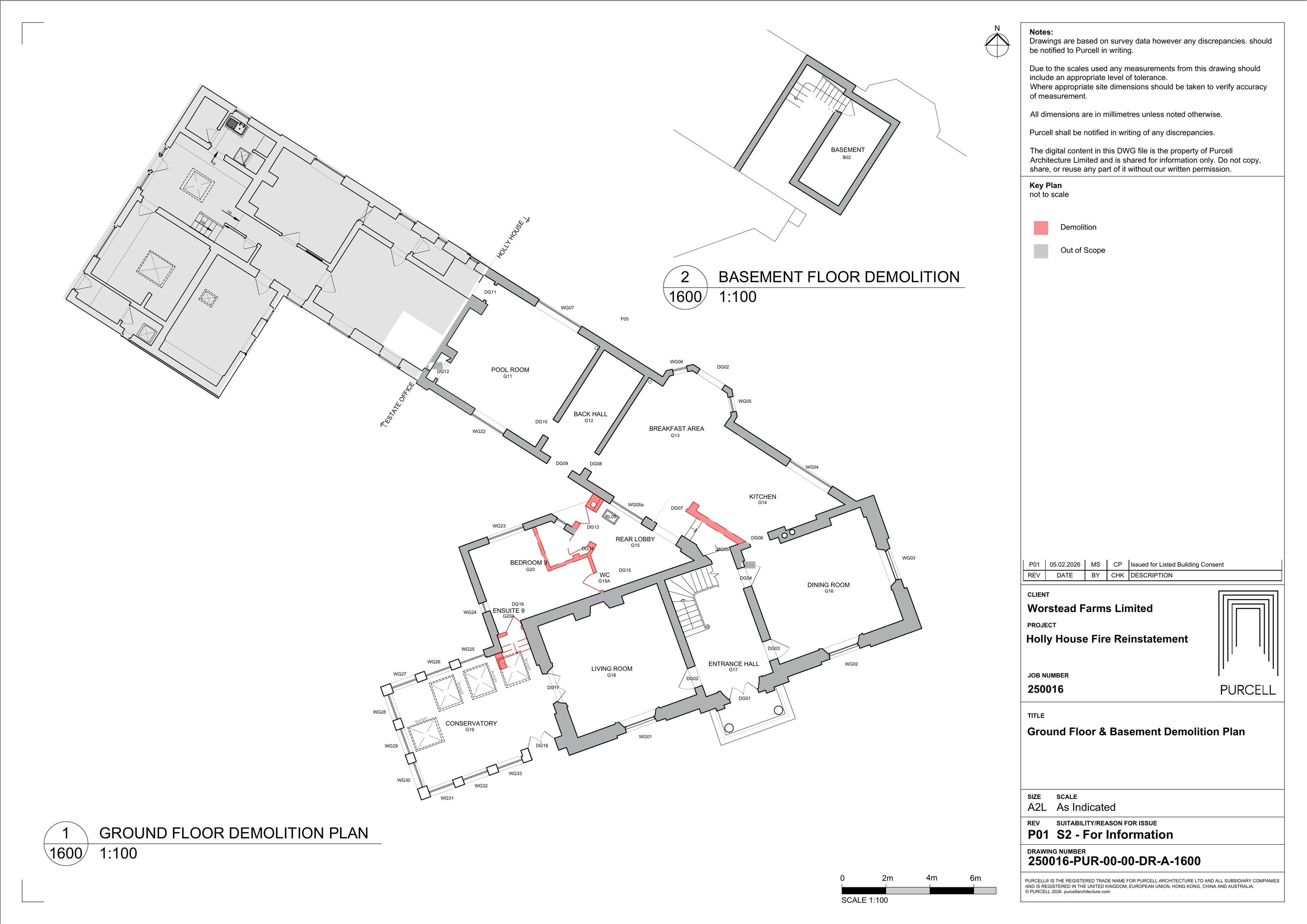
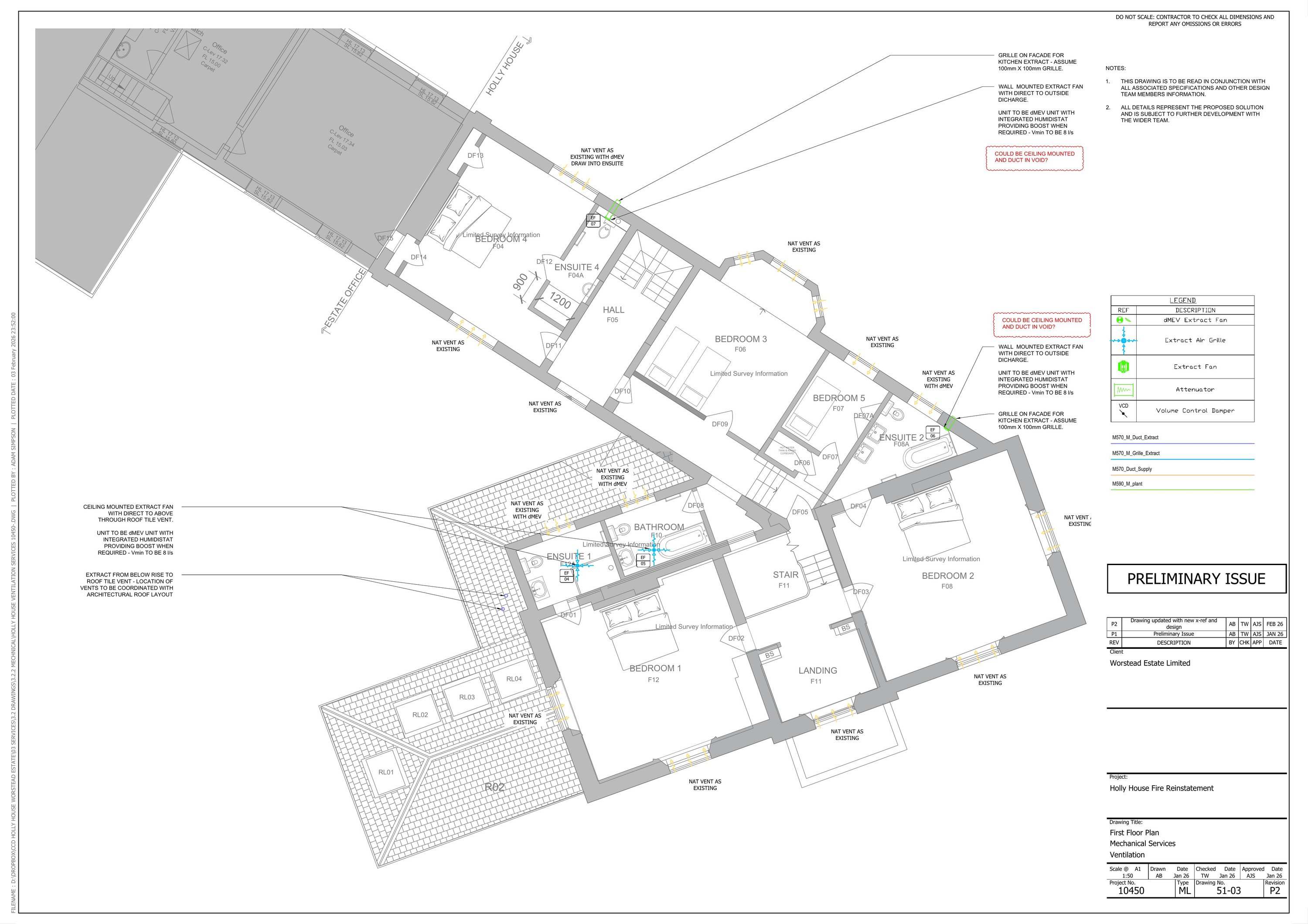
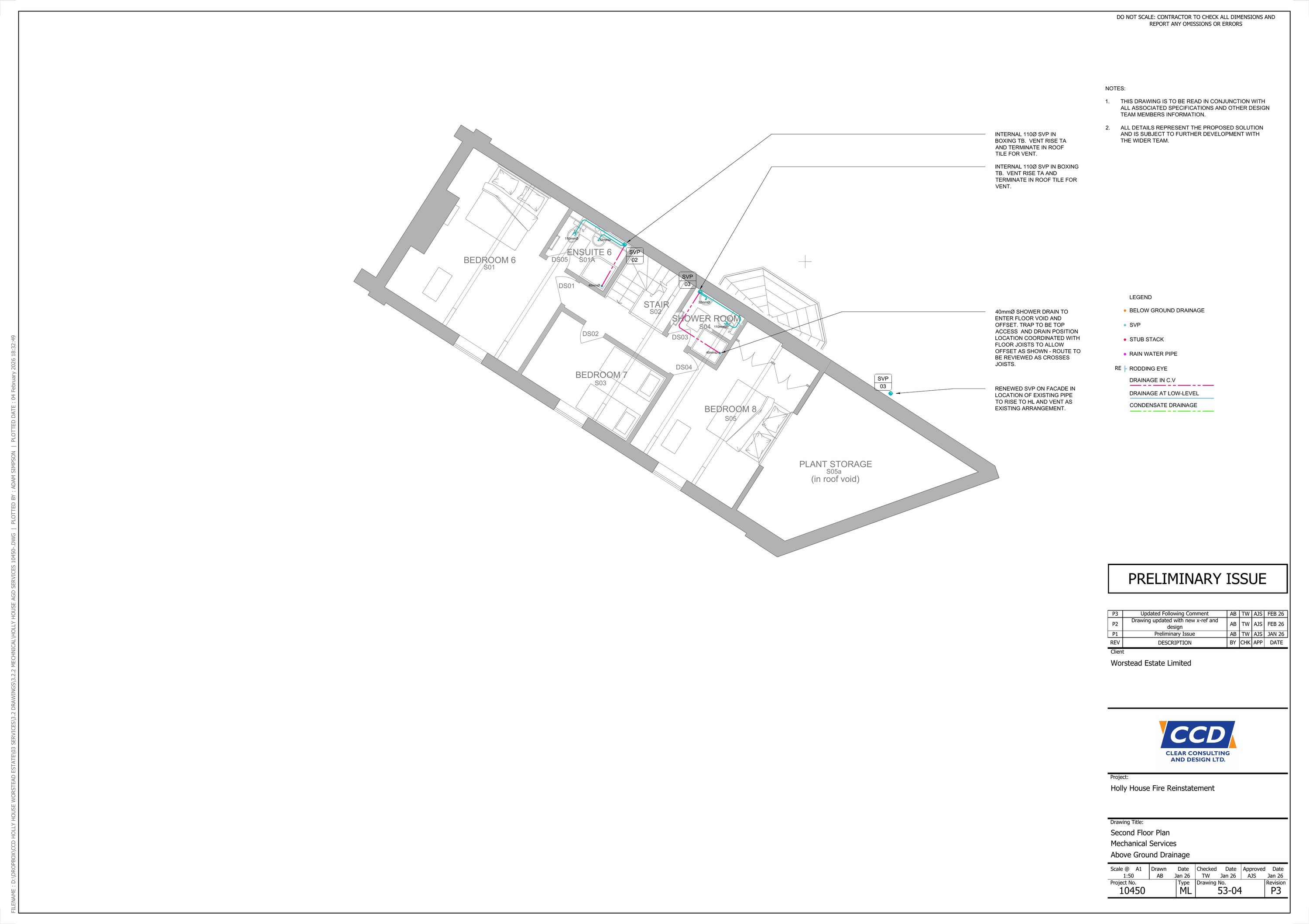
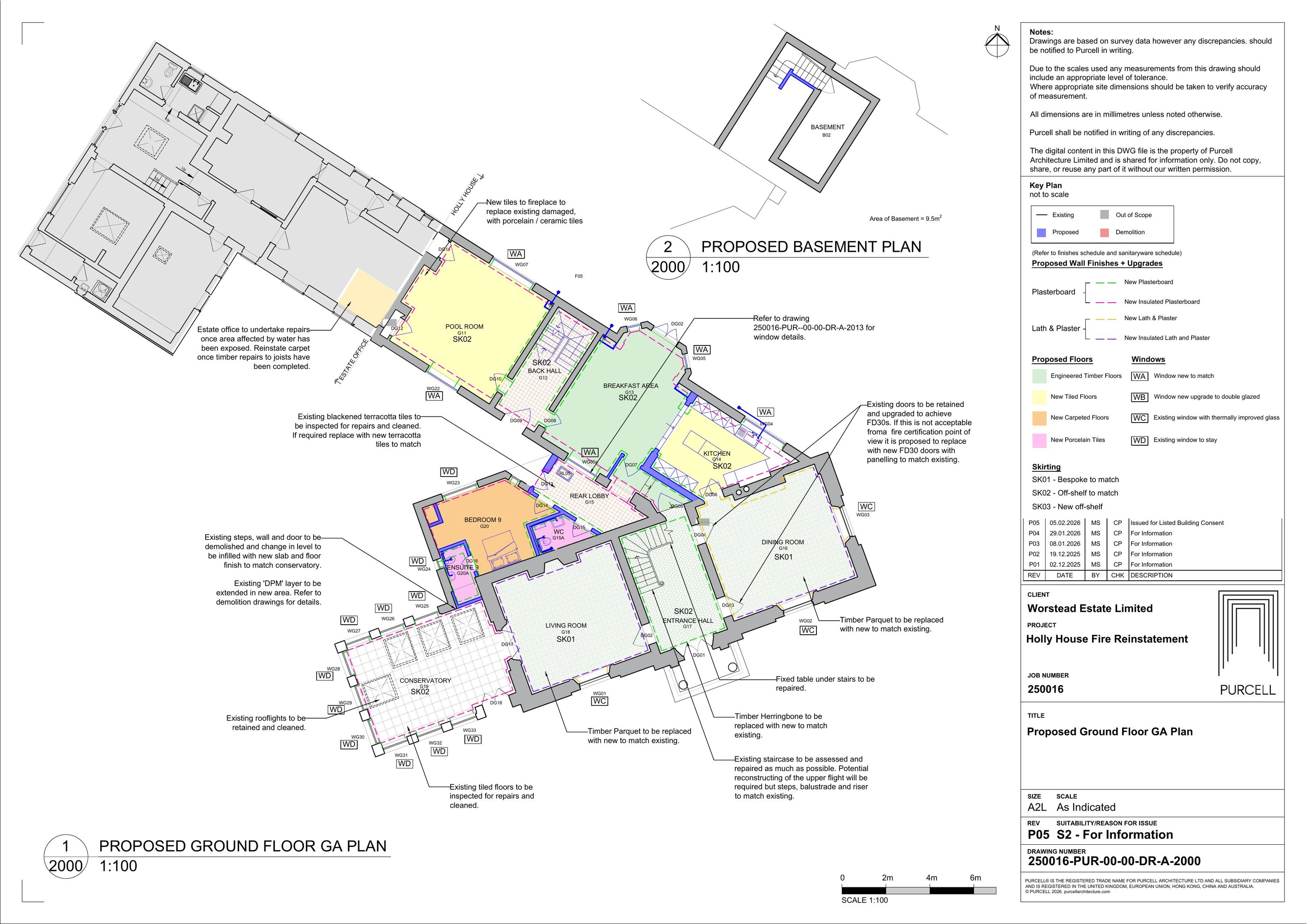
Internal and external works to facilitate the reconstruction of dwelling following a severe fire damage.

Documents

Application Form
Archived · Original link
Report / Statement
Archived · Original link
Report / Statement
Archived · Original link
Report / Statement
Archived · Original link
Supporting Document
Archived · Original link
Plan
Archived · Original link
Report / Statement
Archived · Original link
Report / Statement
Archived · Original link
Revised Plan
Archived · Original link
Superseded Document or Plan
Archived · Original link
Revised Plan
Archived · Original link
Superseded Document or Plan
Archived · Original link
Revised Plan
Archived · Original link
Superseded Document or Plan
Archived · Original link
Report / Statement
Archived · Original link
Supporting Document
Archived · Original link

Have your say

Your comment matters. Councils must consider every representation that raises material planning considerations.

Write a comment