← North Norfolk District Council

Status

Pending Consideration House extension
Received
15 Oct 2025
New homes
0

Full proposal

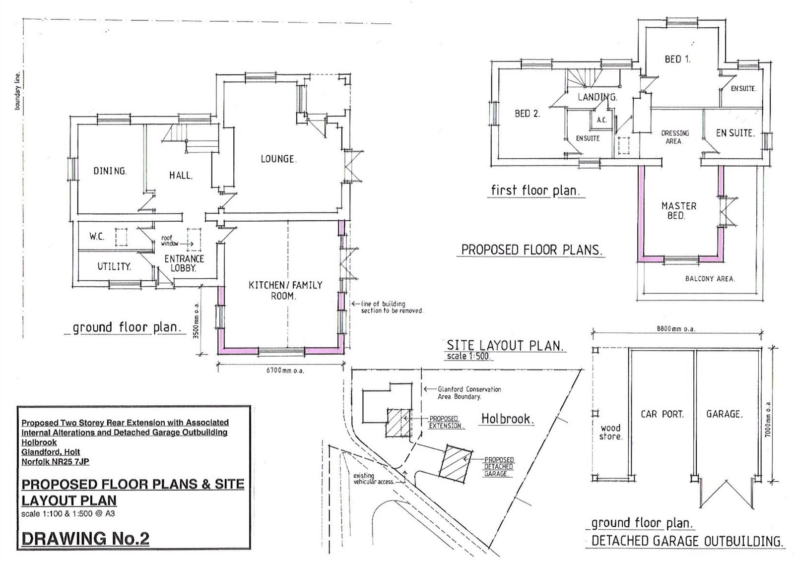
Two storey rear extension to dwelling. Detached double garage/carport

Documents

Ai declaration
Report / Statement
Not yet archived · Original link
Application form
Application Form
Not yet archived · Original link
Conservation & design
Consultee Comment
Not yet archived · Original link
Conservation design statement
Superseded Document or Plan
Not yet archived · Original link
Conservation design statement
Report / Statement
Not yet archived · Original link
Existing elevations
Plan
Not yet archived · Original link
Existing floor plans & location plan
Plan
Not yet archived · Original link
Proposed elevations
Plan
Not yet archived · Original link
Proposed garage elevations
Plan
Not yet archived · Original link

Have your say

Your comment matters. Councils must consider every representation that raises material planning considerations.

Write a comment