← North Norfolk District Council

Status

Pending Consideration Change of use
Received
17 Jun 2025
New homes
1

Full proposal

Change the use of barn to single dwelling (Class C3), associated external alterations

Documents

Adopted policies information
Report / Statement
Not yet archived · Original link
Ai declaration form
Other
Not yet archived · Original link
Application form
Application Form
Not yet archived · Original link
Arboricultural assessment quotation
Supporting Document
Not yet archived · Original link
Design and access statement - includes net zero statement
Report / Statement
Not yet archived · Original link
Environmental protection response
Consultee Comment
Not yet archived · Original link
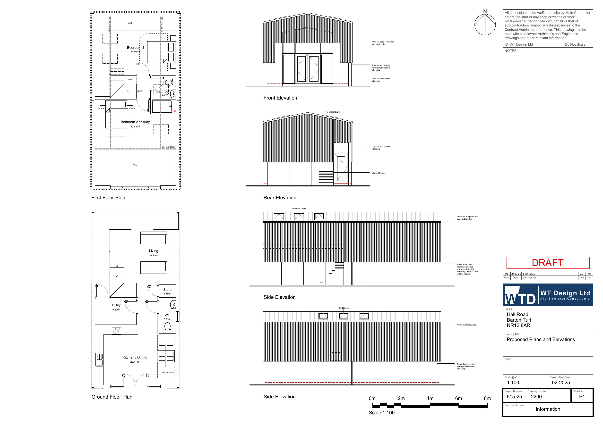
Existing plans and elevations
Plan
Not yet archived · Original link
Existing section a
Plan
Not yet archived · Original link
Existing section a
Plan
Not yet archived · Original link
Flood risk
Report / Statement
Not yet archived · Original link
Highways response
Consultee Comment
Not yet archived · Original link
Landscape response
Consultee Comment
Not yet archived · Original link
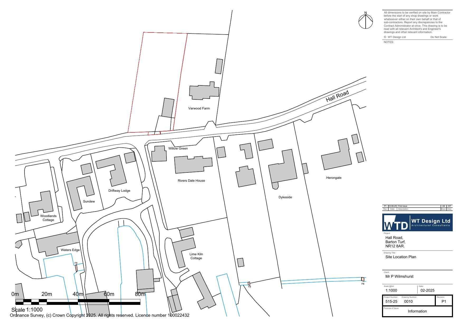
Location plan
Plan
Not yet archived · Original link
Model view 1
Plan
Not yet archived · Original link
Model view 2
Plan
Not yet archived · Original link
Objection - limekiln cottage hall road
Public Comment
Not yet archived · Original link
Objection - varwood farmhouse hall road
Public Comment
Not yet archived · Original link
Objection - willow green hall road
Public Comment
Not yet archived · Original link
Parish council response
Consultee Comment
Not yet archived · Original link
Planning statement
Report / Statement
Not yet archived · Original link
Pre-application advice - is2/22/0095
Supporting Document
Not yet archived · Original link
Preliminary bat roost & barn owl assessment
Report / Statement
Not yet archived · Original link
Retention of built fabric
Plan
Not yet archived · Original link
Site notice
Other
Not yet archived · Original link
Visualisation 1
Supporting Document
Not yet archived · Original link
Visualisation 2
Supporting Document
Not yet archived · Original link
Visualisation 3
Supporting Document
Not yet archived · Original link
Visualisation 4
Supporting Document
Not yet archived · Original link

Have your say

Your comment matters. Councils must consider every representation that raises material planning considerations.

Write a comment