← North Norfolk District Council

Status

Pending Consideration House extension
Received
05 Feb 2026
New homes
0

Full proposal

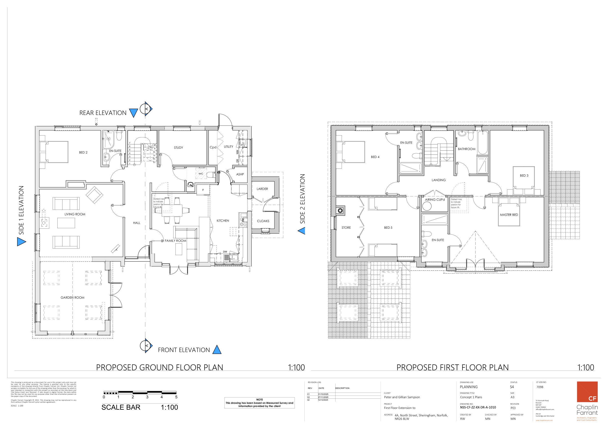
First floor extension to dwelling, porch to south elevation

Documents

Application form
Superseded Document or Plan
Not yet archived · Original link
Concept 1 elevations - east & south
Revised Plan
Not yet archived · Original link
Concept 1 elevations - west & north
Revised Plan
Not yet archived · Original link
Existing elevations
Superseded Document or Plan
Not yet archived · Original link
Existing elevations
Superseded Document or Plan
Not yet archived · Original link
Existing elevations
Revised Plan
Not yet archived · Original link
Existing ground floor plan
Plan
Not yet archived · Original link
Locaton plan
Plan
Not yet archived · Original link
Net zero form
Report / Statement
Not yet archived · Original link
Objection - 7 st nicholas place
Public Comment
Not yet archived · Original link
Objection - 9 st nicholas place
Public Comment
Not yet archived · Original link
Preliminary roost assessment
Report / Statement
Not yet archived · Original link
Preliminary roost assessment
Report / Statement
Not yet archived · Original link
Proposed elevations 01
Plan
Not yet archived · Original link
Proposed elevations 01
Superseded Document or Plan
Not yet archived · Original link
Proposed elevations 02
Superseded Document or Plan
Not yet archived · Original link
Proposed elevations 02
Plan
Not yet archived · Original link
Revised Plan
Archived · Original link
Plan
Archived · Original link
Revised Plan
Archived · Original link
Superseded Document or Plan
Archived · Original link
Revised application form
Application Form
Not yet archived · Original link
Town council response
Consultee Comment
Not yet archived · Original link
Use of ai declaration
Report / Statement
Not yet archived · Original link

Have your say

Your comment matters. Councils must consider every representation that raises material planning considerations.

Write a comment