← North Norfolk District Council
PF/26/0252
North Norfolk District Council
Status
Pending Consideration
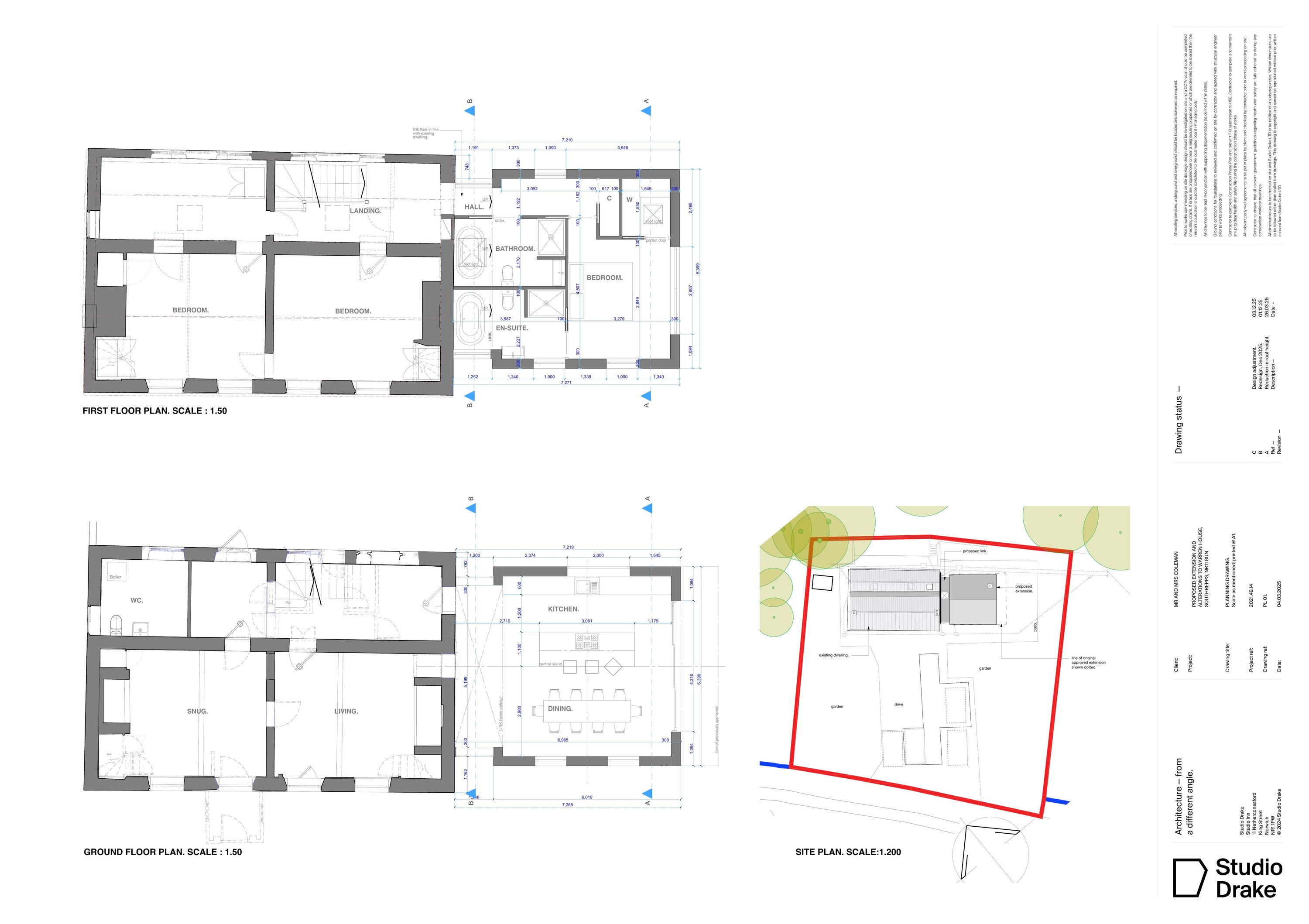
House extension
Received
05 Feb 2026
New homes
0
Full proposal
Erection of two-storey side extension
Documents
Have your say
Your comment matters. Councils must consider every representation that raises material planning considerations.