← North Norfolk District Council

Status

Pending Consideration House extension
Received
05 Feb 2026
New homes
0

Full proposal

External alterations to dwelling including some new/replacement windows, extension to detached garage (retrospective)

Documents

Application form
Application Form
Not yet archived · Original link
Design access & heritage statement
Superseded Document or Plan
Not yet archived · Original link
Design access and heritage statement
Superseded Document or Plan
Not yet archived · Original link
Design access and heritage statement
Report / Statement
Not yet archived · Original link
Existing elevations
Plan
Not yet archived · Original link
Existing garage
Plan
Not yet archived · Original link
Existing plans
Plan
Not yet archived · Original link
Superseded Document or Plan
Archived · Original link
Location plan
Superseded Document or Plan
Not yet archived · Original link
Location plan
Plan
Not yet archived · Original link
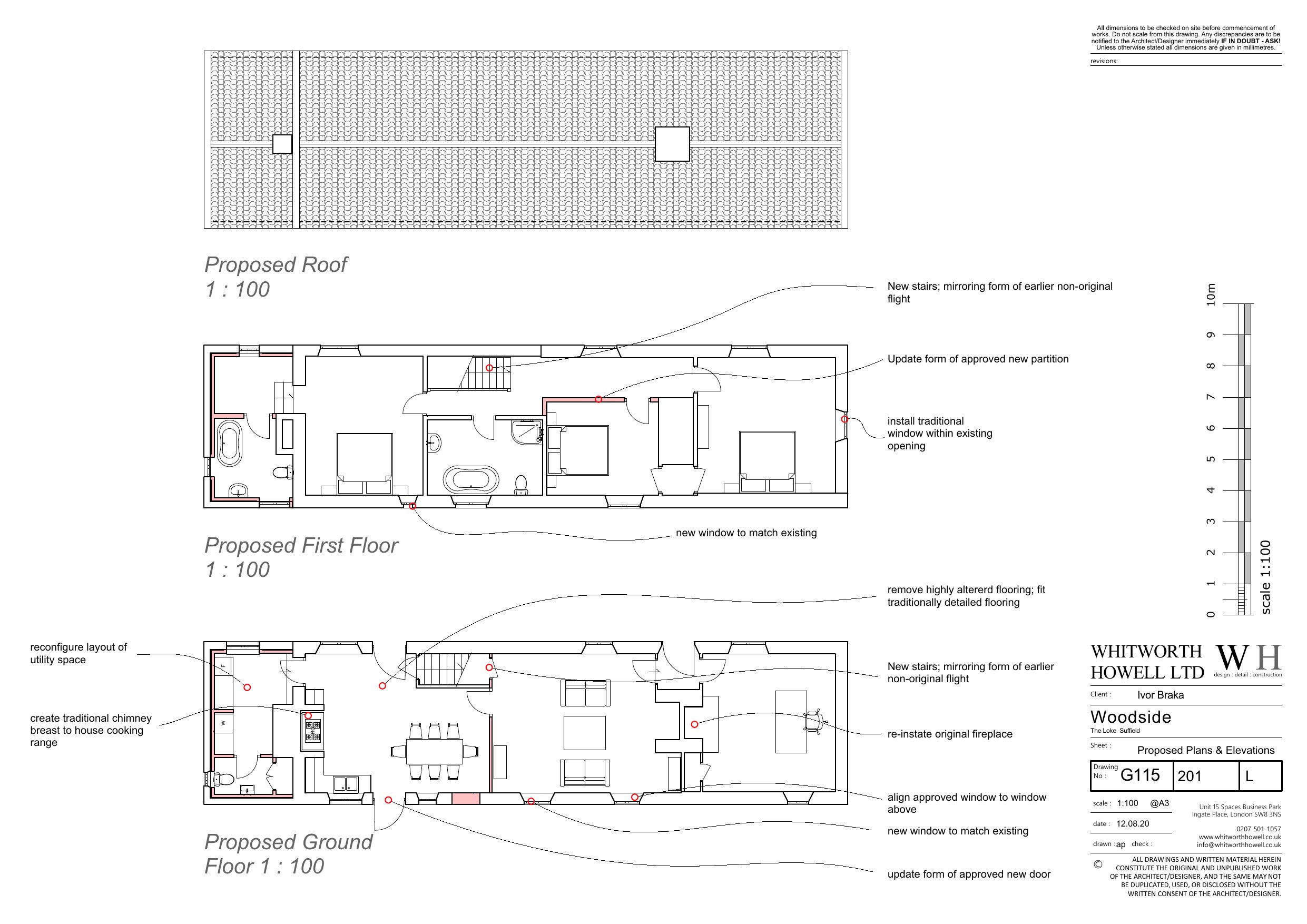
Proposed elevations
Plan
Not yet archived · Original link
Proposed garage
Plan
Not yet archived · Original link
Plan
Archived · Original link
Superseded Document or Plan
Archived · Original link

Have your say

Your comment matters. Councils must consider every representation that raises material planning considerations.

Write a comment