← North Norfolk District Council

Status

Pending Consideration Change of use
Received
Last month
New homes
1

Full proposal

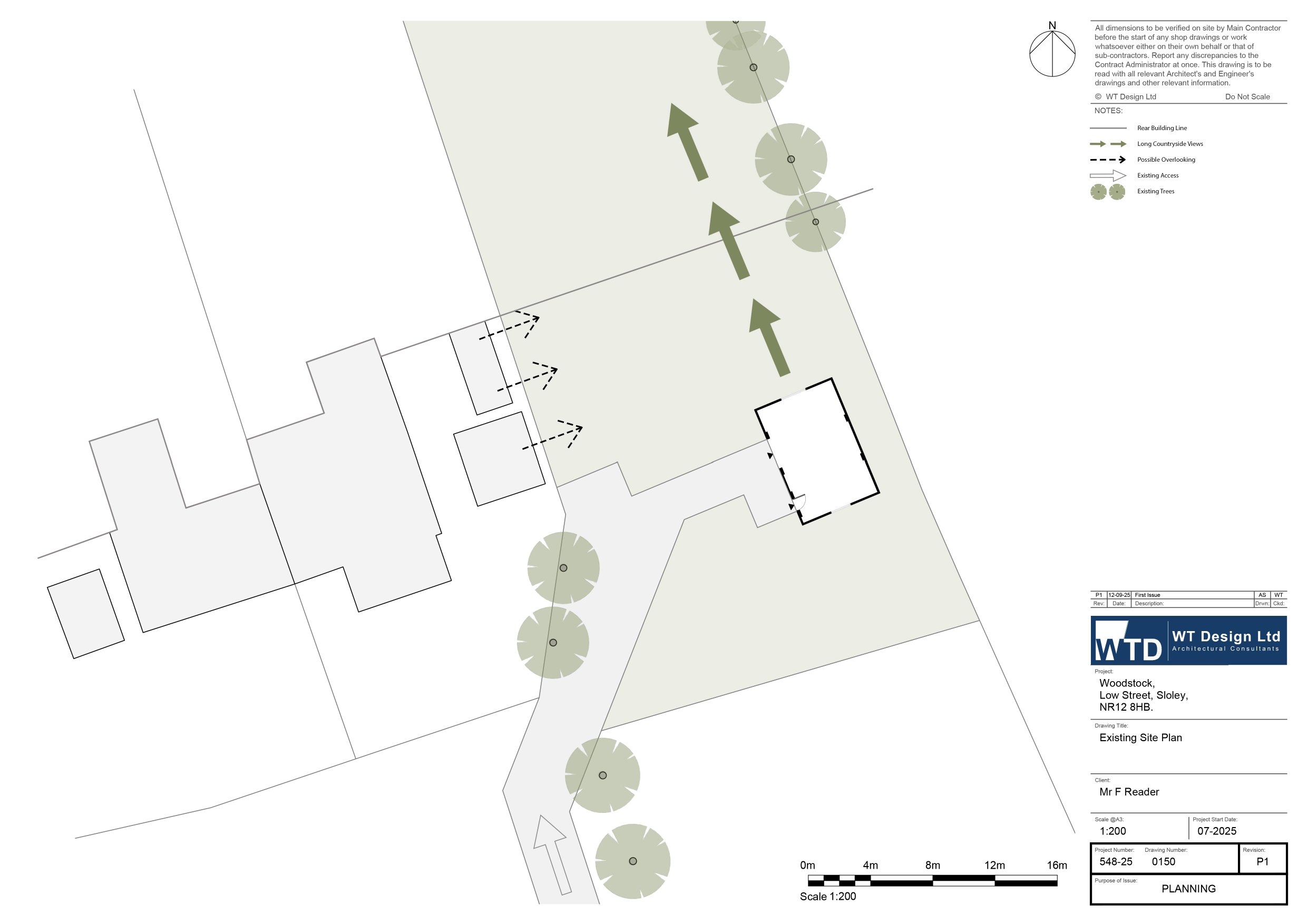
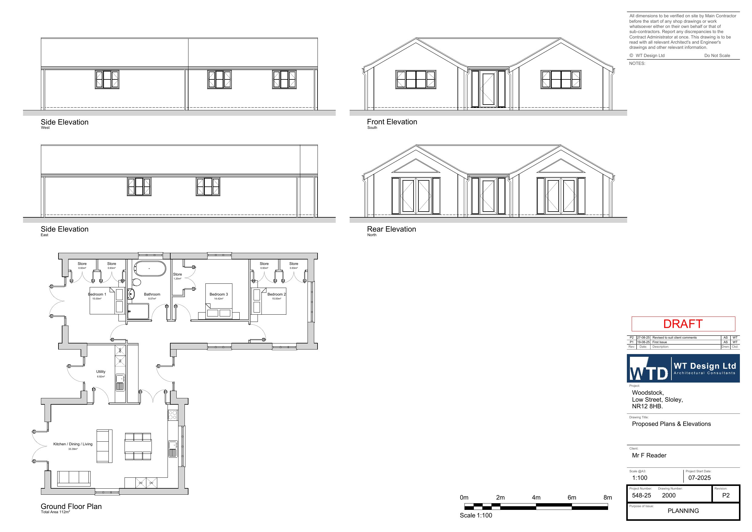
Change of use of workshop (Class E) to dwellinghouse (Class C3)

Documents

Application Form
Archived · Original link
Report / Statement
Archived · Original link
Report / Statement
Archived · Original link
Biodiversity net gain condition assessments
Report / Statement
Not yet archived · Original link
Report / Statement
Archived · Original link
Report / Statement
Archived · Original link
Plan
Archived · Original link
Plan
Archived · Original link
Plan
Archived · Original link
Plan
Archived · Original link
Plan
Archived · Original link
Plan
Archived · Original link
Plan
Archived · Original link
Plan
Archived · Original link

Have your say

Your comment matters. Councils must consider every representation that raises material planning considerations.

Write a comment