← North Northamptonshire Council

Status

In progress House extension
Received
27 Nov 2025
New homes
0

Full proposal

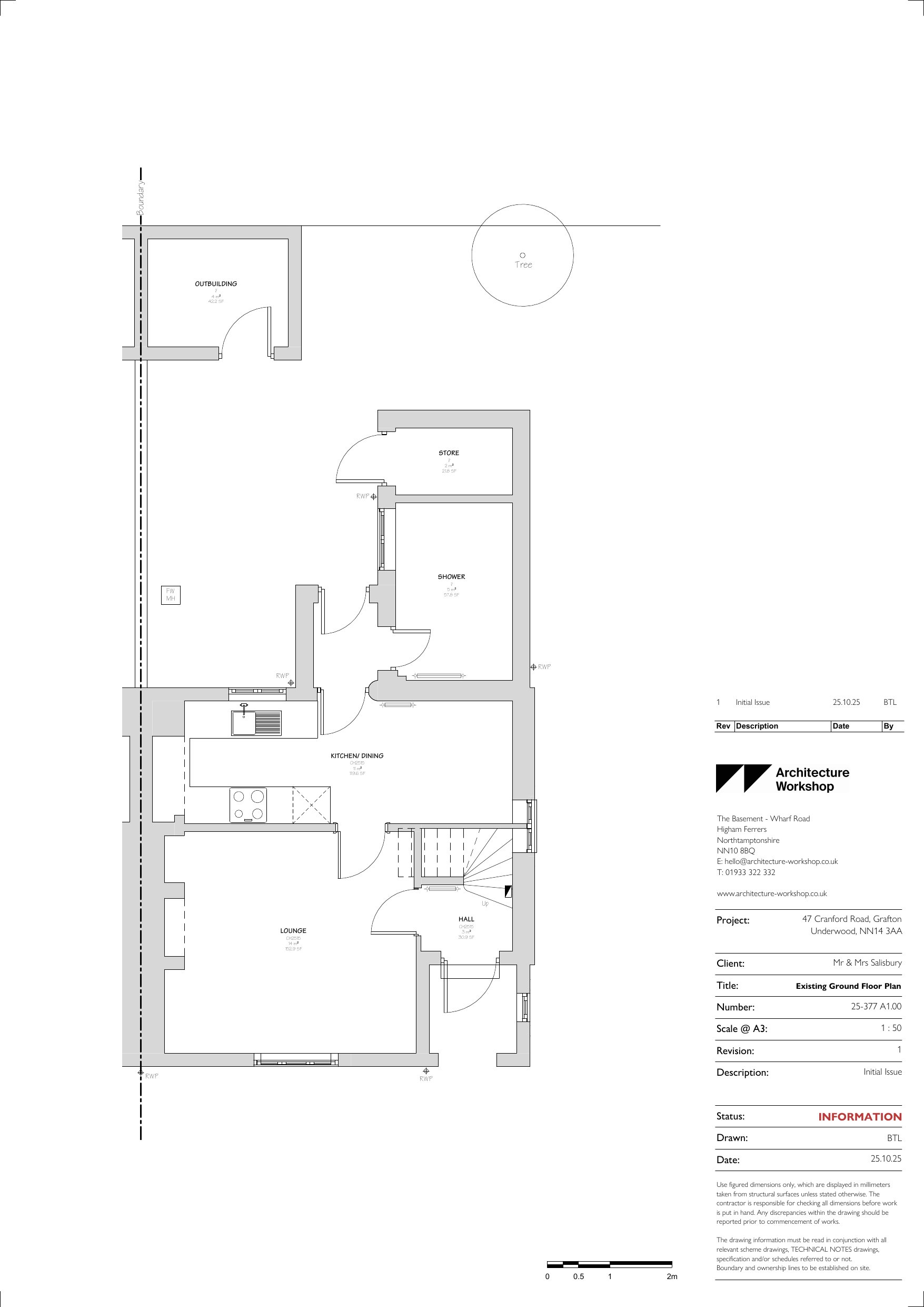
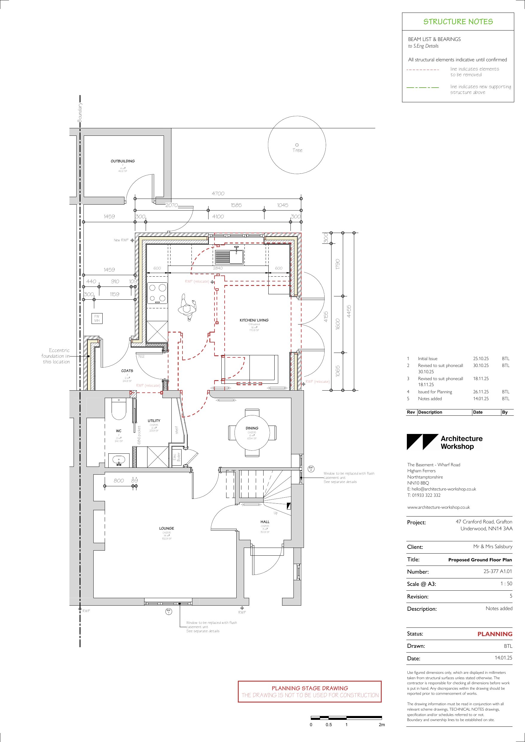
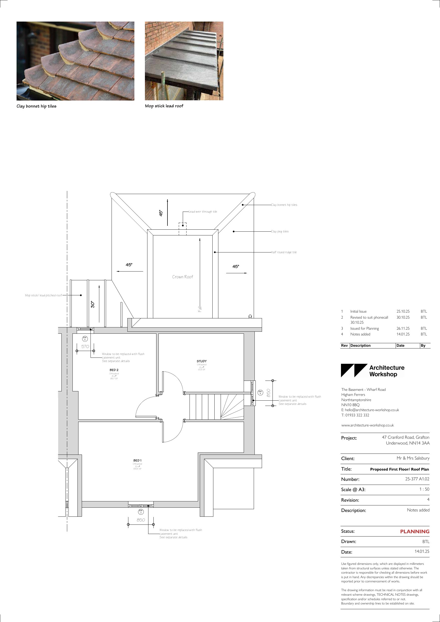
Demolition of rear extension, construction of single storey rear extension and replacement of existing windows with matching casements

Documents

Document - Supporting
Archived · Original link
Plans and Drawings
Archived · Original link
Plans and Drawings
Archived · Original link
Plans and Drawings
Archived · Original link
Plans and Drawings
Archived · Original link
Plans and Drawings
Archived · Original link

Have your say

Your comment matters. Councils must consider every representation that raises material planning considerations.

Write a comment