← North Northamptonshire Council

Status

In progress House extension
Received
03 Dec 2025
New homes
0

Full proposal

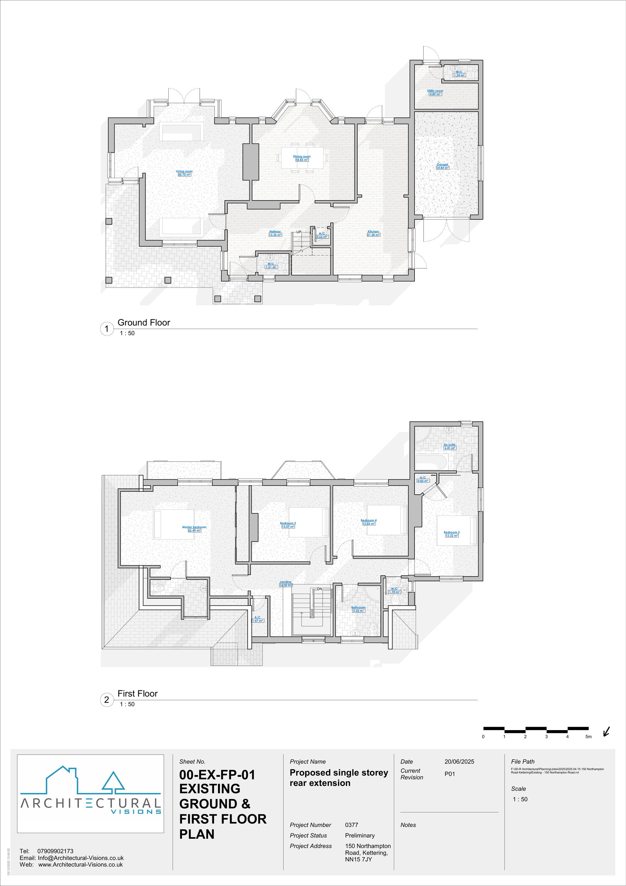
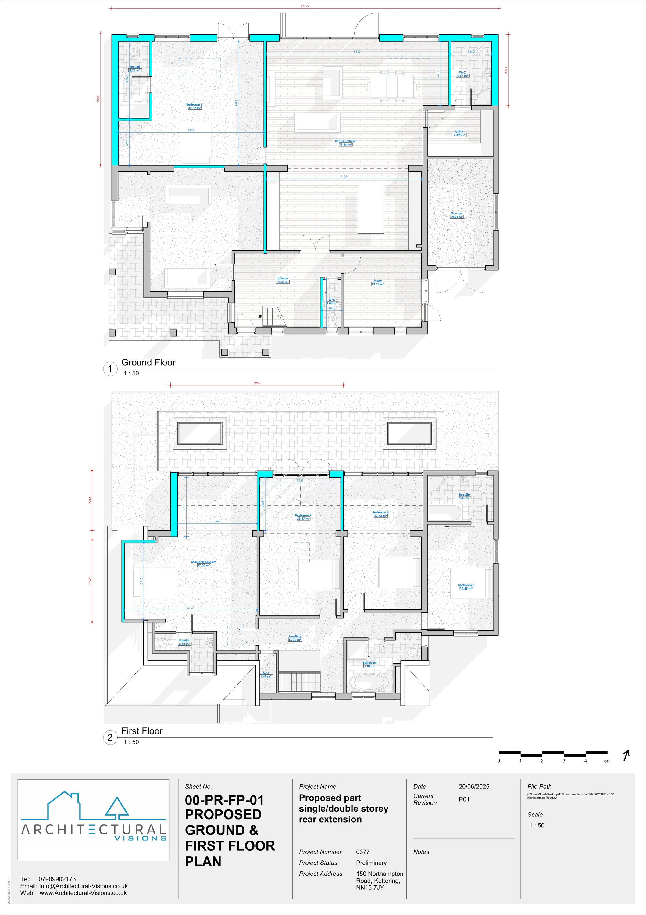
Part single, part double storey rear extension, balcony on flat roof. Internal changes (part retrospective).

Documents

Application Form
Archived · Original link
Plans and Drawings
Archived · Original link
Plans and Drawings
Archived · Original link
Plans and Drawings
Archived · Original link
Plans and Drawings
Archived · Original link
Plans and Drawings
Archived · Original link
Plans and Drawings
Archived · Original link
Plans and Drawings
Archived · Original link
Plans and Drawings
Archived · Original link

Have your say

Your comment matters. Councils must consider every representation that raises material planning considerations.

Write a comment