← North Northamptonshire Council

Status

In progress House extension
Received
22 Jan 2026
New homes
0

Full proposal

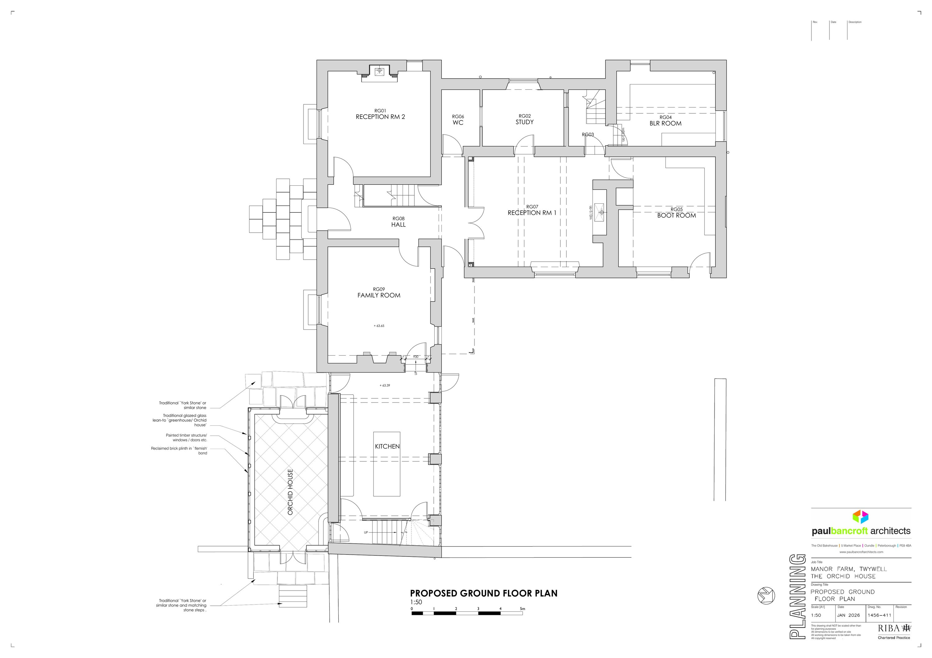
Southeast Orchid House extension to the Coach House adjoining manor farmhouse

Documents

Application Form
Archived · Original link
Document - Supporting
Archived · Original link
Plans and Drawings
Archived · Original link
Plans and Drawings
Archived · Original link
Document - Supporting
Archived · Original link
Plans and Drawings
Archived · Original link
Plans and Drawings
Archived · Original link

Have your say

Your comment matters. Councils must consider every representation that raises material planning considerations.

Write a comment