← North Northamptonshire Council

Status

In progress New housing
Received
27 Jan 2026
New homes
1

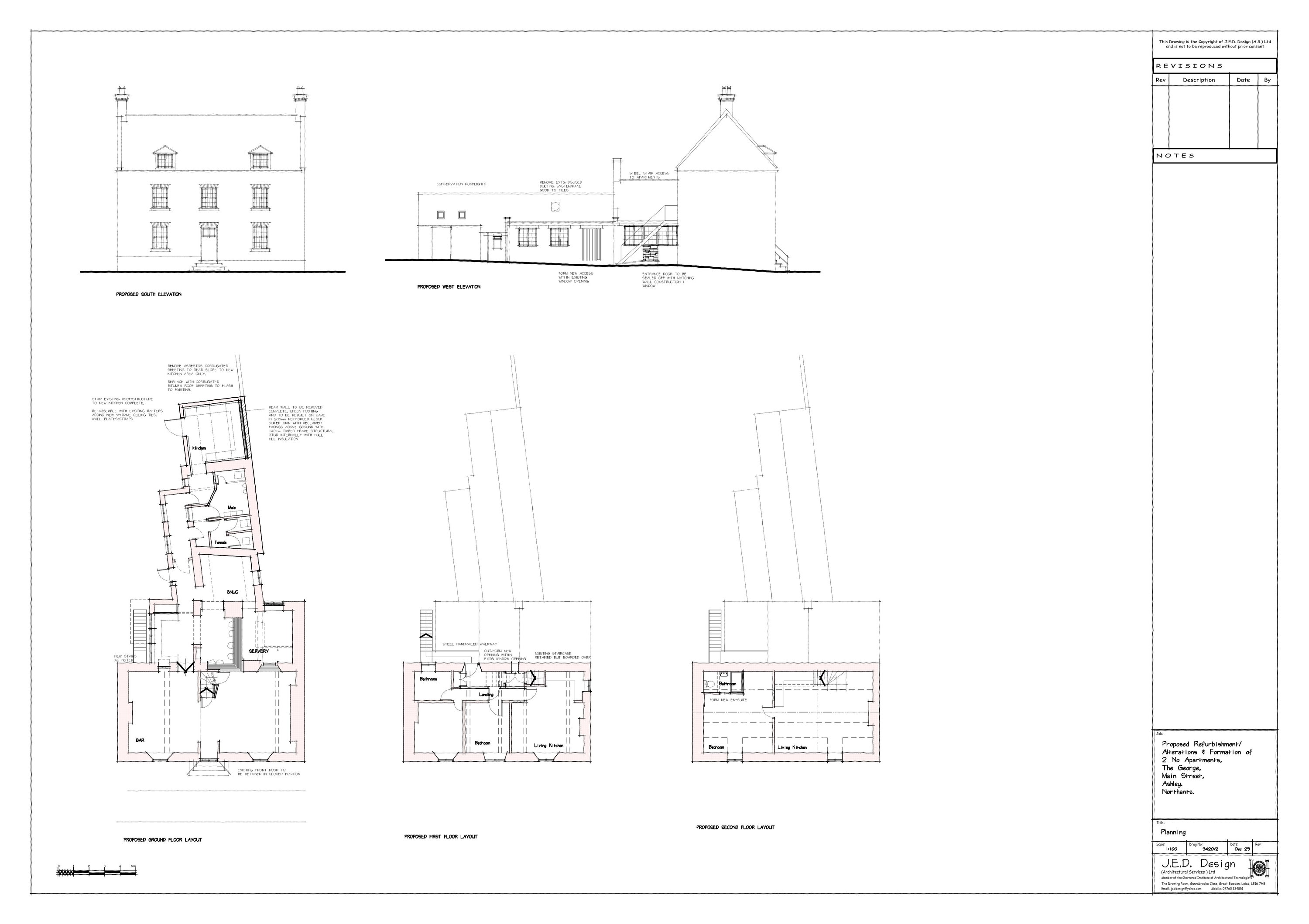
Full proposal

Proposed external metal staircase to create access to existing and additional upper floor apartments, alterations and formation of an additional apartment with new external access

Documents

Application Form
Archived · Original link
Plans and Drawings
Archived · Original link
Plans and Drawings
Archived · Original link
Plans and Drawings
Archived · Original link
Plans and Drawings
Archived · Original link
Plans and Drawings
Archived · Original link

Have your say

Your comment matters. Councils must consider every representation that raises material planning considerations.

Write a comment