← North Northamptonshire Council

Status

In progress Agricultural
Received
Last month
New homes
1

Full proposal

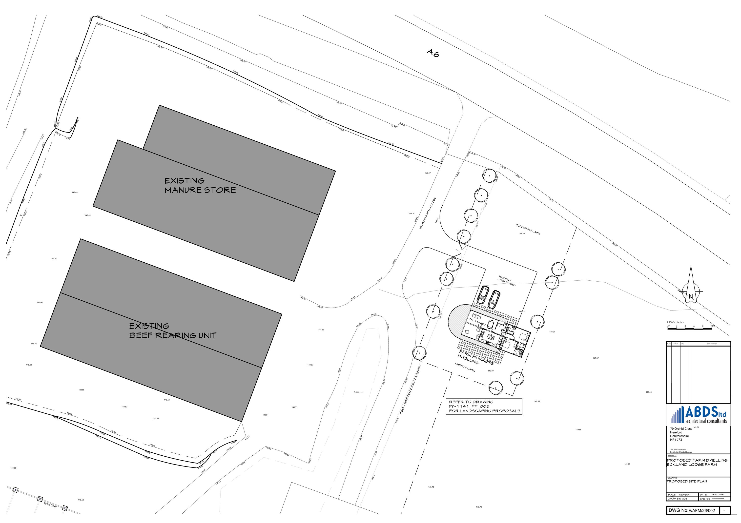
Erection of a farm worker dwelling.

Documents

Applicationformredacted
Application Form
Not yet archived · Original link
Biodiversity net gain (bng) documents and drawings
Other
Not yet archived · Original link
Biodiversity net gain (bng) documents and drawings
Other
Not yet archived · Original link
Plans and Drawings
Archived · Original link
Plans and Drawings
Archived · Original link
Design and access statement
Other
Not yet archived · Original link
Ecological assessment
Other
Not yet archived · Original link
Environmental statement
Other
Not yet archived · Original link
Environmental statement
Other
Not yet archived · Original link
Floor plans - proposed
Plans and Drawings
Not yet archived · Original link
Landscape and visual impact assessment
Other
Not yet archived · Original link
Landscape plan
Plans and Drawings
Not yet archived · Original link
Location plan
Plans and Drawings
Not yet archived · Original link
Topography plan - proposed
Plans and Drawings
Not yet archived · Original link

Have your say

Your comment matters. Councils must consider every representation that raises material planning considerations.

Write a comment