← North Somerset Council

Status

Registered House extension
Received
19 Dec 2025
New homes
0

Full proposal

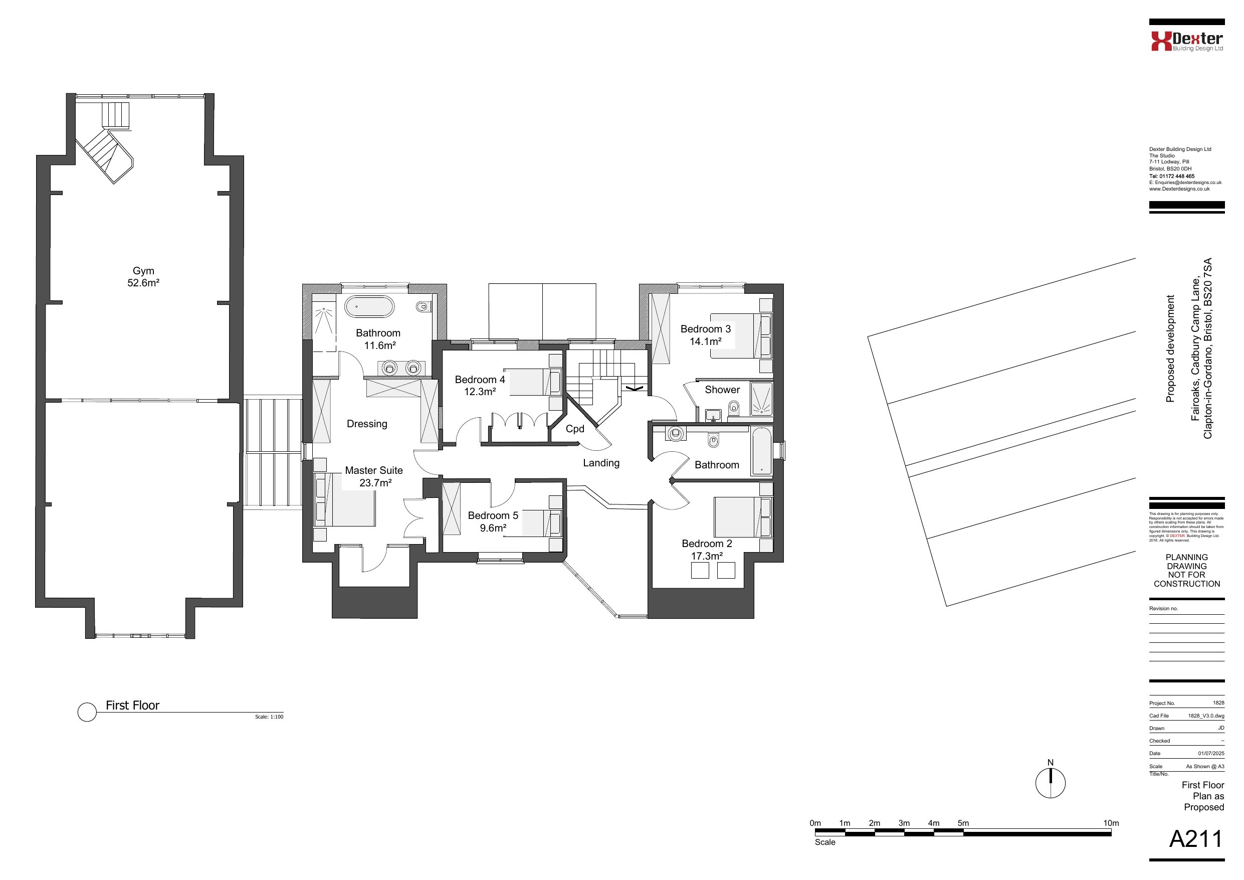
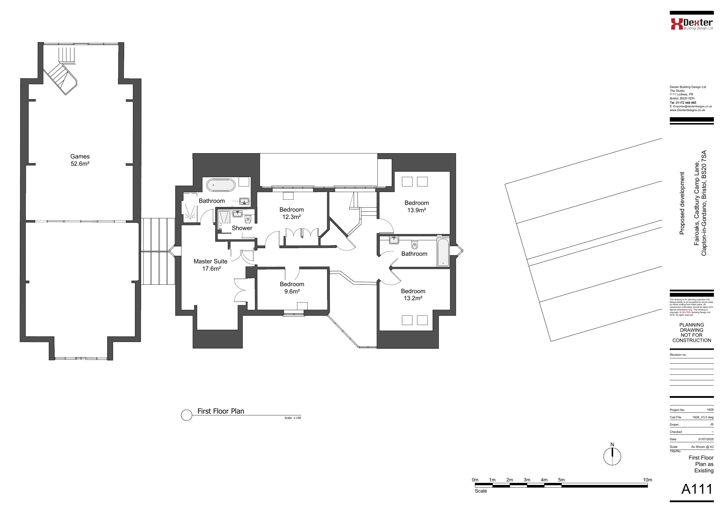
Proposed erection of an infill ground-floor front extension and first-floor front extensions with roofing alterations, including the creation of 2no. front gables and 2no. front dormers. Creation of a new canopy front porch and fenestration alterations throughout comprising of the installation, replacement and alteration of windows and doors including the removal of first-floor Oriel windows.

Have your say

Your comment matters. Councils must consider every representation that raises material planning considerations.

Write a comment