← North Somerset Council

Status

Registered House extension
Received
14 Jan 2026
New homes
0

Full proposal

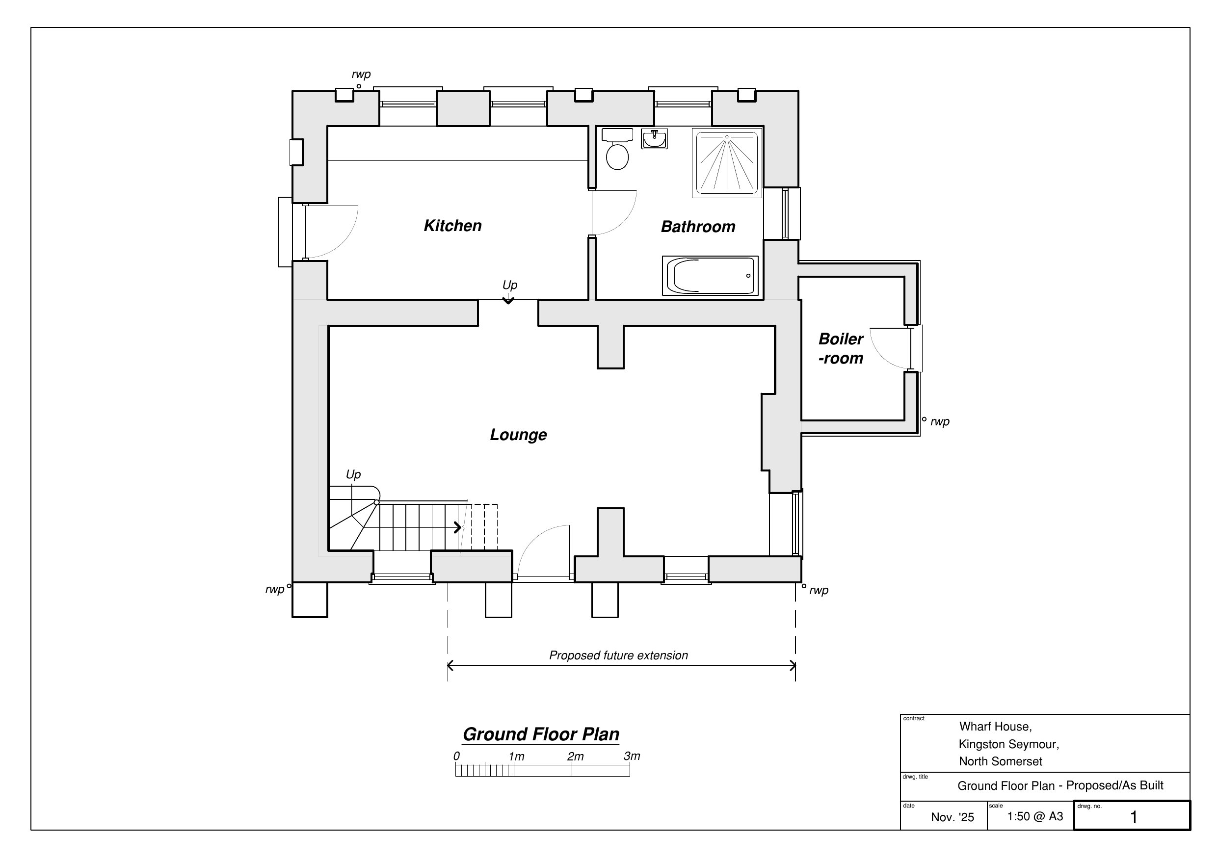
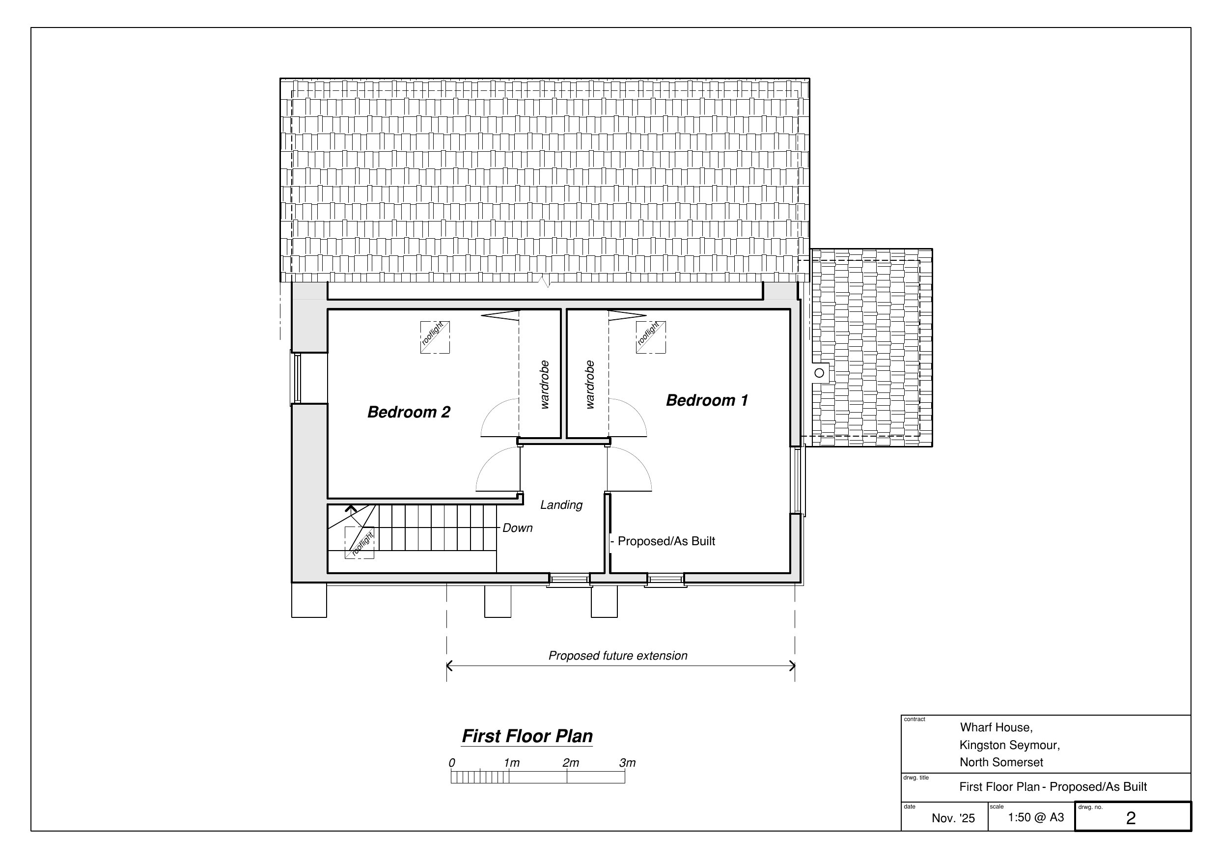
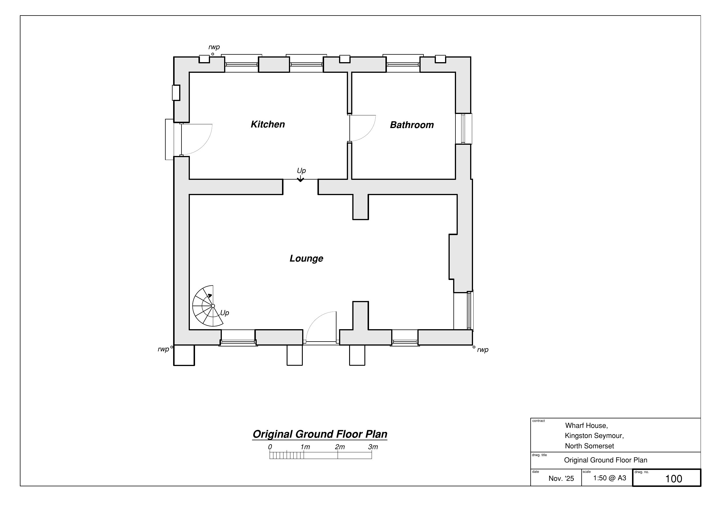
Retrospective application for the erection of a single storey side extension and replacement of roofing including the formation of a front gable. Installation of a wood-burner flue and cladding.

Documents

Application Form
Archived · Original link
CIL Notices
Archived · Original link
Design and access statement
Archived · Original link
Flood risk assessment
Archived · Original link
Plan
Archived · Original link
Plan
Archived · Original link
OS Extract
Archived · Original link

Have your say

Your comment matters. Councils must consider every representation that raises material planning considerations.

Write a comment