← North Somerset Council

Status

Awaiting decision House extension
Received
16 Jan 2026
New homes
0

Full proposal

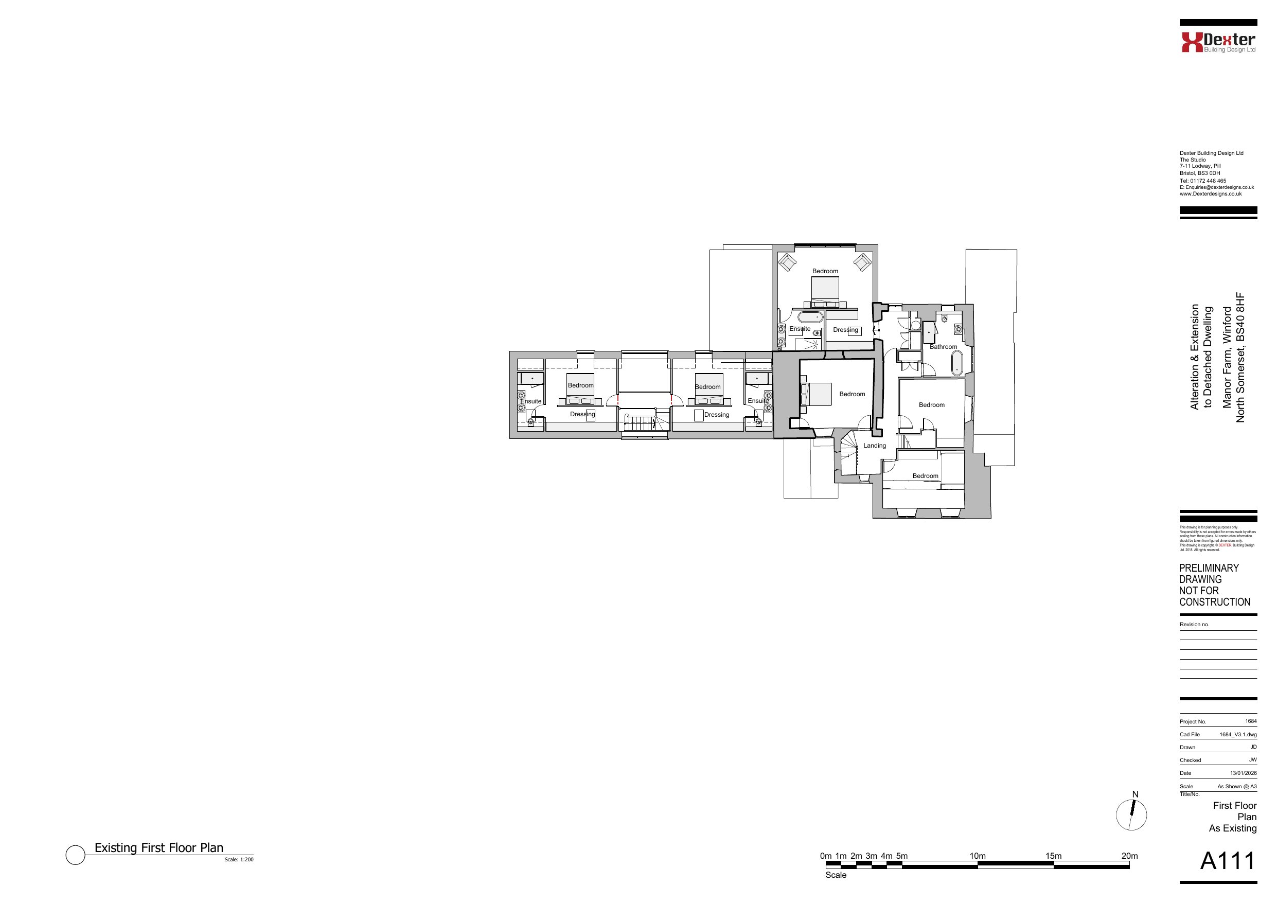
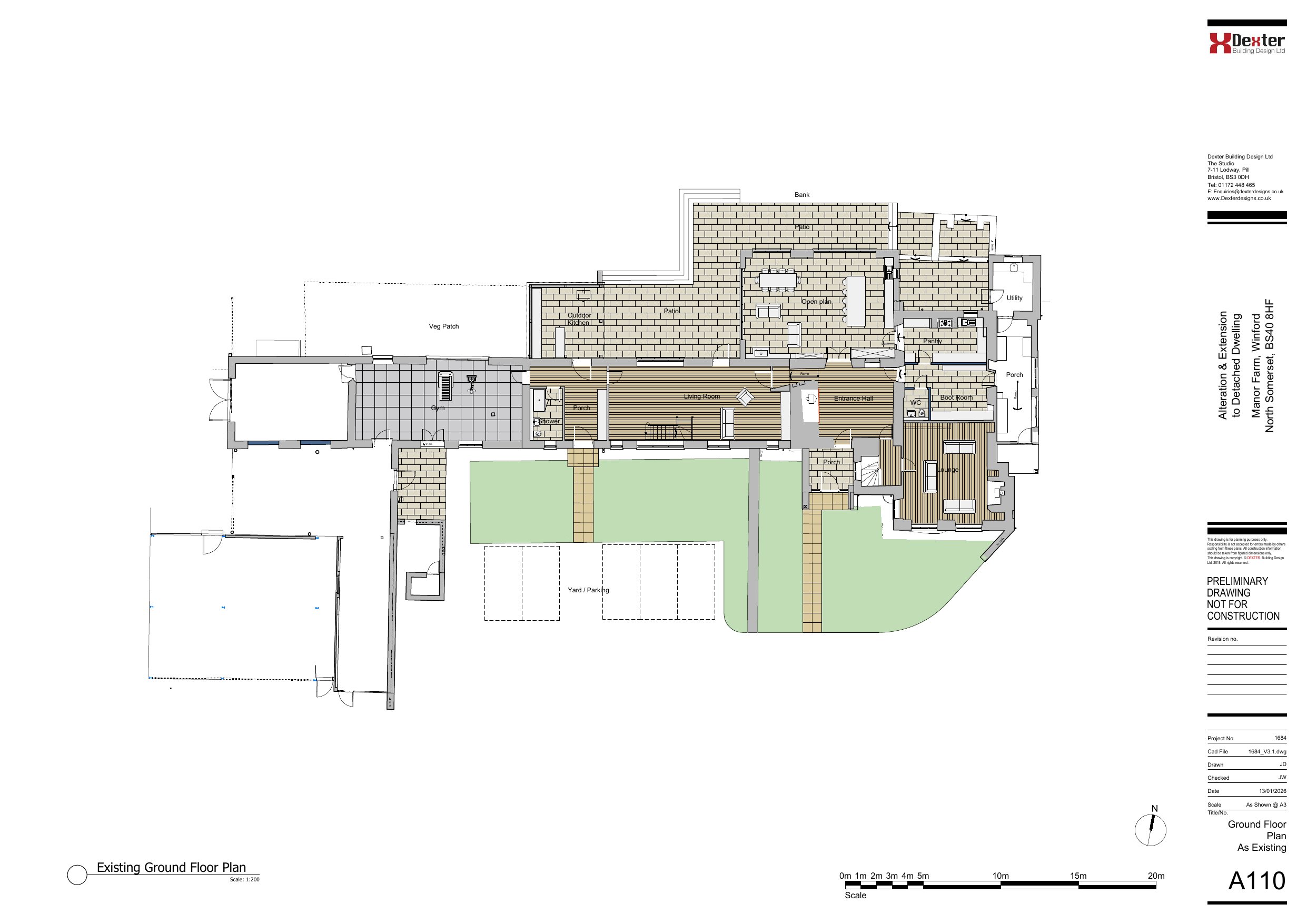
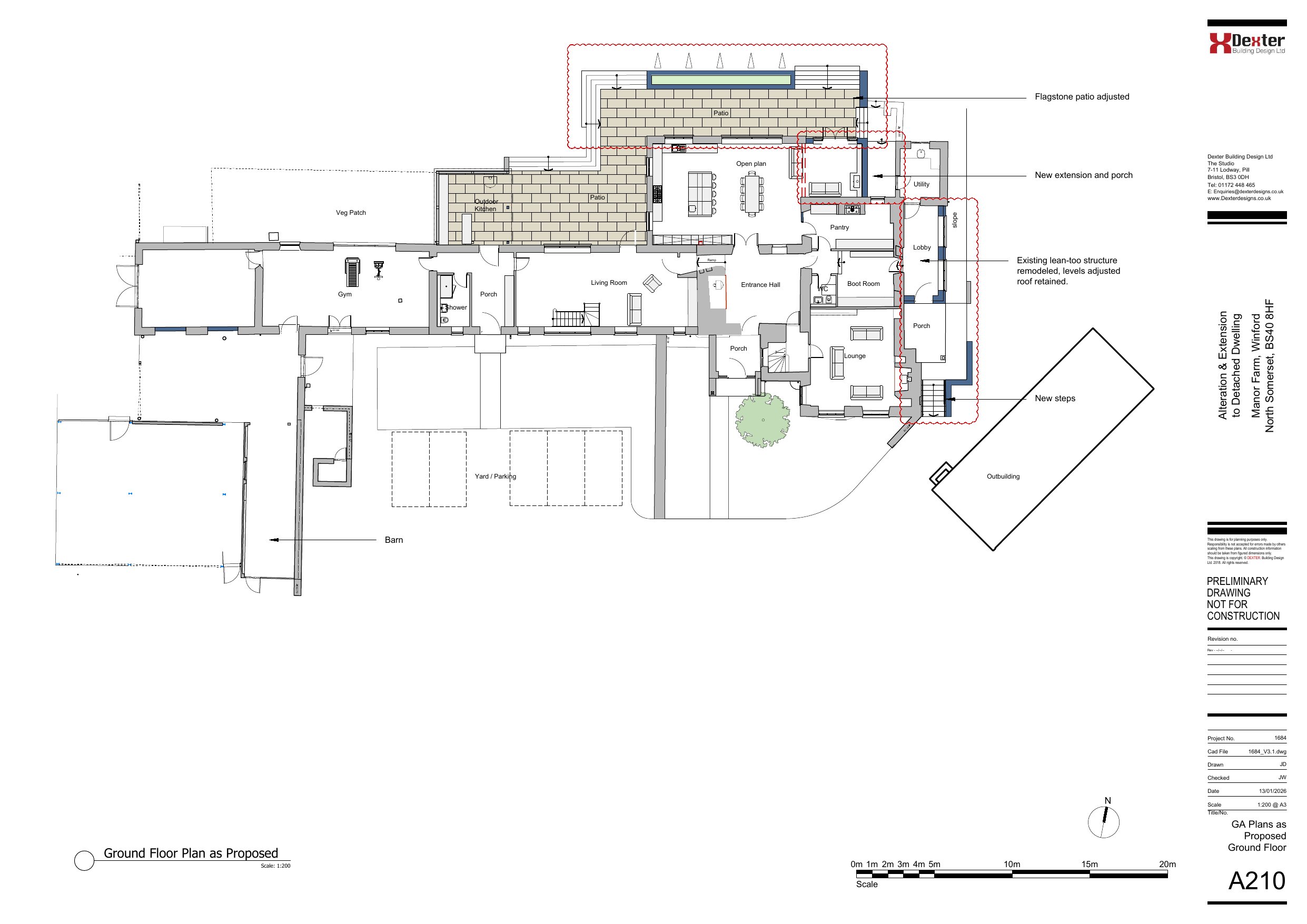
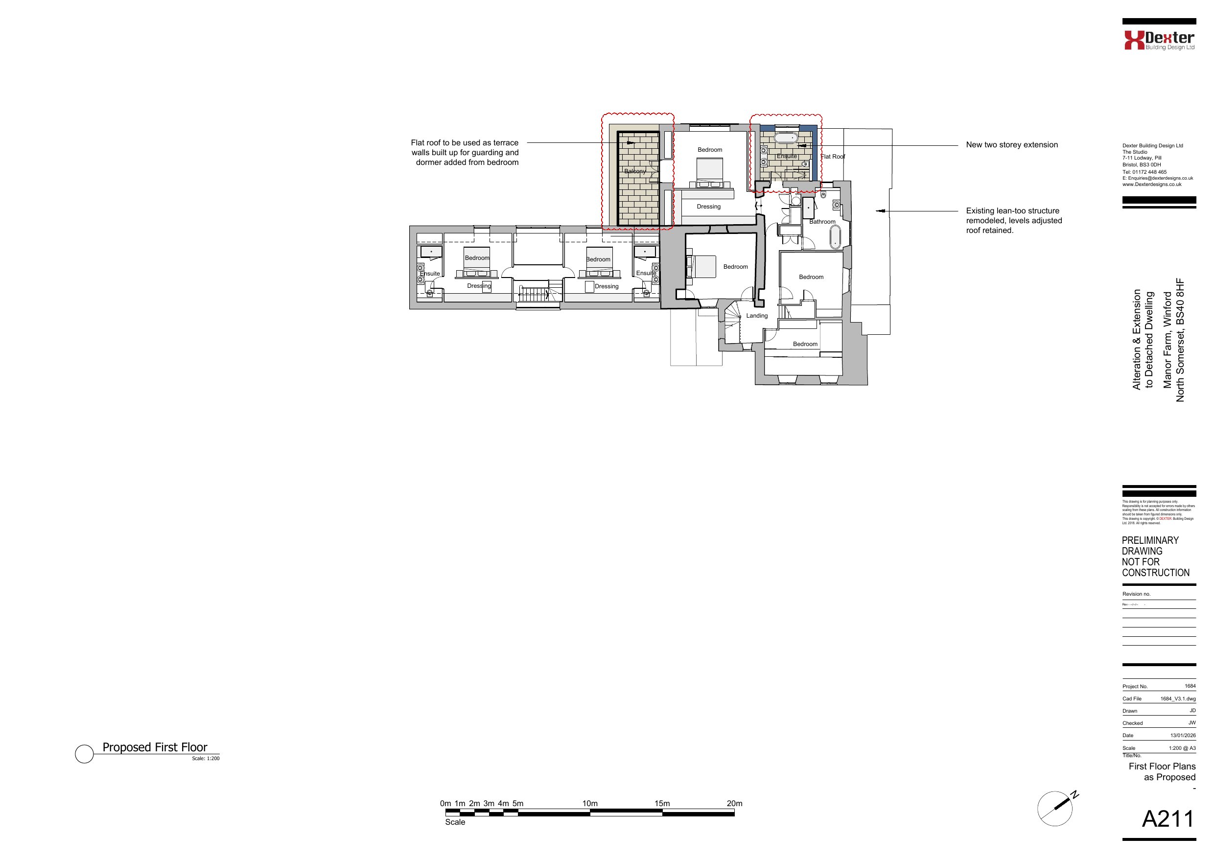
Proposed extension and alteration of the host dwelling to include a two storey rear extension, a new dormer, new finishing materials and alteration to the porch, with associated works.

Documents

Application Form
Archived · Original link
Ecological report
Archived · Original link
ECOLOGY OFFICER
Consultation Reply
Not yet archived · Original link
Planning Statement
Archived · Original link
OS Extract
Archived · Original link

Have your say

Your comment matters. Councils must consider every representation that raises material planning considerations.

Write a comment