← North Somerset Council

Status

Registered House extension
Received
21 Jan 2026
New homes
0

Full proposal

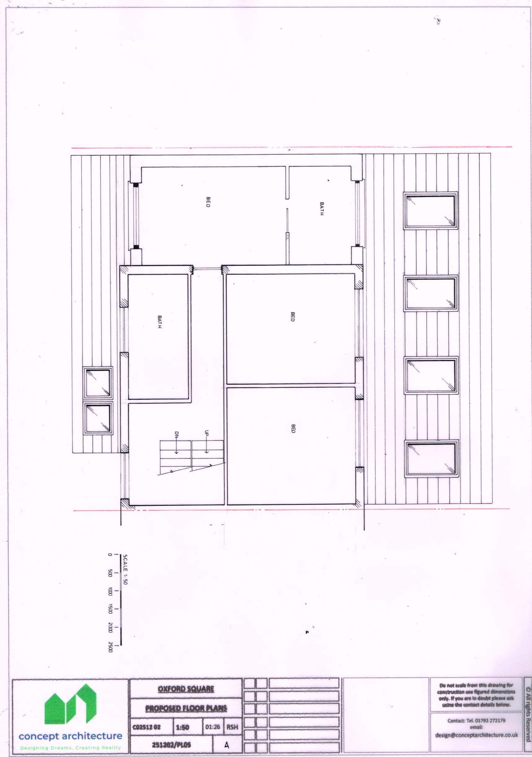
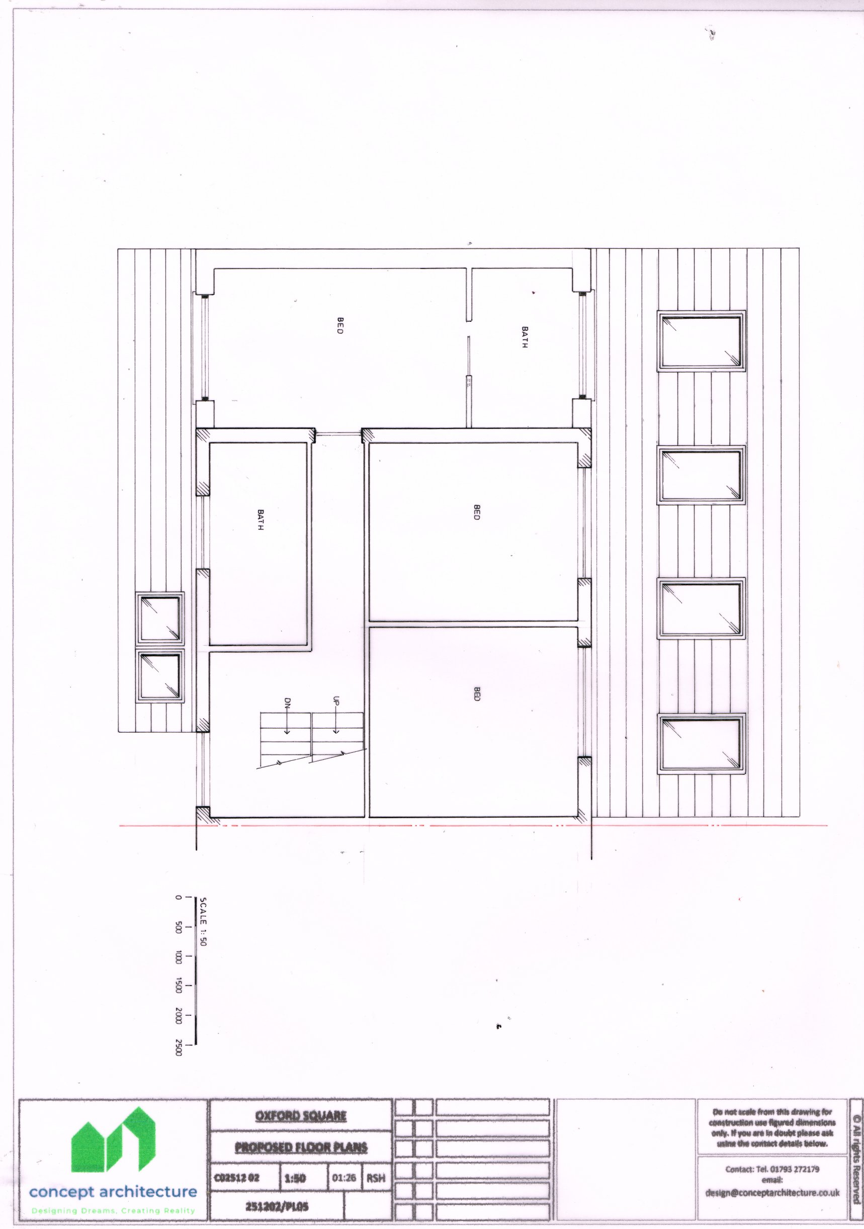
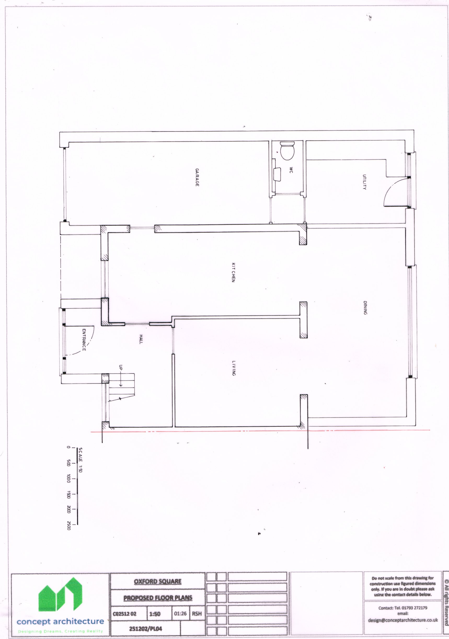
Proposed erection of single storey front and rear extensions alongside a first floor side extension atop existing garage.

Have your say

Your comment matters. Councils must consider every representation that raises material planning considerations.

Write a comment