← North Somerset Council

Status

Registered New housing
Received
Last month
New homes
1

Full proposal

Proposed erection of a self-build dwelling following demolition of the existing dwelling and garage. Erection of detached garage and ground mounted solar panels.

Documents

APPLICATIONFORMREDACTED
Application Form
Not yet archived · Original link
ARBORICULTURAL REPORT - 45 CLEVEDON ROAD
Report
Not yet archived · Original link
BNG EXEMPTION STATEMENT
Other
Not yet archived · Original link
COMBINED REPORT_PLOT 1_ADDITIONAL MEASURES
Energy Statement
Not yet archived · Original link
COMBINED REPORT_PLOT 1_BASELINE
Energy Statement
Not yet archived · Original link
COMBINED REPORT_PLOT 1_RENEWABLES
Energy Statement
Not yet archived · Original link
ECOLOGICAL REPORT
Ecological report
Not yet archived · Original link
ENERGY STATEMENT
Energy Statement
Not yet archived · Original link
EXISTING ELEVATIONS
Plan
Not yet archived · Original link
EXISTING FIRST FLOOR PLAN
Plan
Not yet archived · Original link
EXISTING FOOTPRINT
Plan
Not yet archived · Original link
EXISTING GROUND FLOOR PLAN
Plan
Not yet archived · Original link
EXISTING SITE SKETCH
Plan
Not yet archived · Original link
FIRST FLOOR LIGHTING LAYOUT
Plan
Not yet archived · Original link
GROUND-MOUNTED SOLAR PANELS
Plan
Not yet archived · Original link
LUMINAIRE SCHEDULE
Other
Not yet archived · Original link
PLANNING STATEMENT - 45 CLEVEDON ROAD
Planning Statement
Not yet archived · Original link
PROPOSED ELEVATIONS
Plan
Not yet archived · Original link
PROPOSED ELEVATIONS
Plan
Not yet archived · Original link
PROPOSED FOOTPRINT
Plan
Not yet archived · Original link
PROPOSED GARAGE (PD)
Plan
Not yet archived · Original link
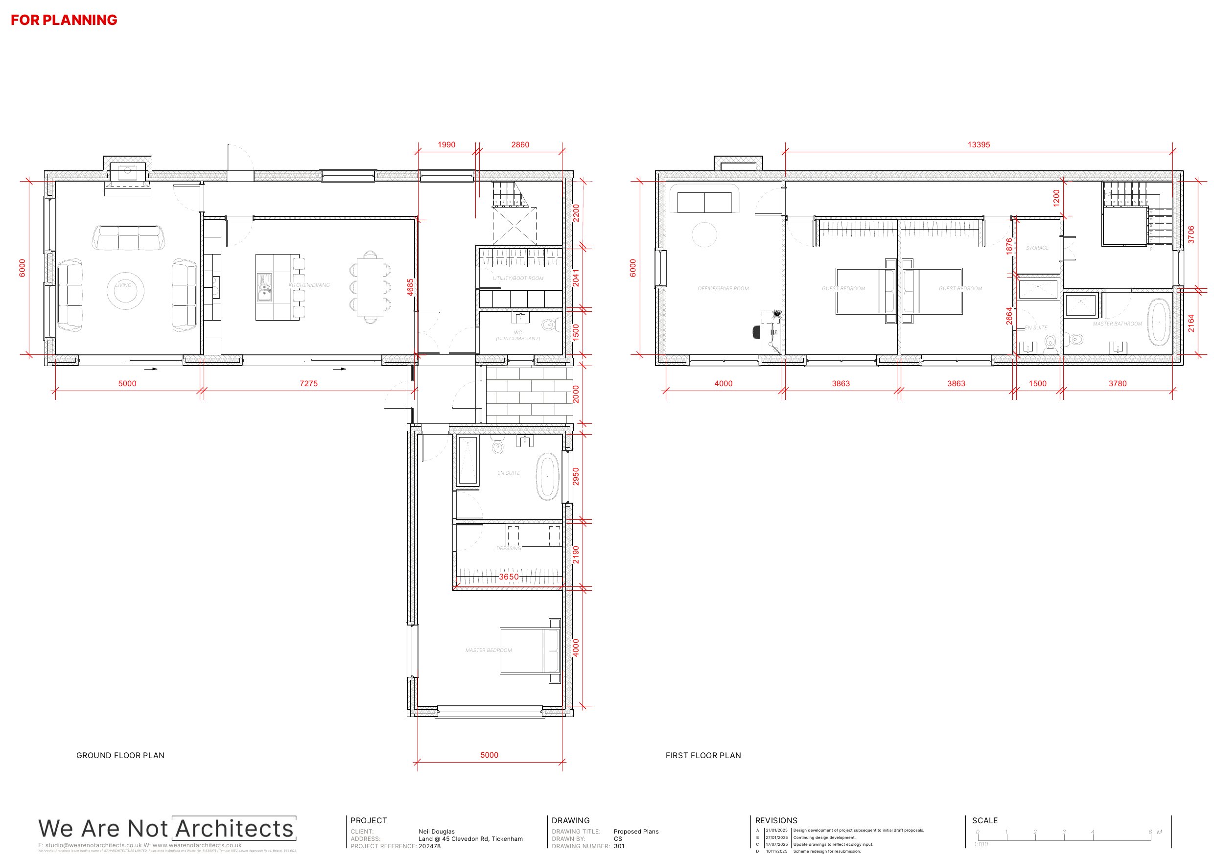
PROPOSED NEW DWELLING 2
Plan
Not yet archived · Original link
PROPOSED SECTIONS
Plan
Not yet archived · Original link
PROPOSED SITE SKETCH
Plan
Not yet archived · Original link
PROPOSED SOLAR PANELS
Plan
Not yet archived · Original link
SITE AND GROUND FLOOR LIGHTING LAYOUT
Plan
Not yet archived · Original link
SITE ISOLINES 01
Plan
Not yet archived · Original link
SITE ISOLINES 02
Plan
Not yet archived · Original link
SITE ISOLINES 03
Plan
Not yet archived · Original link
OS Extract
Archived · Original link

Have your say

Your comment matters. Councils must consider every representation that raises material planning considerations.

Write a comment