← North Somerset Council

Status

Registered House extension
Received
Last month
New homes
0

Full proposal

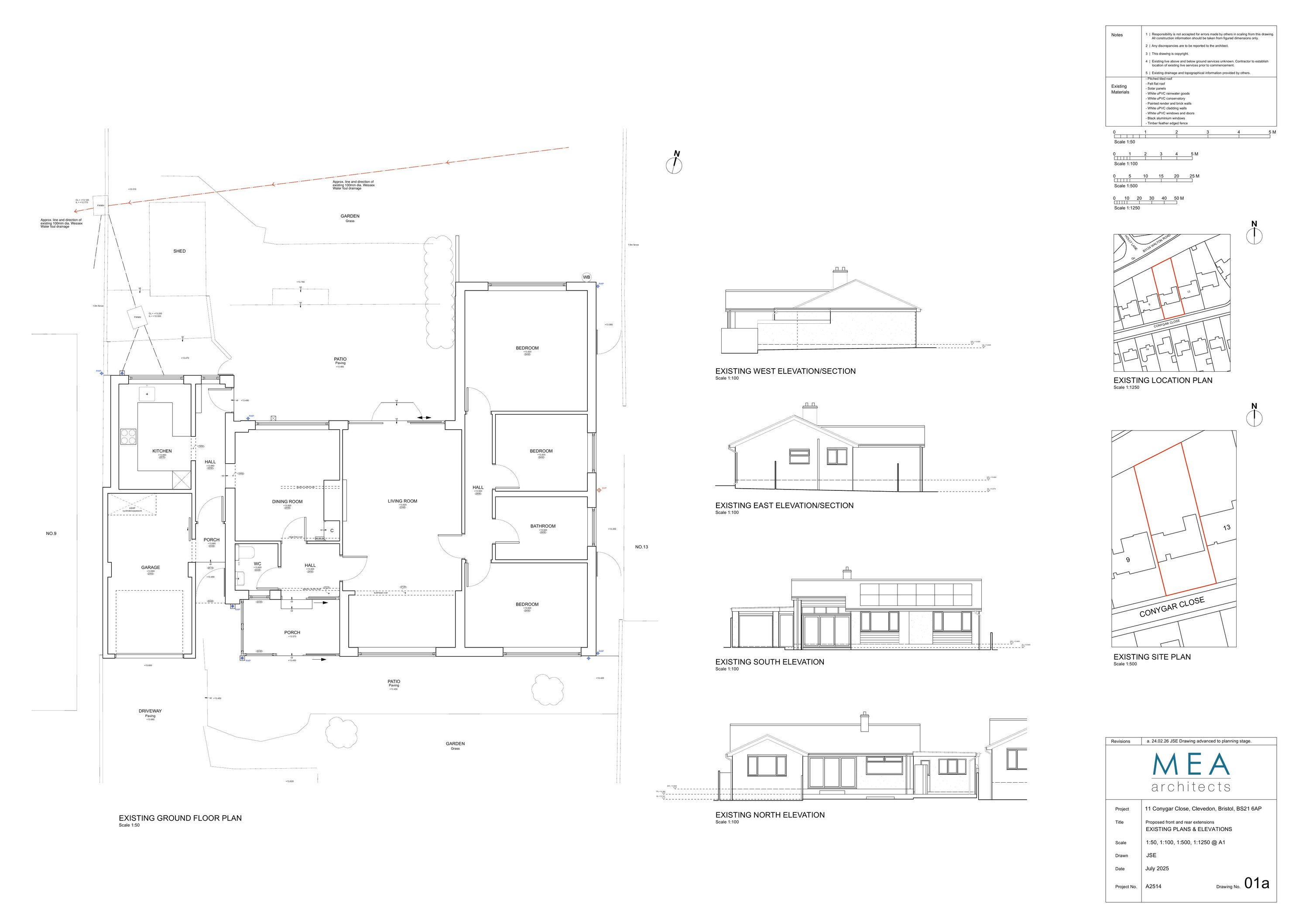
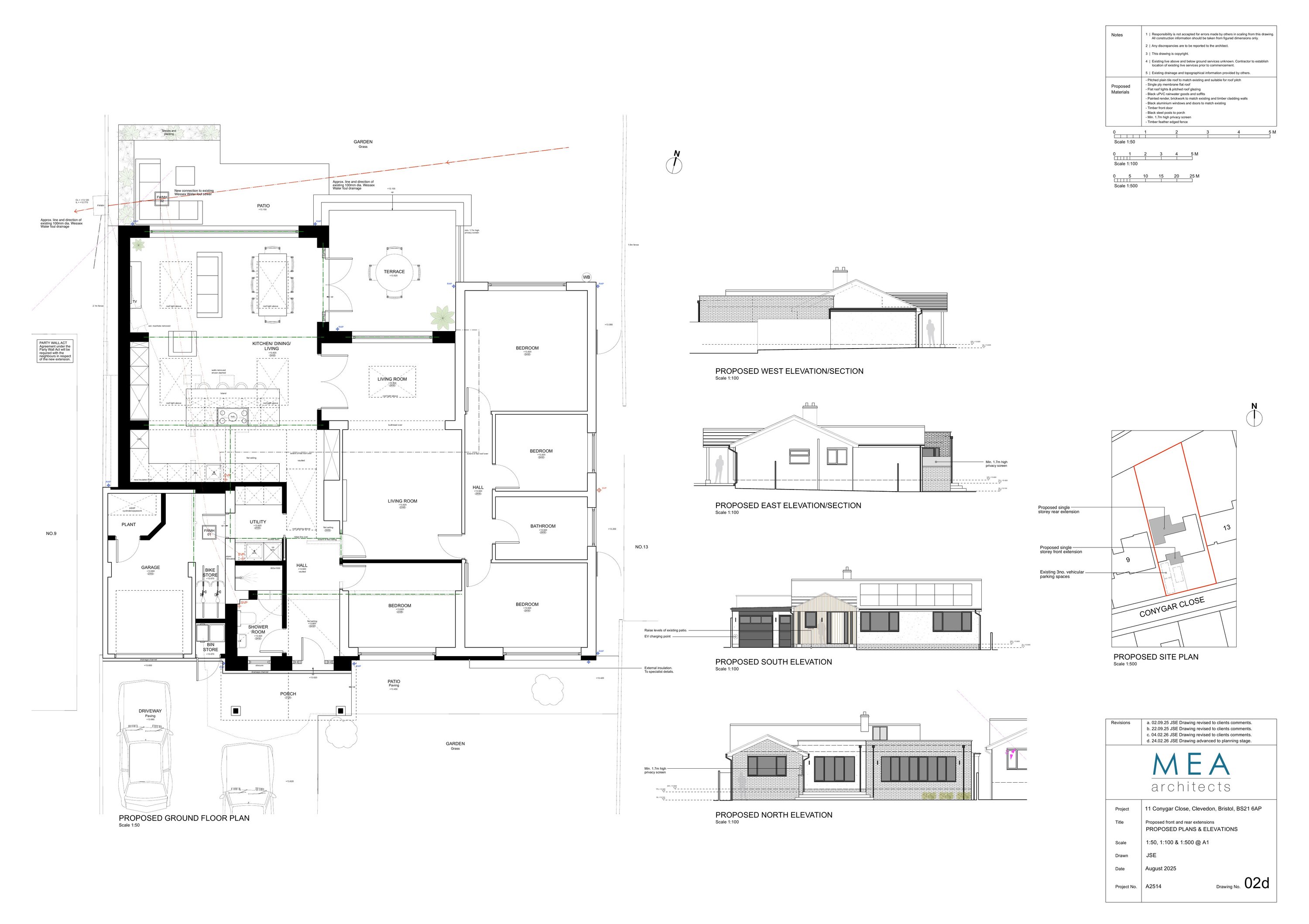
Proposed demolition of existing side extension, front porch and detached shed. Erection of single storey front/side/rear wraparound extension, canopy front porch and raised rear patio. Installation of cladding, expansion of hardstanding and patio spaces.

Documents

Application Form
Archived · Original link
CIL Notices
Archived · Original link
OS Extract
Archived · Original link

Have your say

Your comment matters. Councils must consider every representation that raises material planning considerations.

Write a comment