← North Somerset Council

Status

Registered House extension
Received
Last month
New homes
0

Full proposal

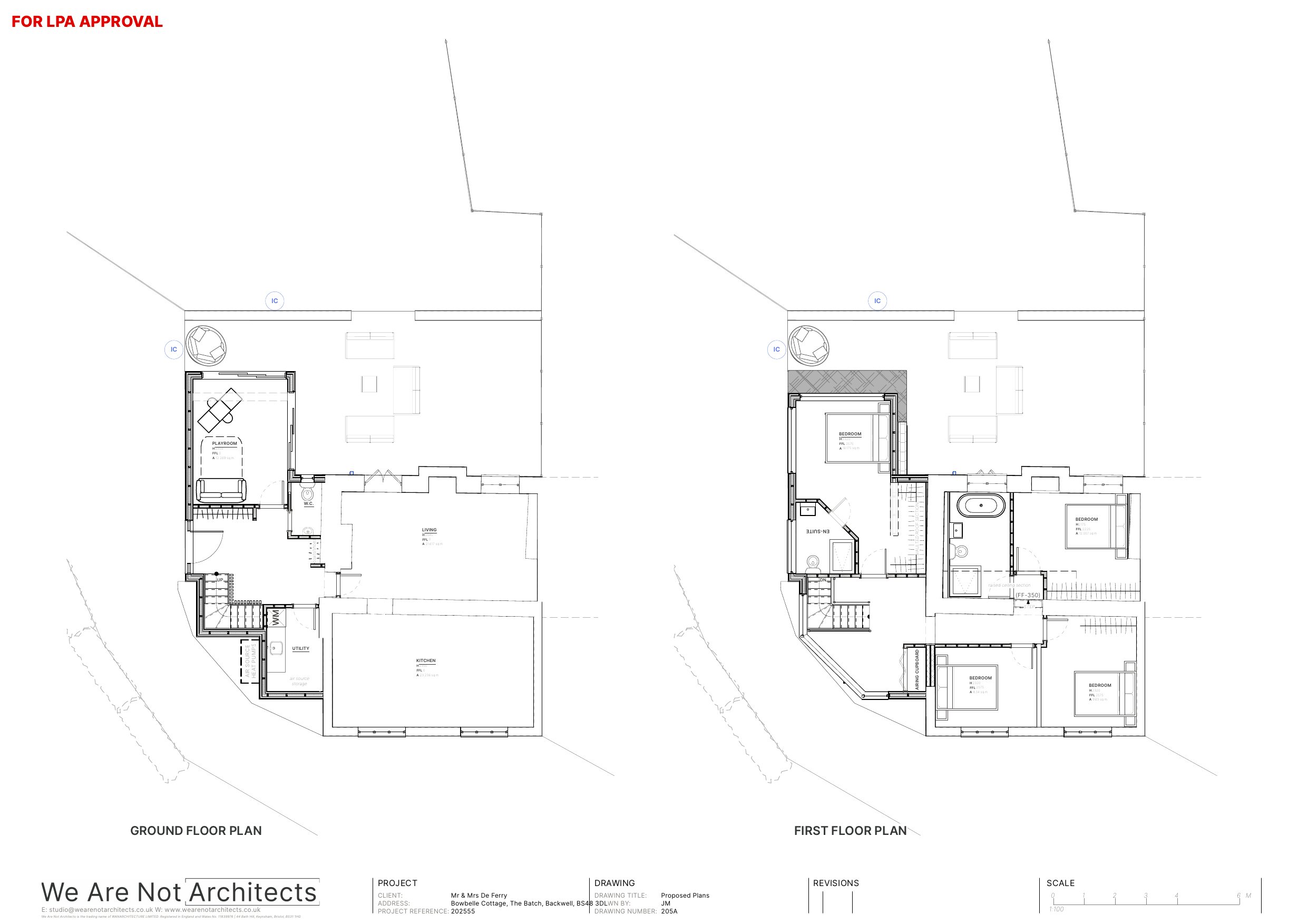
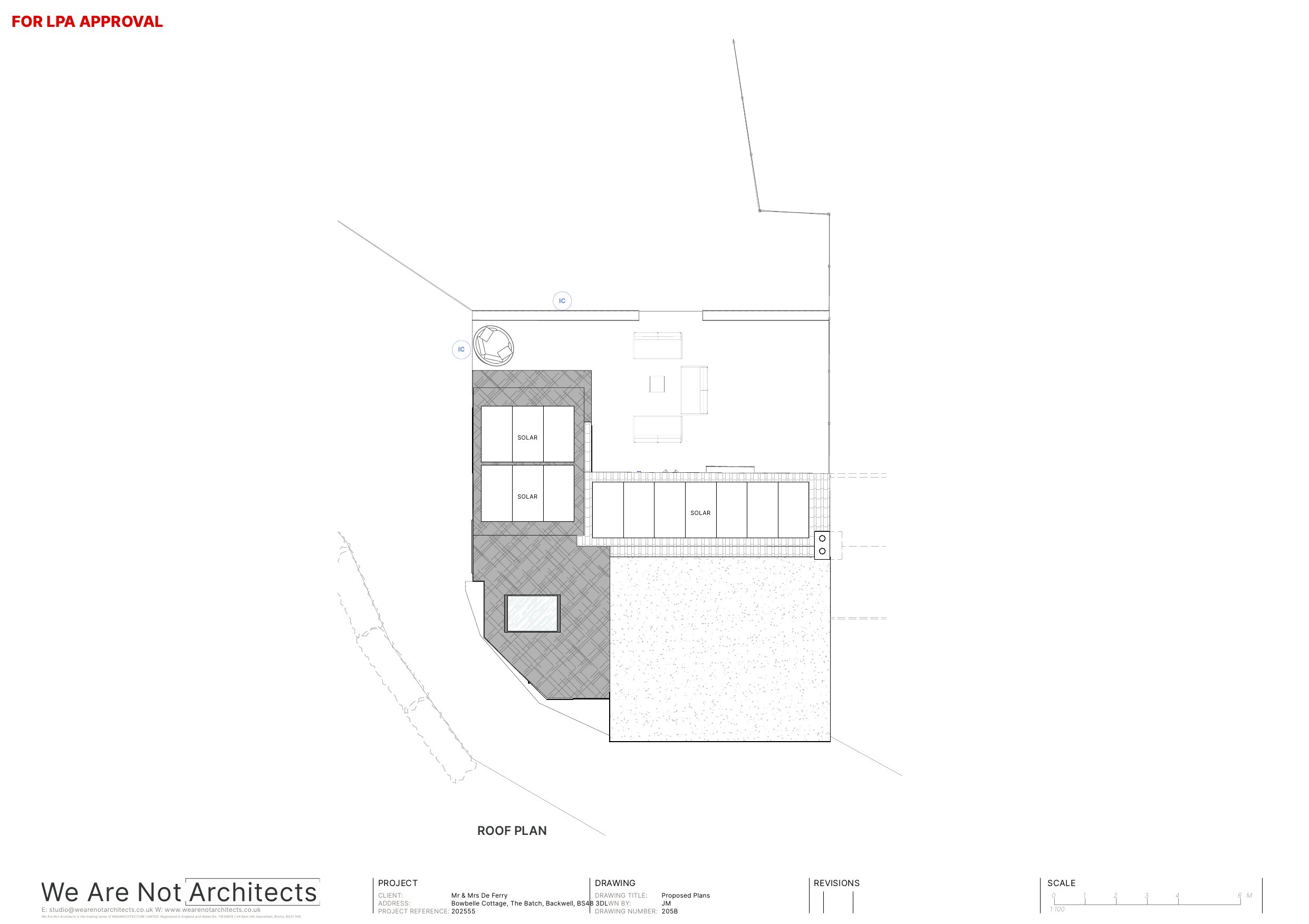
Proposed erection of a second storey rear/side extension and associated works.

Have your say

Your comment matters. Councils must consider every representation that raises material planning considerations.

Write a comment