← North Somerset Council

Status

Registered House extension
Received
Last month
New homes
0

Full proposal

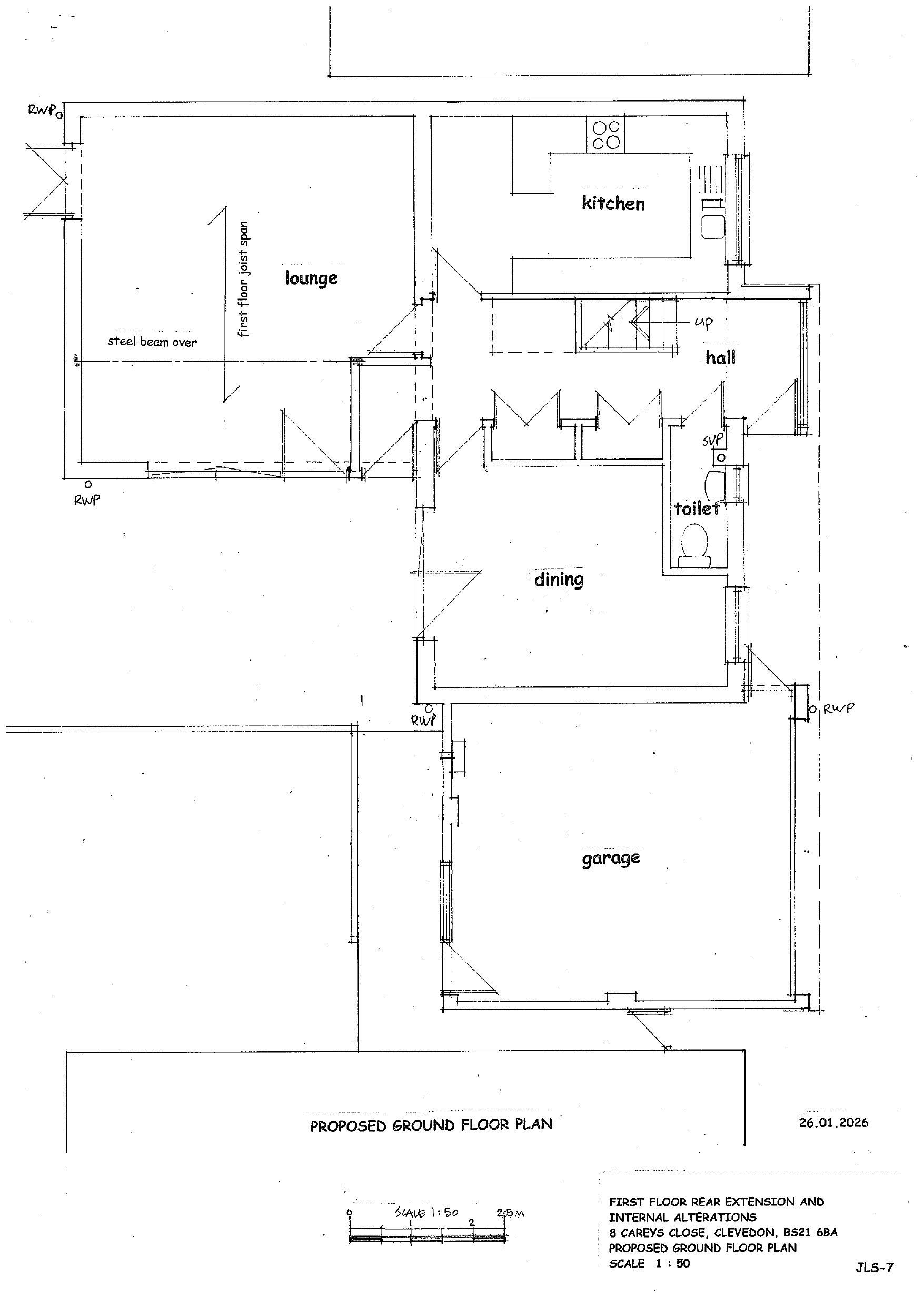
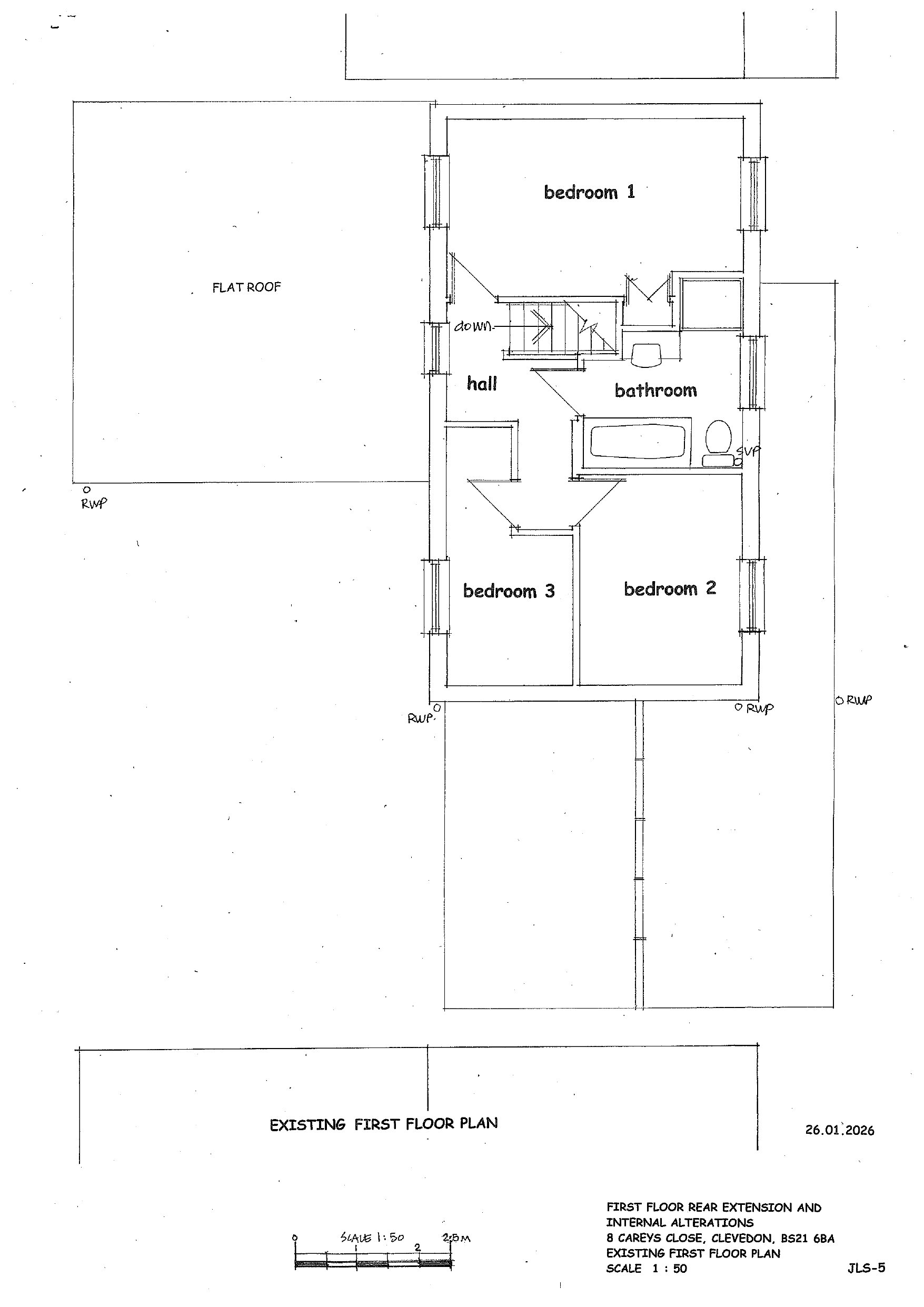
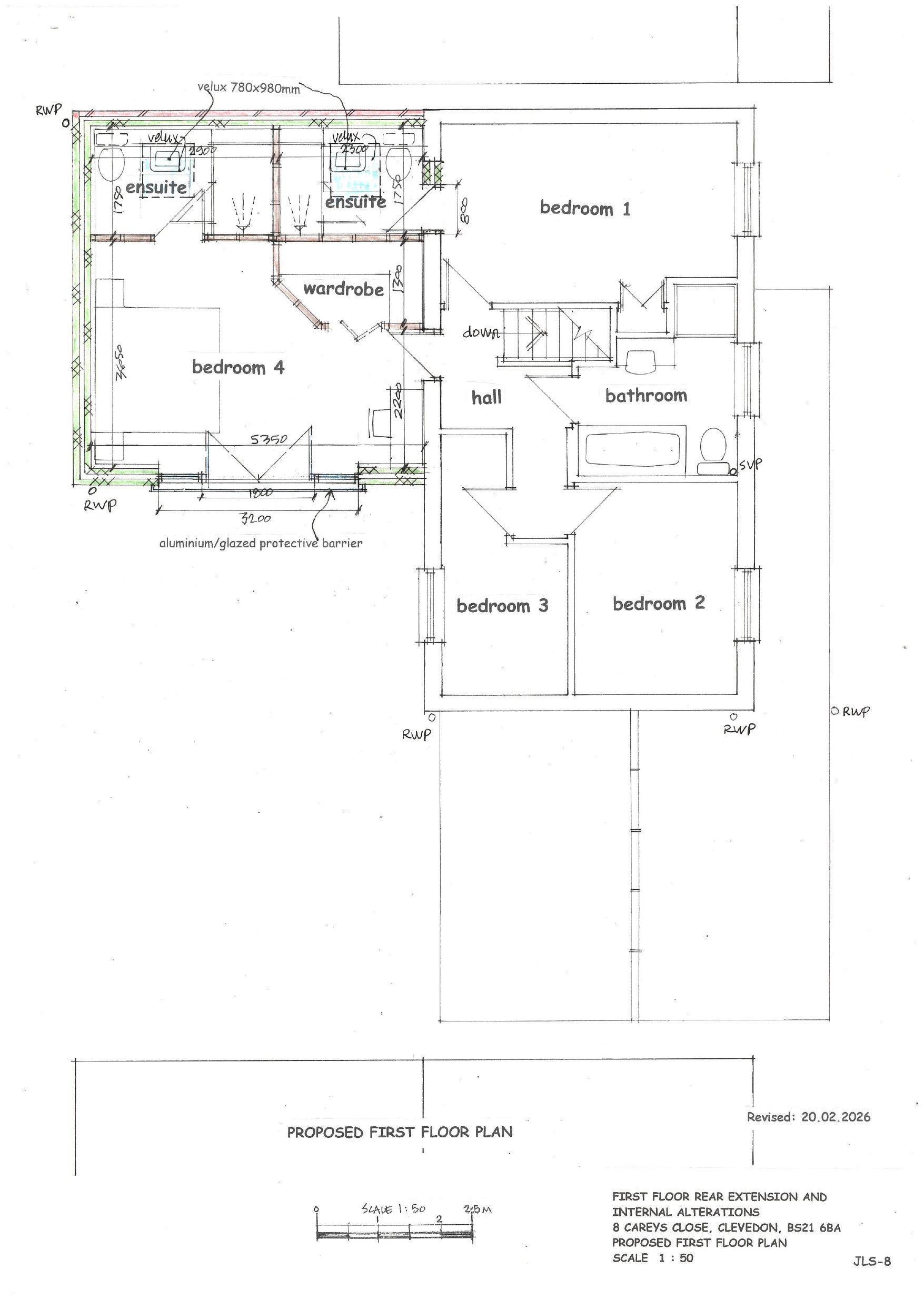
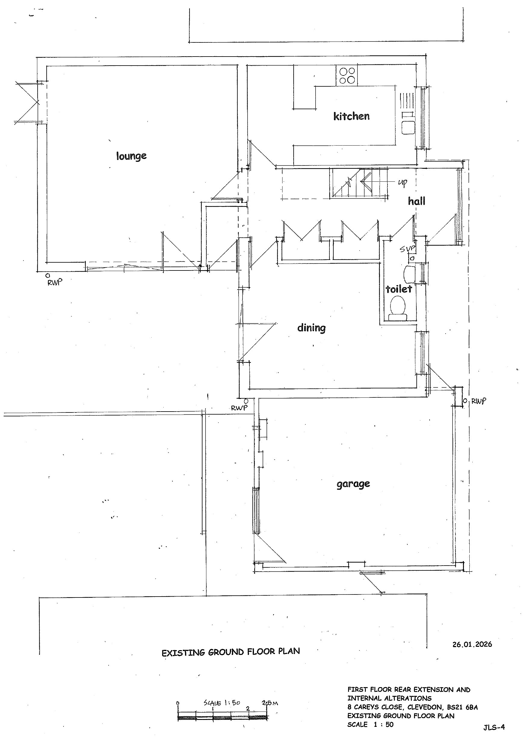
Proposed erection of a first floor rear extension and internal alterations.

Have your say

Your comment matters. Councils must consider every representation that raises material planning considerations.

Write a comment