← North Somerset Council

Status

Registered House extension
Received
Last month
New homes
0

Full proposal

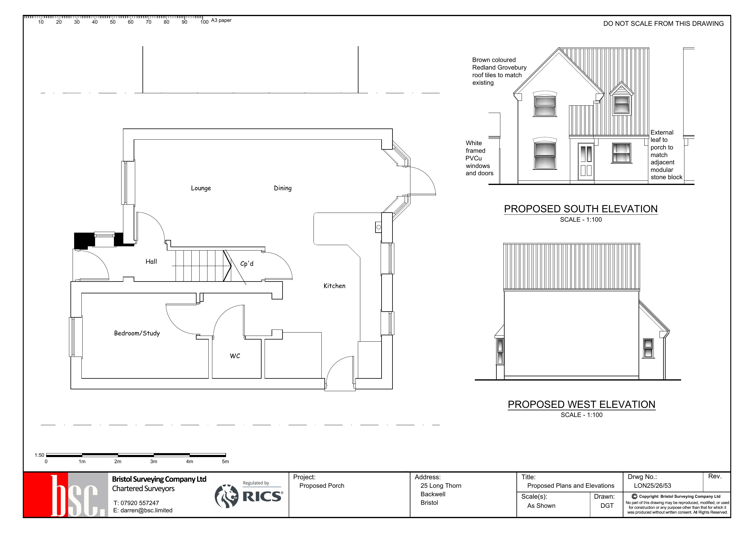
Proposed erection of a front porch extension.

Documents

Application Form
Archived · Original link
CIL Notices
Archived · Original link

Have your say

Your comment matters. Councils must consider every representation that raises material planning considerations.

Write a comment